Negozio via Roma, 27, Cuneo (zona Centro)
€ 1.900 al mese
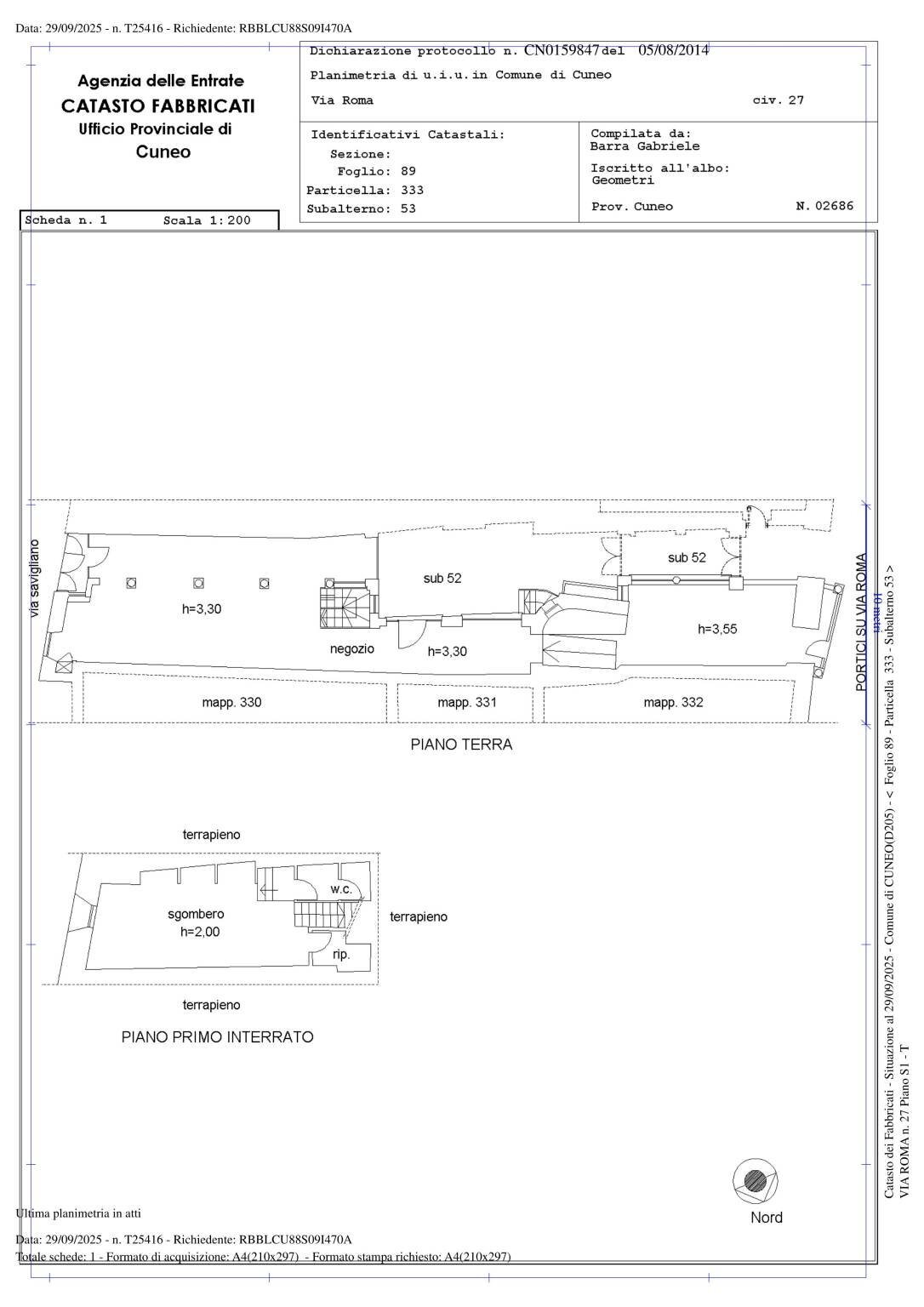
**Locale Commerciale in Affitto - Via Roma** Scopri questo fantastico locale commerciale in affitto, situato nel cuore pulsante di Via Roma, sotto i caratteristici portici. Con una superficie di circa 140 mq, questo spazio offre una vetrina principale che cattura l'attenzione dei passanti, garantendo un'alta visibilità grazie all'intensa densità di passaggio pedonale. La posizione centrale è ideale per chi cerca di attrarre una clientela variegata, con uffici pubblici e privati nelle immediate vicinanze. Il locale è composto da un piano terra luminoso e accogliente, con ulteriori vetrine che si affacciano su un cortile interno, perfette per garantire privacy e tranquillità. Al piano inferiore, trovi un'area versatile che può essere utilizzata come ufficio o magazzino, completa di un bagno. E' possibile accedere a questo negozio anche da via Savigliano. Il riscaldamento autonomo a metano assicura un comfort ottimale durante tutto l'anno, mentre le spese condominiali sono contenute, circa 300 euro all'anno. Questo locale è libero da gennaio 2026 e rappresenta un'opportunità imperdibile per chi desidera avviare o ampliare la propria attività in una delle zone più vivaci della città. Non perdere l'occasione di dare vita ai tuoi progetti imprenditoriali in un contesto così stimolante! Contattaci per maggiori informazioni e per organizzare una visita.
Dati principali
| Riferimento | ID2939563 |
| Data annuncio | 06/12/2025 |
| Contratto | Affitto |
| Tipologia | Negozio |
| Superficie | 165 m2 |
| Piano | 2 totali |
| Uso immobile | Commerciale |
Costi
| Prezzo | 1.900 € al mese |
| Spese condominiali | € 25,00/mese |
Efficienza energetica
| Riscaldamento | Autonomo |
| Classe energetica | Immobile esente da certificazione energetica |
Planimetrie
Indirizzo e mappa
via Roma, 27, Cuneo - quartiere Centro
Inserzionista

Studio Immobiliare Combale
Via XX Settembre 47/c, Cuneo
Mostra Cellulare
Chiama
CONTATTA

