Rustico Via San Giuseppe Maria Gambaro, Galliate
€ 26.000Rustico in vendita
GALLIATE: RUSTICO IN VENDITA
Nel cuore del comune di Galliate, proponiamo un rustico che offre un'opportunità unica per chi desidera personalizzare la propria abitazione.
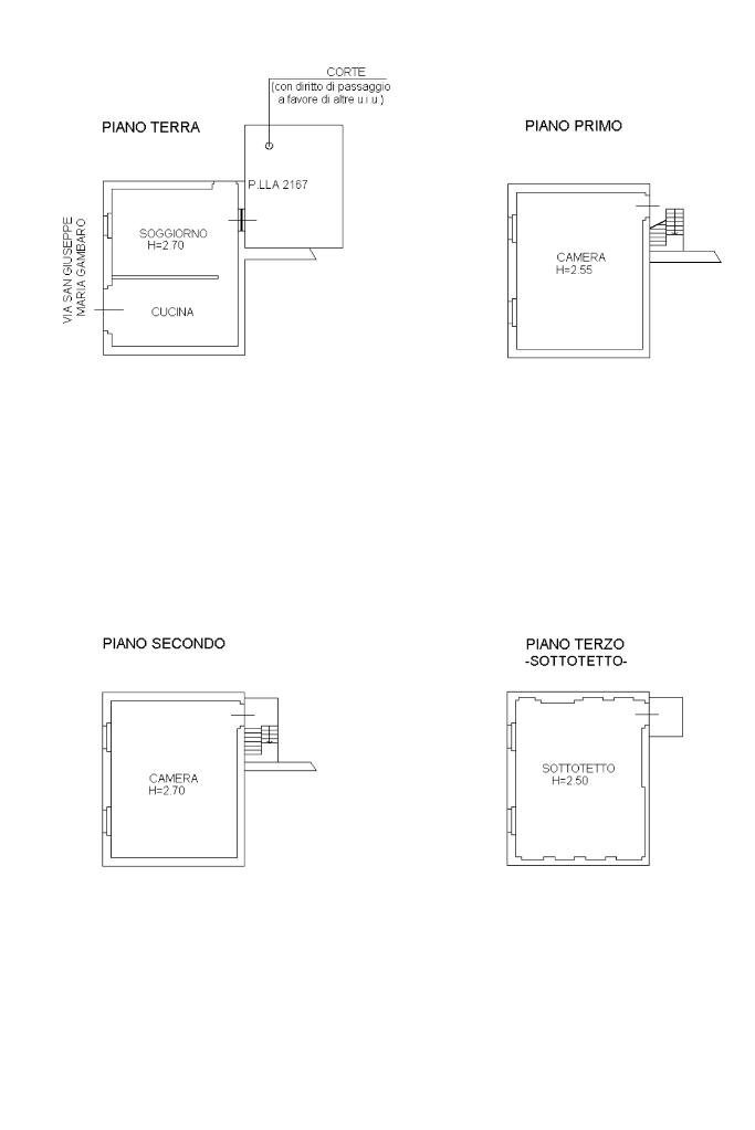
L'immobile si sviluppa su tre livelli, garantendo spazi ben distribuiti e versatili, ed è composto da soggiorno, cucina e tre camere.
La posizione centrale rappresenta un punto di forza, permettendo di godere di tutti i servizi e le comodità che Galliate offre, senza rinunciare alla tranquillità di una residenza privata.
Le immagini del render hanno scopo puramente illustrativo e non fanno parte dell'offerta commerciale. Il rustico in vendita è da ristrutturare e la ristrutturazione mostrata è solo un'idea di possibile realizzazione del cliente.
Nel cuore del comune di Galliate, proponiamo un rustico che offre un'opportunità unica per chi desidera personalizzare la propria abitazione.
L'immobile si sviluppa su tre livelli, garantendo spazi ben distribuiti e versatili, ed è composto da soggiorno, cucina e tre camere.
La posizione centrale rappresenta un punto di forza, permettendo di godere di tutti i servizi e le comodità che Galliate offre, senza rinunciare alla tranquillità di una residenza privata.
Le immagini del render hanno scopo puramente illustrativo e non fanno parte dell'offerta commerciale. Il rustico in vendita è da ristrutturare e la ristrutturazione mostrata è solo un'idea di possibile realizzazione del cliente.
Dati principali
| Riferimento | 61156453 |
| Data annuncio | 20/12/2025 |
| Contratto | Vendita |
| Tipologia | Rustico |
| Superficie | 80 m2 |
| Locali | 4 (4 altro) |
| Piano | 3 totali |
Costi
| Prezzo | 26.000 € |
| Prezzo al m2 | 325 €/m2 |
Efficienza energetica
| Anno costruzione | 1950 |
| Riscaldamento | Autonomo |
| Tipo Alimentazione Riscaldamento | Metano |
| Classe energetica | G |
| Indice di prestazione energetica (EP GL, REN) | 0.92 kWh/m3 anno |
| Indice di prestazione energetica (EP GL, NREN) | 302.32 kWh/m3 anno |
Planimetrie
Indirizzo e mappa
Via San Giuseppe Maria Gambaro, Galliate
Calcolo mutuo
Prezzo di vendita:
Anticipo
20,00
Mutuo
80,00
Tasso: -+
Rata: 74 al mese
I risultati sono una stima indicativa basata sui dati inseriti e non costituiscono un’offerta finanziaria.
Inserzionista
Chiama
CONTATTA

