Bilocale Via Risorgimento, Lugo
€ 142.600Bilocale in vendita
LUGO: In stabile in corso di completo restauro e risanamento conservativo proponiamo in vendita abitazione al piano terra con corte privata.
All'abitazione si accede da un ingresso indipendente dal proprio cortile privato, ed è inserita in un contesto di complessive 7 unità immobiliari di diverse tipologie, di cui altre due, oltre a questa, con ingresso indipendente.
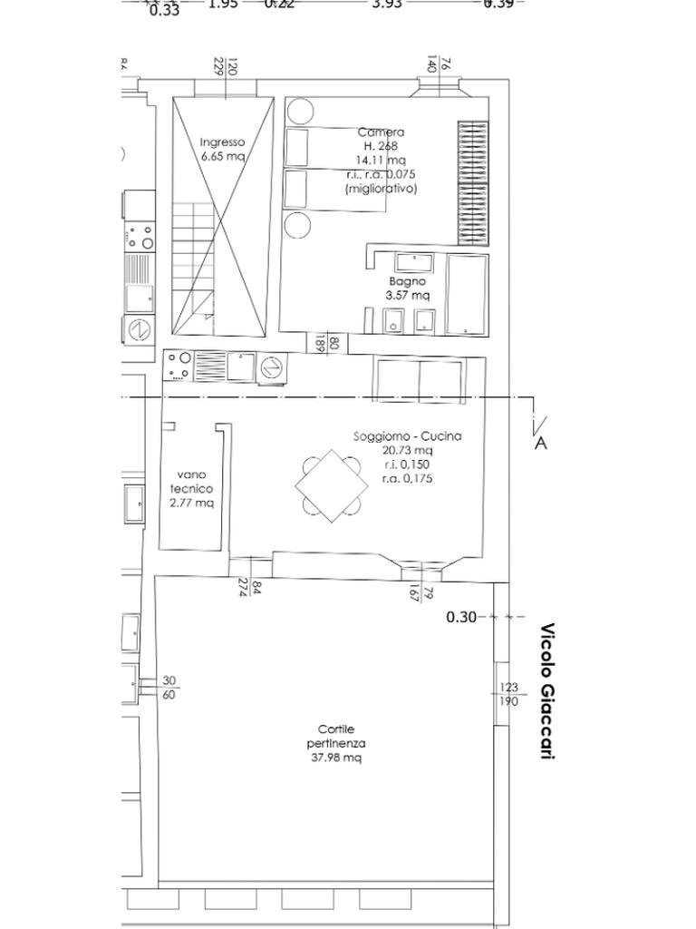
Il soggiorno con cucina a vista è perfetto per momenti di relax e con accesso alla corte privata di 40 mq per goderti le belle giornate all'aperto. La camera da letto matrimoniale offre un rifugio accogliente e caldo. Il bagno moderno e il vano tecnico (ripostiglio) completano gli spazi interni.
La consegna è prevista per ottobre/novembre 2026.
Possibilità di acquisto di autorimessa.
Dotato di impianto fotovoltaico potenza 4,26 kw e con classe energetica A1, assicurano standard elevati di efficienza energetica e design.
Questa proprietà rappresenta un'opportunità interessante per chi desidera vivere in un contesto tranquillo, senza rinunciare alle comodità moderne.
Per maggiori informazioni o per fissare un appuntamento per visionare l'immobile, potete contattarci allo 0545-287708 o tramite mail.
All'abitazione si accede da un ingresso indipendente dal proprio cortile privato, ed è inserita in un contesto di complessive 7 unità immobiliari di diverse tipologie, di cui altre due, oltre a questa, con ingresso indipendente.
Il soggiorno con cucina a vista è perfetto per momenti di relax e con accesso alla corte privata di 40 mq per goderti le belle giornate all'aperto. La camera da letto matrimoniale offre un rifugio accogliente e caldo. Il bagno moderno e il vano tecnico (ripostiglio) completano gli spazi interni.
La consegna è prevista per ottobre/novembre 2026.
Possibilità di acquisto di autorimessa.
Dotato di impianto fotovoltaico potenza 4,26 kw e con classe energetica A1, assicurano standard elevati di efficienza energetica e design.
Questa proprietà rappresenta un'opportunità interessante per chi desidera vivere in un contesto tranquillo, senza rinunciare alle comodità moderne.
Per maggiori informazioni o per fissare un appuntamento per visionare l'immobile, potete contattarci allo 0545-287708 o tramite mail.
Dati principali
| Riferimento | 61155280 |
| Data annuncio | 19/12/2025 |
| Contratto | Vendita |
| Tipologia | Appartamento |
| Superficie | 62 m2 |
| Locali | 2 (2 altro), 1 bagno |
| Piano | 2 totali |
Costi
| Prezzo | 142.600 € |
| Prezzo al m2 | 2.300 €/m2 |
Efficienza energetica
| Anno costruzione | 1900 |
| Riscaldamento | Autonomo |
| Tipo Alimentazione Riscaldamento | Metano |
| Classe energetica | A1 |
Planimetrie
Indirizzo e mappa
Via Risorgimento, Lugo
Calcolo mutuo
Prezzo di vendita:
Anticipo
20,00
Mutuo
80,00
Tasso: -+
Rata: 408 al mese
I risultati sono una stima indicativa basata sui dati inseriti e non costituiscono un’offerta finanziaria.
Inserzionista
Agenzia Tecnocasa Studio Baracca Srlu
Via Matteotti, 4, Lugo
Mostra Telefono
Chiama
CONTATTA

