Appartamento Floridia
€ 100.000
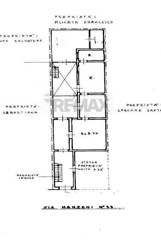
RIF.1547 - FLORIDIA A Floridia si vende su due livelli un immobile indipendente totalmente da ristrutturare composto da 5,5 vani al piano terra con cortiletto e da 6 vani al primo piano con terrazzo di pertinenza. L'immobile come gia' scritto si presenta da ristrutturare totalmente in ogni sua parte, ma si presta per la realizzazione di uno o più appartamenti.
Dati principali
| Riferimento | 32461547-9 |
| Data annuncio | 19/12/2025 |
| Contratto | Vendita |
| Tipologia | Appartamento |
| Superficie | 150 m2 |
| Locali | più di 5 (6 camere da letto, 5 altro), 2 bagni, cucina abitabile |
| Piano | Su più livelli, 2 totali |
| Tipo di costruzione | Popolare |
| Occupato | Libero |
| Box auto | Assente |
Costi
| Prezzo | 100.000 € |
| Prezzo al m2 | 667 €/m2 |
Efficienza energetica
| Stato | Da ristrutturare |
| Riscaldamento | Assente |
| Tipo Alimentazione Riscaldamento | Altro |
| Classe energetica | G |
| Indice di prestazione energetica (IPE) | - |
Planimetrie
Indirizzo e mappa
Floridia
Annuncio senza mappa,
prova a chiedere la posizione all'inserzionista
prova a chiedere la posizione all'inserzionista
Calcolo mutuo
Prezzo di vendita:
Anticipo
20,00
Mutuo
80,00
Tasso: -+
Rata: 286 al mese
I risultati sono una stima indicativa basata sui dati inseriti e non costituiscono un’offerta finanziaria.
Inserzionista
Chiama
CONTATTA


