Casa indipendente Via Salara Comunale, Cervia
€ 195.000Casa indipendente in vendita
CANNUZZO – in zona tranquilla e riservata, proponiamo casa completamente indipendente con ampio giardino privato.
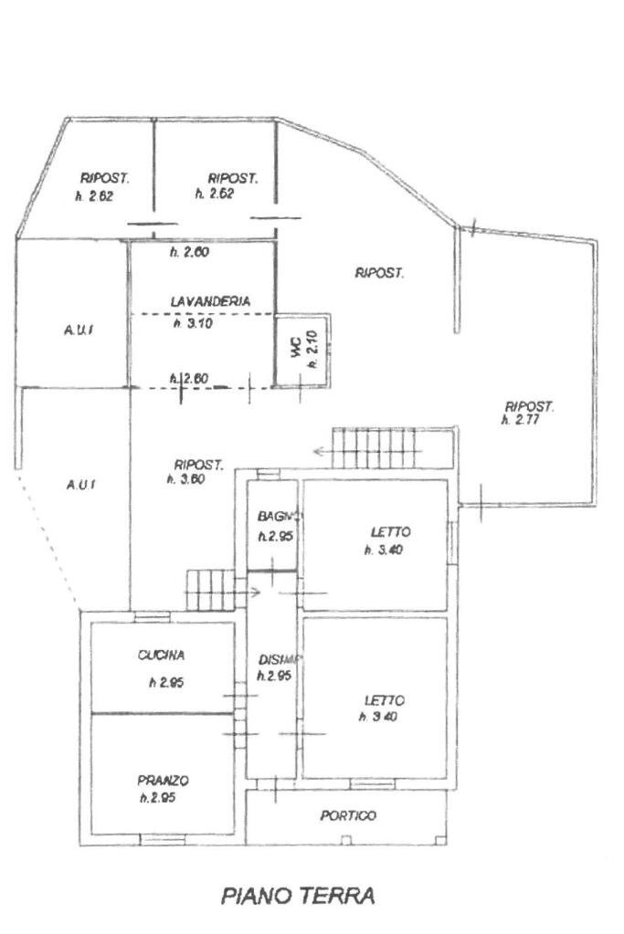
L’ingresso avviene tramite un comodo portico che conduce all’interno dell’abitazione, dove troviamo una luminosa sala da pranzo e una cucina separata, funzionale e ben organizzata.
Dal disimpegno si accede alla zona notte, composta da due spaziose camere matrimoniali e da un bagno.
Completano la proprietà il garage e diversi servizi sul retro, ideali come locali di deposito o spazi accessori.
Ideale come prima abitazione e per chi desidera avere la propria indipendenza.
Per ulteriori informazioni o per fissare un appuntamento, contattaci allo 0544 977424.
L’ingresso avviene tramite un comodo portico che conduce all’interno dell’abitazione, dove troviamo una luminosa sala da pranzo e una cucina separata, funzionale e ben organizzata.
Dal disimpegno si accede alla zona notte, composta da due spaziose camere matrimoniali e da un bagno.
Completano la proprietà il garage e diversi servizi sul retro, ideali come locali di deposito o spazi accessori.
Ideale come prima abitazione e per chi desidera avere la propria indipendenza.
Per ulteriori informazioni o per fissare un appuntamento, contattaci allo 0544 977424.
Dati principali
| Riferimento | 61155710 |
| Data annuncio | 18/12/2025 |
| Contratto | Vendita |
| Tipologia | Casa indipendente |
| Superficie | 180 m2 |
| Locali | 4 (2 camere da letto, 2 altro), 1 bagno |
| Piano | 1 totali |
Costi
| Prezzo | 195.000 € |
| Prezzo al m2 | 1.083 €/m2 |
Efficienza energetica
| Anno costruzione | 1950 |
| Riscaldamento | Autonomo |
| Tipo Alimentazione Riscaldamento | Metano |
| Classe energetica | G |
| Indice di prestazione energetica (EP GL, NREN) | 509.1 kWh/m3 anno |
Planimetrie
Video
Indirizzo e mappa
Via Salara Comunale, Cervia
Calcolo mutuo
Prezzo di vendita:
Anticipo
20,00
Mutuo
80,00
Tasso: -+
Rata: 558 al mese
I risultati sono una stima indicativa basata sui dati inseriti e non costituiscono un’offerta finanziaria.
Inserzionista
Agenzia Tecnocasa Studio Cervia Srl
Viale Roma, 25, Cervia
Mostra Telefono
Chiama
CONTATTA

