Casa indipendente Corte Patitari 8, Gallipoli
€ 649.000
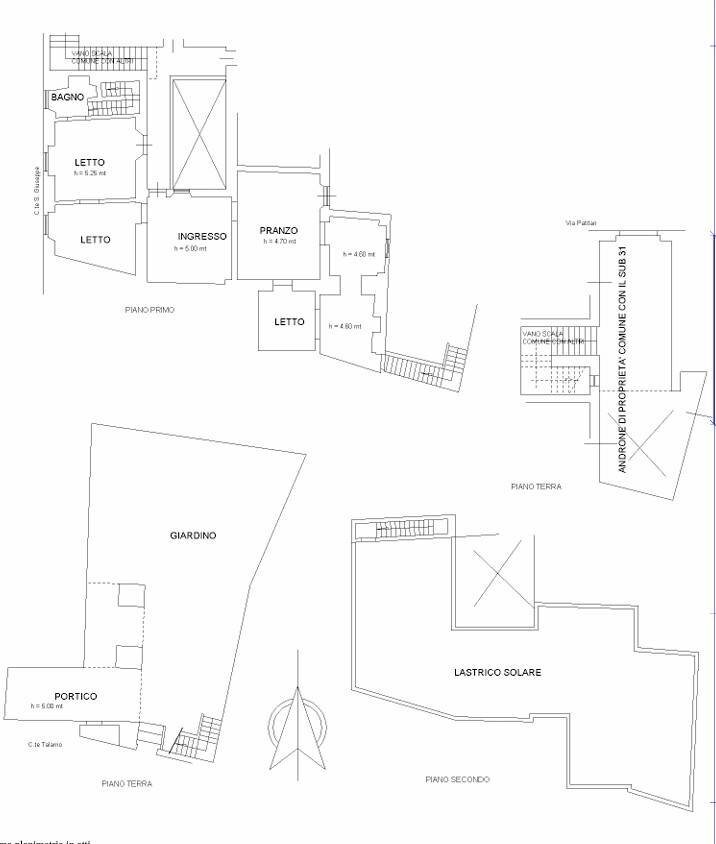
Nel cuore antico di Gallipoli, a due passi dla mare e dalla Cattedrale di Sant'Agata, disponibile una incantevole abitazione d'epoca ristrutturata, L'immobile, della superficie complessiva di circa 170 mq, si compone di un ingresso da una corte privata e da una scala comune caratterizzata da antiche volte a stella e scala in marmo, due ingressi conducono all'interno dell'abitazione che è stata suddivisa in due soluzioni distinte ma comunque collegate tra loro. Questa casa esclusiva vanta una zona living con camino in pietra, due cucine abitabili, tre camere da letto, due bagni, una terrazza con vista sul cuore antico della città e sul mare oltre a un giardino privato idela eper qualsiasi tipo di esigenza. La soluzione proposta è tra le più esclusive del centro storico della città bella e può essere trasformata in una struttura ricettiva unica nel suo genere. LE PRESENTI INFORMAZIONI E PLANIMETRIE SONO MERAMENTE INDICATIVE E NON COSTITUISCONO ELEMENTI CONTRATTUALI.
Dati principali
| Riferimento | 148 |
| Data annuncio | 18/12/2025 |
| Contratto | Vendita |
| Tipologia | Casa indipendente |
| Superficie | 175 m2 |
| Locali | più di 5 (3 camere da letto, 3 altro), 2 bagni, cucina abitabile |
| Tipo di costruzione | Signorile |
| Occupato | Libero |
| Arredamento | Assente |
Caratteristiche
Costi
| Prezzo | 649.000 € |
| Prezzo al m2 | 3.709 €/m2 |
Efficienza energetica
| Stato | Ottimo |
| Riscaldamento | Assente |
| Tipo Alimentazione Riscaldamento | Altro |
| Classe energetica | F |
| Indice di prestazione energetica (IPE) | - |
Planimetrie
Indirizzo e mappa
Corte Patitari
8, Gallipoli
Annuncio senza mappa,
prova a chiedere la posizione all'inserzionista
prova a chiedere la posizione all'inserzionista
Calcolo mutuo
Prezzo di vendita:
Anticipo
20,00
Mutuo
80,00
Tasso: -+
Rata: 1.856 al mese
I risultati sono una stima indicativa basata sui dati inseriti e non costituiscono un’offerta finanziaria.
Inserzionista
Tommaso Provenzano IMMOBILIARE
Via Kennedy 1, Gallipoli
Mostra Cellulare
Tommaso Provenzano IMMOBILIARE
Mostra Telefono
Chiama
CONTATTA

