Villa Via Cervia, Ragusa
€ 545.000
Villa bifamiliare di nuova costruzione in vendita a Marina di Ragusa a 800 metri dal mare
Proponiamo in vendita a Marina di Ragusa una splendida villa bifamiliare di nuova costruzione, situata in una delle zone più ricercate della località, a soli 800 metri dal mare.
Una soluzione ideale per chi desidera una villa moderna vicino al mare in Sicilia, perfetta sia come abitazione principale che come casa vacanze di prestigio.
La villa sorge su un lotto di terreno di circa 750 mq e si distingue per ampie metrature, comfort moderni ed elevata efficienza energetica.
Composizione dellimmobile Labitazione dispone di doppio accesso, carrabile e pedonale. Dallaccesso carrabile è possibile usufruire di due posti auto privati.
Allingresso troviamo un elegante salotto con parete attrezzata su misura, che funge da elemento di collegamento tra la zona giorno e la zona notte.
La zona living si sviluppa in una cucina di circa 50 mq, estremamente luminosa grazie alle ampie vetrate che si affacciano su un giardino privato di circa 300 mq.
Lo spazio esterno è perfettamente attrezzato e comprende:
zona barbecue
doccia esterna
ripostiglio
Allinterno della zona giorno è inoltre presente una comoda lavanderia/ripostiglio.
La zona notte è composta da:
due camere da letto, di cui una con cabina armadio
bagno moderno con finiture di pregio
Finiture e dotazioni di alto livello Lintero immobile è caratterizzato da finiture di lusso, tra cui:
pavimentazione interamente in resina
arredi su misura
elettrodomestici di alta fascia
infissi Schüco con triplo vetro
cappotto termico
impianto d' allarme ed video sorveglianza
impianto fotovoltaico da 10 kW
Queste caratteristiche garantiscono altissime prestazioni energetiche, comfort abitativo e risparmio sui consumi.
La villa viene venduta completamente arredata.
Questa opportunità rappresenta una soluzione perfetta per chi desidera una villa singola a Marina di Ragusa, personalizzabile e situata in un contesto esclusivo a pochi passi dal mare.
Contattaci Per ricevere maggiori informazioni o per prenotare una visita, non esitare a contattarci.
Unoccasione unica per investire in una villa di pregio a Marina di Ragusa, una delle località balneari più apprezzate della Sicilia.
Proponiamo in vendita a Marina di Ragusa una splendida villa bifamiliare di nuova costruzione, situata in una delle zone più ricercate della località, a soli 800 metri dal mare.
Una soluzione ideale per chi desidera una villa moderna vicino al mare in Sicilia, perfetta sia come abitazione principale che come casa vacanze di prestigio.
La villa sorge su un lotto di terreno di circa 750 mq e si distingue per ampie metrature, comfort moderni ed elevata efficienza energetica.
Composizione dellimmobile Labitazione dispone di doppio accesso, carrabile e pedonale. Dallaccesso carrabile è possibile usufruire di due posti auto privati.
Allingresso troviamo un elegante salotto con parete attrezzata su misura, che funge da elemento di collegamento tra la zona giorno e la zona notte.
La zona living si sviluppa in una cucina di circa 50 mq, estremamente luminosa grazie alle ampie vetrate che si affacciano su un giardino privato di circa 300 mq.
Lo spazio esterno è perfettamente attrezzato e comprende:
zona barbecue
doccia esterna
ripostiglio
Allinterno della zona giorno è inoltre presente una comoda lavanderia/ripostiglio.
La zona notte è composta da:
due camere da letto, di cui una con cabina armadio
bagno moderno con finiture di pregio
Finiture e dotazioni di alto livello Lintero immobile è caratterizzato da finiture di lusso, tra cui:
pavimentazione interamente in resina
arredi su misura
elettrodomestici di alta fascia
infissi Schüco con triplo vetro
cappotto termico
impianto d' allarme ed video sorveglianza
impianto fotovoltaico da 10 kW
Queste caratteristiche garantiscono altissime prestazioni energetiche, comfort abitativo e risparmio sui consumi.
La villa viene venduta completamente arredata.
Questa opportunità rappresenta una soluzione perfetta per chi desidera una villa singola a Marina di Ragusa, personalizzabile e situata in un contesto esclusivo a pochi passi dal mare.
Contattaci Per ricevere maggiori informazioni o per prenotare una visita, non esitare a contattarci.
Unoccasione unica per investire in una villa di pregio a Marina di Ragusa, una delle località balneari più apprezzate della Sicilia.
Dati principali
| Riferimento | TTR101-1921 |
| Data annuncio | 18/12/2025 |
| Contratto | Vendita |
| Tipologia | Villa |
| Superficie | 129 m2 |
| Locali | più di 5 (2 camere da letto, 4 altro), 1 bagno |
| Piano | Terra, 2 totali |
| Tipo di costruzione | Signorile |
| Occupato | Libero |
| Box auto | Assente |
| Numero posti auto | 2 |
| Arredamento | Completo |
Caratteristiche
Costi
| Prezzo | 545.000 € |
| Prezzo al m2 | 4.225 €/m2 |
Efficienza energetica
| Stato | Ottimo |
| Riscaldamento | Autonomo |
| Tipo Impianto Di Riscaldamento | ad aria |
| Tipo Alimentazione Riscaldamento | Elettrico |
| Classe energetica | A2 |
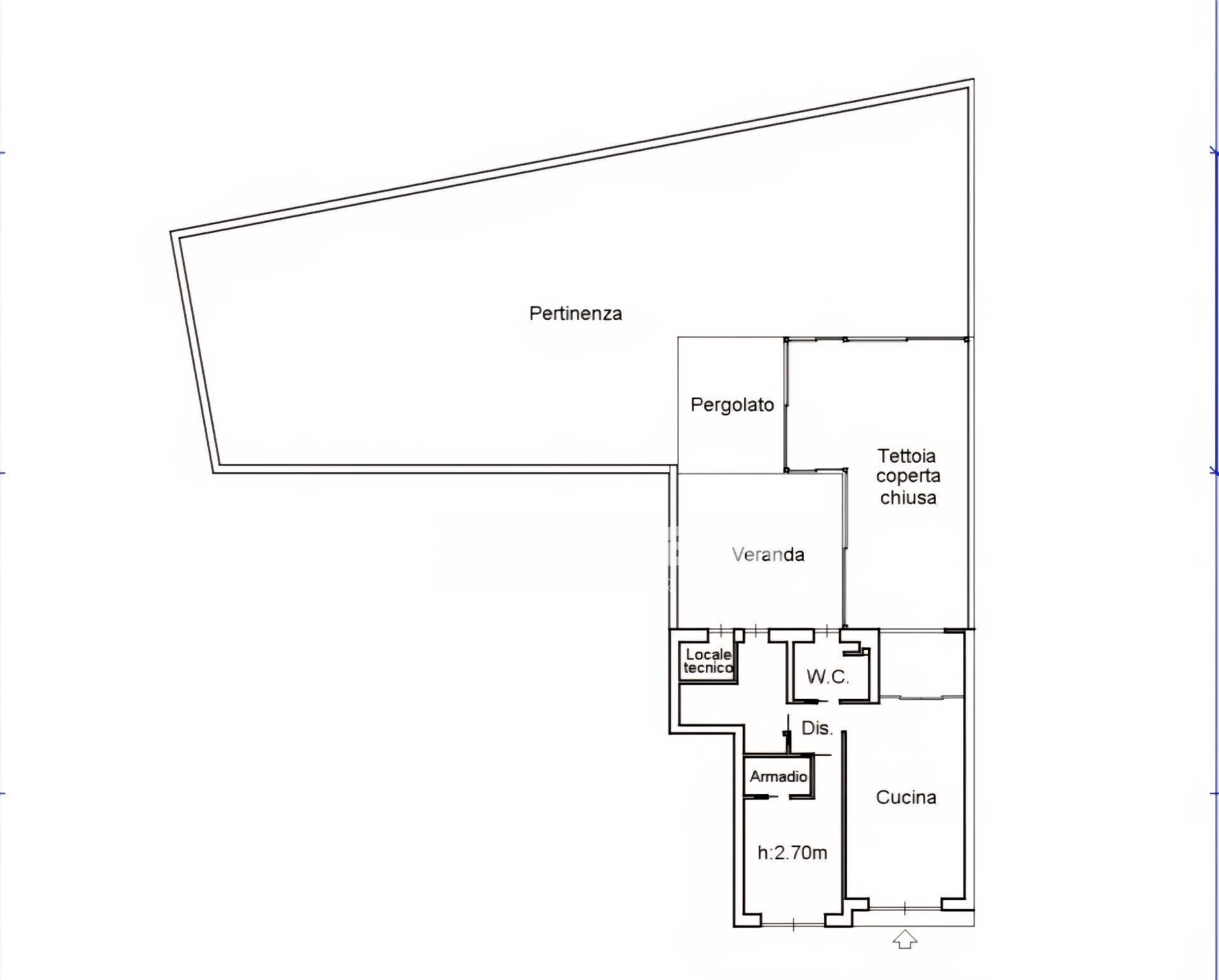
Planimetrie
Indirizzo e mappa
Via Cervia, Ragusa
Annuncio senza mappa,
prova a chiedere la posizione all'inserzionista
prova a chiedere la posizione all'inserzionista
Calcolo mutuo
Prezzo di vendita:
Anticipo
20,00
Mutuo
80,00
Tasso: -+
Rata: 1.559 al mese
I risultati sono una stima indicativa basata sui dati inseriti e non costituiscono un’offerta finanziaria.
Inserzionista
Think Tank Realtor
Via Antioco 10, Siracusa
Mostra Telefono
Mostra Cellulare
Chiama
CONTATTA

