Trilocale Viale Frosinone, Riccione
€ 355.000Trilocale in vendita
RICCIONE,
Nel cuore della località Paese, grande appartamento in vendita che unisce comfort e praticità.
Situato all'ultimo piano di un edificio costruito nel 1995, l'immobile si estende su una superficie di 125 mq, offrendo ampi spazi per ogni esigenza abitativa.
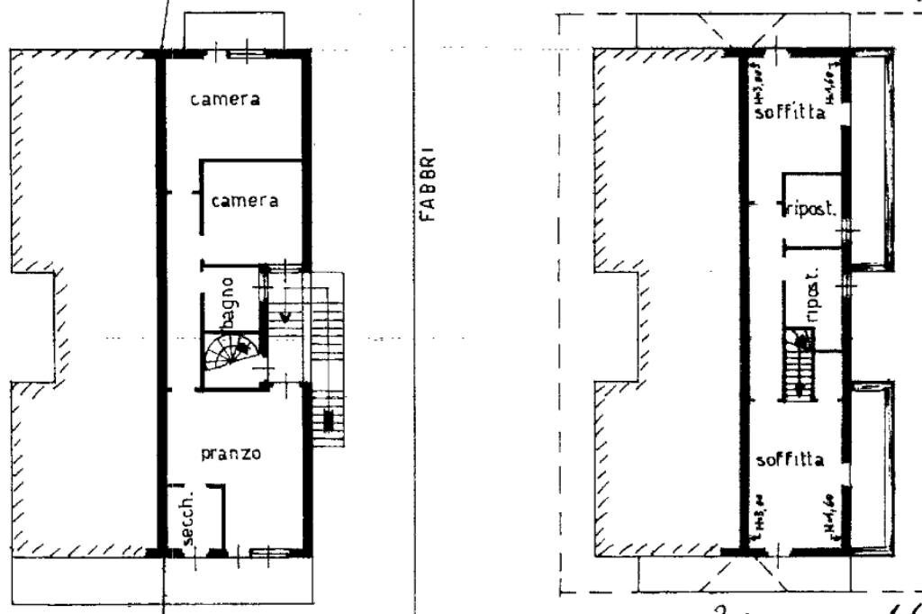
La proprietà comprende tre locali ben distribuiti, ideali per chi cerca un ambiente accogliente e funzionale.
Un valore aggiunto è rappresentato dalla grande mansarda abbinata, della stessa metratura, che offre ulteriore spazio da personalizzare secondo le proprie necessità.
All'esterno, una corte privata garantisce momenti di relax all'aria aperta, mentre i due posti auto riservati assicurano comodità e sicurezza.
Questa soluzione abitativa si distingue per la sua posizione strategica, che permette di godere della tranquillità del Paese senza rinunciare alla vicinanza ai principali servizi e alle attrazioni di Riccione.
FISSA SUBITO UN APPUNTAMENTO PER VISIONARE QUESTO IMMOBILE: 0541-601154.
Ogni agenzia ha un proprio titolare ed è autonoma.
Nel cuore della località Paese, grande appartamento in vendita che unisce comfort e praticità.
Situato all'ultimo piano di un edificio costruito nel 1995, l'immobile si estende su una superficie di 125 mq, offrendo ampi spazi per ogni esigenza abitativa.
La proprietà comprende tre locali ben distribuiti, ideali per chi cerca un ambiente accogliente e funzionale.
Un valore aggiunto è rappresentato dalla grande mansarda abbinata, della stessa metratura, che offre ulteriore spazio da personalizzare secondo le proprie necessità.
All'esterno, una corte privata garantisce momenti di relax all'aria aperta, mentre i due posti auto riservati assicurano comodità e sicurezza.
Questa soluzione abitativa si distingue per la sua posizione strategica, che permette di godere della tranquillità del Paese senza rinunciare alla vicinanza ai principali servizi e alle attrazioni di Riccione.
FISSA SUBITO UN APPUNTAMENTO PER VISIONARE QUESTO IMMOBILE: 0541-601154.
Ogni agenzia ha un proprio titolare ed è autonoma.
Dati principali
| Riferimento | 61154258 |
| Data annuncio | 17/12/2025 |
| Contratto | Vendita |
| Tipologia | Appartamento |
| Superficie | 125 m2 |
| Locali | 3 (3 altro), 1 bagno |
| Piano | 1 di 3 totali |
Costi
| Prezzo | 355.000 € |
| Prezzo al m2 | 2.840 €/m2 |
Efficienza energetica
| Anno costruzione | 1995 |
| Riscaldamento | Autonomo |
| Tipo Alimentazione Riscaldamento | Metano |
| Classe energetica | F |
| Indice di prestazione energetica (IPE) | - |
Planimetrie
Video
Indirizzo e mappa
Viale Frosinone, Riccione
Calcolo mutuo
Prezzo di vendita:
Anticipo
20,00
Mutuo
80,00
Tasso: -+
Rata: 1.015 al mese
I risultati sono una stima indicativa basata sui dati inseriti e non costituiscono un’offerta finanziaria.
Inserzionista
Chiama
CONTATTA

