Casa indipendente via di Lappeggi 10, Bagno a Ripoli
€ 270.000
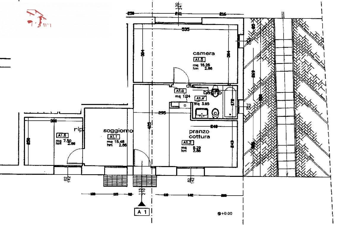
Antella collinare, in località Lappeggi all'interno del complesso ristrutturato della storica villa medicea di Lappeggi, vendesi trilocale ristrutturato (ex porzione di fienile) al piano terreno piccolo giardino privato, posto auto e taverna (nevaia) di circa mq.30 adibita a studio/cameretta. L'abitazione, con ingresso indipendente dal giardino privato di circa mq.60, si compone al suo interno di soggiorno (con accesso diretto al giardino), cucinotto, camera matrimoniale con guardaroba, cameretta con soppalco in arredo e bagno finestrato. Dal giardino si accede ad un ambiente circolare con soffitto a cupola che è stato sapientemente ristrutturato trasformandolo, da cantina abbandonata, in un locale taverna/studio/monolocale per gli ospiti di circa mq.30 con servizio. Questo ambiente, unico nel suo genere, era in origine l'antica "nevaia" della villa medicea che fungeva da locale di conservazione delle scorte nelle stagioni più calde. Oggi, grazie alla cura della proprietà, è stato reso un ambiente flessibile. Completa la proprietà un posto auto esterno. Ottimo oggetto con caratteristiche uniche e con al suo interno un pezzo di storia toscana. Euro 270.000 MER0794
Dati principali
| Riferimento | MER0794 |
| Data annuncio | 14/12/2025 |
| Contratto | Vendita |
| Tipologia | Casa indipendente |
| Superficie | 89 m2 |
| Locali | 3 (2 camere da letto, 1 altro), 2 bagni, cucina cucinino |
| Piano | Terra, 1 totali |
| Occupato | Libero |
| Box auto | Assente |
| Numero posti auto | 1 |
| Arredamento | Parziale |
Caratteristiche
Costi
| Prezzo | 270.000 € |
| Prezzo al m2 | 3.034 €/m2 |
Efficienza energetica
| Stato | Ottimo |
| Riscaldamento | Autonomo |
| Classe energetica | G |
| Indice di prestazione energetica (IPE) | - |
Planimetrie
Indirizzo e mappa
via di Lappeggi
10, Bagno a Ripoli
Annuncio senza mappa,
prova a chiedere la posizione all'inserzionista
prova a chiedere la posizione all'inserzionista
Calcolo mutuo
Prezzo di vendita:
Anticipo
20,00
Mutuo
80,00
Tasso: -+
Rata: 772 al mese
I risultati sono una stima indicativa basata sui dati inseriti e non costituiscono un’offerta finanziaria.
Inserzionista

Caterina Pirrone immobiliare
Viale Europa 101, Firenze
Mostra Cellulare
Chiama
CONTATTA

