Terreno edificabile Montesilvano
€ 138.000
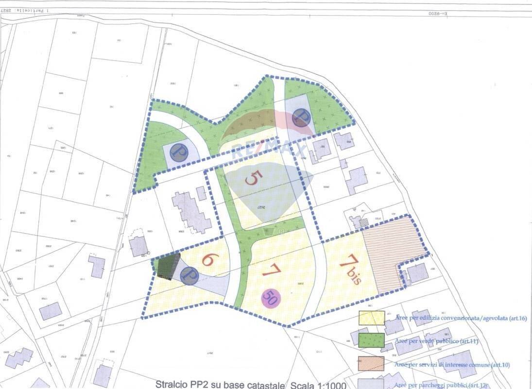
In una zona tranquilla e ottimamente servita di Montesilvano, in Via Fonte dellAbbazia, proponiamo in vendita un terreno di 3.456 mq inserito in un comparto urbanistico già attivo, con sub-comparto operativo. Larea dispone di un progetto urbanistico già sviluppato, completo di specifiche tecniche riguardanti viabilità interna, parcheggi, aree pubbliche e aree di interesse comune. Questo elemento riduce tempi e complessità nella fase di pianificazione, offrendo un quadro chiaro e già definito per leventuale intervento edilizio. Il terreno beneficia di un indice di edificabilità pari a 0,30, che consente di programmare uno sviluppo residenziale equilibrato e conforme ai parametri urbanistici vigenti. Punti di forza Terreno di 3.456 mq Comparto urbanistico attivo con sub-comparto operativo Progetto già realizzato con specifiche tecniche su strade, parcheggi, aree pubbliche e aree di interesse comune Indice di edificabilità 0,30 Contesto tranquillo, strategico e ben collegato Presenza di spazi verdi e servizi nelle vicinanze In virtù di queste caratteristiche, il terreno si presta allo sviluppo di interventi residenziali di qualità, con unintegrazione armonica tra edificato e spazi pubblici. COLLABORIAMO CON TUTTE LE AGENZIE PER LA VENDITA DEL TERRENO
Dati principali
| Riferimento | 41131015-13 |
| Data annuncio | 13/12/2025 |
| Contratto | Vendita |
| Tipologia | Terreno edificabile |
| Superficie | 3456 m2 |
| Occupato | Libero |
Costi
| Prezzo | 138.000 € |
| Prezzo al m2 | 40 €/m2 |
Efficienza energetica
| Tipo Alimentazione Riscaldamento | Altro |
| Classe energetica | Immobile esente da certificazione energetica |
Planimetrie
Indirizzo e mappa
Montesilvano
Annuncio senza mappa,
prova a chiedere la posizione all'inserzionista
prova a chiedere la posizione all'inserzionista
Calcolo mutuo
Prezzo di vendita:
Anticipo
20,00
Mutuo
80,00
Tasso: -+
Rata: 395 al mese
I risultati sono una stima indicativa basata sui dati inseriti e non costituiscono un’offerta finanziaria.
Inserzionista

RE/MAX Lilium 2
Corso Umberto, 406, Montesilvano
Mostra Telefono
Chiama
CONTATTA

