Locale Commerciale san massimiliano kolbe 2, Ragusa
€ 140.000
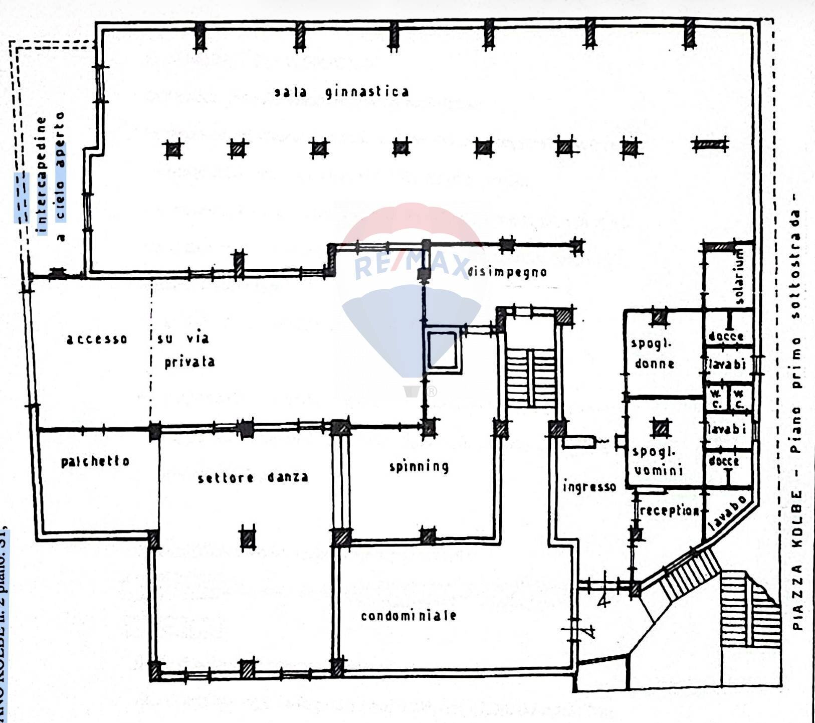
In vendita ampio locale categoria D/6, ex palestra, situato in una zona centralissima e altamente richiesta. Limmobile, posto al piano interrato, dispone di doppio accesso: ingresso pedonale e scivolo carrabile, ideale anche per carico/scarico o accesso di mezzi.
La superficie complessiva è di circa 700 mq, composta da ampie sale, spogliatoi e servizi igienici, già pronti per essere adattati a diverse esigenze.
Grazie alla sua metratura e alla versatilità degli ambienti, il locale si presta a molteplici utilizzi, tra cui:
palestra o centro fitness
centro di riabilitazione o fisioterapia
magazzino/deposito
autorimessa
altre attività compatibili con la categoria D/6
Soluzione ideale per investitori o professionisti che cercano un immobile spazioso, funzionale e in posizione strategica.
La superficie complessiva è di circa 700 mq, composta da ampie sale, spogliatoi e servizi igienici, già pronti per essere adattati a diverse esigenze.
Grazie alla sua metratura e alla versatilità degli ambienti, il locale si presta a molteplici utilizzi, tra cui:
palestra o centro fitness
centro di riabilitazione o fisioterapia
magazzino/deposito
autorimessa
altre attività compatibili con la categoria D/6
Soluzione ideale per investitori o professionisti che cercano un immobile spazioso, funzionale e in posizione strategica.
Dati principali
| Riferimento | 40001074-64 |
| Data annuncio | 13/12/2025 |
| Contratto | Vendita |
| Tipologia | Locale Commerciale |
| Superficie | 700 m2 |
| Locali | 1 (1 altro), 1 bagno |
| Piano | Interrato |
| Occupato | Libero |
Costi
| Prezzo | 140.000 € |
| Prezzo al m2 | 200 €/m2 |
Efficienza energetica
| Riscaldamento | Assente |
| Tipo Alimentazione Riscaldamento | Altro |
| Classe energetica | G |
| Indice di prestazione energetica (IPE) | - |
Planimetrie
Indirizzo e mappa
san massimiliano kolbe
2, Ragusa
Annuncio senza mappa,
prova a chiedere la posizione all'inserzionista
prova a chiedere la posizione all'inserzionista
Calcolo mutuo
Prezzo di vendita:
Anticipo
20,00
Mutuo
80,00
Tasso: -+
Rata: 400 al mese
I risultati sono una stima indicativa basata sui dati inseriti e non costituiscono un’offerta finanziaria.
Inserzionista

RE/MAX Platinum 6
Via U. La Malfa, 47/49, Ragusa
Mostra Telefono
Mostra Cellulare
Chiama
CONTATTA

