Locale Commerciale Piazza Marconi 4, Gozzano
€ 1.039.500Capannone / Fondo - Industriale/Artigianale a Gozzano
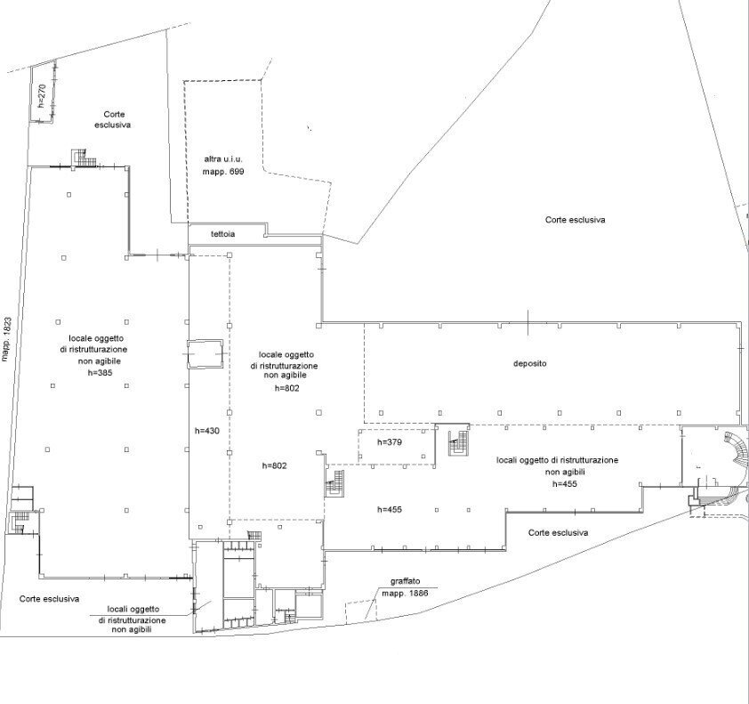
Piena Proprietà di un compendio immobiliare ad uso opificio (industriale) che si sviluppa su 2 livelli piano terra e piano primo collegati tra loro con scale interne ed esterne, della superficie lorda di Mq. 7.700 con annesse aree pertinenziali corti esclusive e terreni esterni adibiti a parcheggio.Agli immobili si accede da strade comunali.
- Il Prezzo visualizzato è la Base d'Asta in quanto l’immobile è oggetto di esecuzione immobiliare venduto tramite Asta Giudiziaria.
- L'immobile aggiudicato, viene venduto libero e sgombro da persone cose ed ipoteche nello stato di fatto e di diritto in cui si trova.
- Non rappresentiamo il Tribunale, ma lavoriamo nell'esclusivo interesse del potenziale acquirente per garantire un acquisto sicuro.
- I consulenti di ASTE ITALIA ti assisteranno in tutte le attività dell'iter giudiziario dalla visita dell'immobile fino alla consegna chiavi.
- Contatta il nostro Servizio Clienti , i nostri operatori sono a disposizione per chiarire i molteplici dubbi per partecipare alle ASTE.
- Il Prezzo visualizzato è la Base d'Asta in quanto l’immobile è oggetto di esecuzione immobiliare venduto tramite Asta Giudiziaria.
- L'immobile aggiudicato, viene venduto libero e sgombro da persone cose ed ipoteche nello stato di fatto e di diritto in cui si trova.
- Non rappresentiamo il Tribunale, ma lavoriamo nell'esclusivo interesse del potenziale acquirente per garantire un acquisto sicuro.
- I consulenti di ASTE ITALIA ti assisteranno in tutte le attività dell'iter giudiziario dalla visita dell'immobile fino alla consegna chiavi.
- Contatta il nostro Servizio Clienti , i nostri operatori sono a disposizione per chiarire i molteplici dubbi per partecipare alle ASTE.
Dati principali
| Riferimento | NO14/23LU-1112-25-1600 |
| Data annuncio | 01/10/2025 |
| Contratto | Vendita |
| Tipologia | Locale Commerciale |
| Superficie | 7700 m2 |
| Locali | 2 bagni |
| Piano | 2 totali |
Costi
| Prezzo | 1.039.500 € |
| Prezzo al m2 | 135 €/m2 |
Efficienza energetica
| Classe energetica | G |
Planimetrie
Indirizzo e mappa
Piazza Marconi 4, Gozzano
Calcolo mutuo
Prezzo di vendita:
Anticipo
20,00
Mutuo
80,00
Tasso: -+
Rata: 2.973 al mese
I risultati sono una stima indicativa basata sui dati inseriti e non costituiscono un’offerta finanziaria.
Inserzionista
DOMY ONLINE S.R.L.
Via San Lorenzo 5/41, Genova
Mostra Telefono
Mostra Cellulare
Chiama
CONTATTA

