Casa semi indipendente Contrada Incassata snc, Montecorvino Rovella
€ 199.000
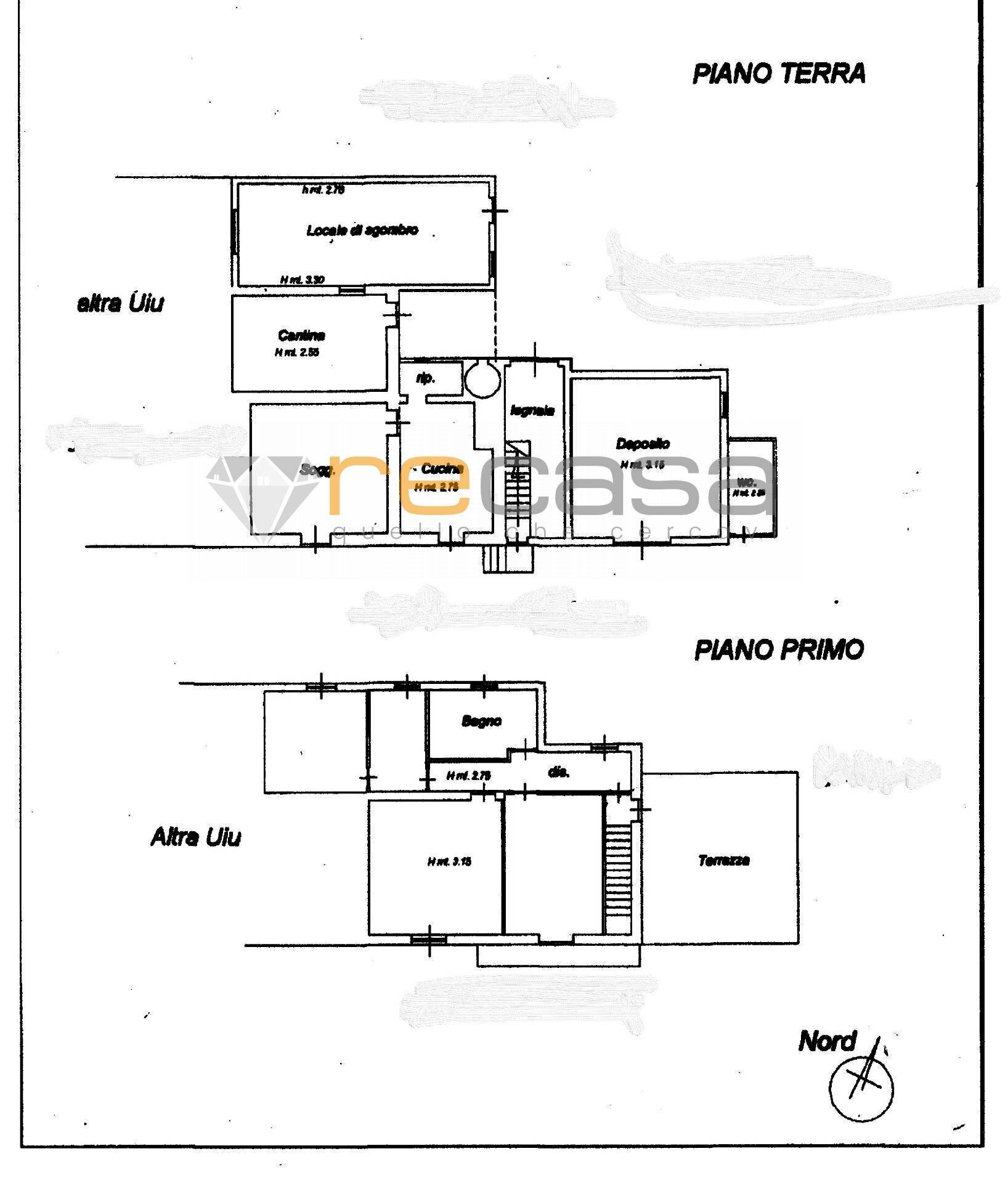
Un luogo che oggi chiede cura, ma domani saprà restituire bellezza, calore e senso di casa. Questa è la sensazione che abbiamo provato nel vedere questa casa . Montecorvino Rovella , Macchia : ti proponiamo una casa indipendente da ristrutturare che diventerà il punto di partenza per la tua nuova vita. Immagina di vivere in una casa con una vista spettacolare e un grande giardino privato, dove ogni angolo può raccontare la tua storia. Questa è loccasione che stavi cercando! La casa si trova fronte strada, si sviluppa su due livelli, due appartamenti, ognuno con il proprio ingresso privato. La casa, che necessita di una ristrutturazione completa, offre enormi potenzialità per essere trasformata nella casa dei tuoi sogni. Caratteristiche principali: - Due appartamenti separati con ingressi indipendenti, ideali per una grande famiglia o per chi cerca unopportunità di investimento. - Giardino di 500 mq, perfetto per il tuo orto, una zona relax o per creare unarea giochi per i bambini. - Deposito esterno, per riporre attrezzi o arredamenti extra. - Posizione privilegiata: a pochi passi dalla strada principale e ben collegata ai principali servizi, ma allo stesso tempo lontano dal caos cittadino. - Ristrutturazione da personalizzare: limmobile offre ampie possibilità di ristrutturazione, dandoti la libertà di realizzare la casa su misura per te. Non lasciarti sfuggire questa opportunità unica. Con un po' di immaginazione, questo angolo di paradiso può trasformarsi nel tuo rifugio perfetto! Fai il primo passo: chiamaci e lasciati ispirare da ciò che questa casa può diventare. Fin da subito puoi fissare il tuo appuntamento in ufficio per avere maggiori informazioni e laddove necessario fissare una consulenza finanziaria . Infatti nel caso di acquisto con mutuo, ti garantiremo una consulenza preventiva gratuita per un acquisto in totale tranquillità e senza sorprese. Se invece devi prima vendere la tua casa, ti offriamo anche lopportunità del servizio CAMBIO CASA, una strategia verificata che ti permetterà di fare insieme le due operazioni senza alcun rischio. Contattaci al n. 0828355512 per fissare una consulenza personalizzata .
Dati principali
| Riferimento | 1621 W |
| Data annuncio | 12/12/2025 |
| Contratto | Vendita |
| Tipologia | Casa semi indipendente |
| Superficie | 229 m2 |
| Locali | 4 (4 camere da letto), 2 bagni, cucina abitabile |
| Piano | Su più livelli, 2 totali |
| Occupato | Libero |
| Box auto | Singolo |
| Arredamento | Assente |
Caratteristiche
Costi
| Prezzo | 199.000 € |
| Prezzo al m2 | 869 €/m2 |
Efficienza energetica
| Stato | Da ristrutturare |
| Riscaldamento | Assente |
| Tipo Alimentazione Riscaldamento | Altro |
| Classe energetica | G |
| Indice di prestazione energetica (IPE) | 197 kWh/m2 anno |
Planimetrie
Indirizzo e mappa
Contrada Incassata
snc, Montecorvino Rovella
Annuncio senza mappa,
prova a chiedere la posizione all'inserzionista
prova a chiedere la posizione all'inserzionista
Calcolo mutuo
Prezzo di vendita:
Anticipo
20,00
Mutuo
80,00
Tasso: -+
Rata: 569 al mese
I risultati sono una stima indicativa basata sui dati inseriti e non costituiscono un’offerta finanziaria.
Inserzionista

Recasa - Quello che cercavi
via Roma 219, Bellizzi
Mostra Telefono
Sorrentino Maurizio
Mostra Telefono
Chiama
CONTATTA

