Quadrilocale Str. Borgaretto, Beinasco
€ 135.000Quadrilocale in vendita
Di questa soluzione si vende la nuda proprietà.
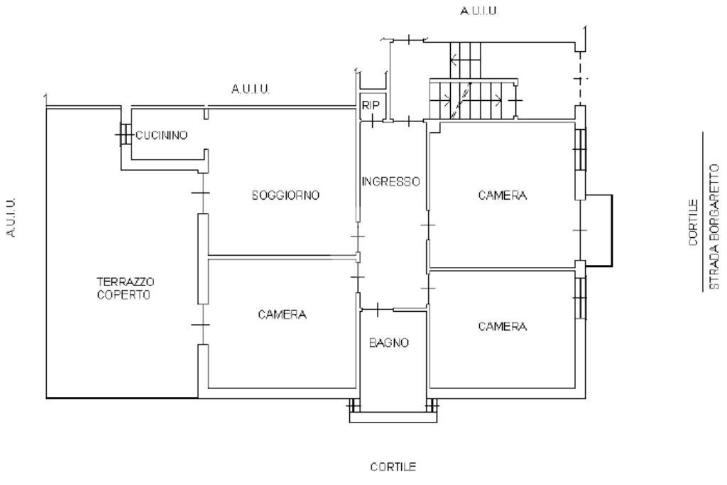
La proprietà è sita in posizione strategica in quanto comoda ai collegamenti con Beinasco centro, Torino e con Orbassano. L'alloggio si trova al primo piano di un contesto di sole quattro famiglie.
L'ingresso disimpegna in modo ottimale gli ambienti e conduce all'ampio soggiorno che può ospitare una grande parete tv con divano angolare con poltrone e libreria. Questo primo ambiente è illuminato da doppia finestra e servito da balcone privato. La cucina è abitabile e può accogliere tranquillamente una cucina completa di elettrodomestici con un tavolo per 6-8 persone. Da questo ambiente si accede all'ampio terrazzo coperto ottimo per pranzi e cene estive oltre che per momenti di relax. Essendo la cucina spaziosa, si potrebbe arredare come soggiorno con cucinino per trasformare il soggiorno nella terza camera da letto.
La zona notte è composta da due camere di generose dimensioni e arredabili sia come camera da letto matrimoniale con letto a due piazze e grande armadio sia come camera in grado di ospitare due ragazzi. Una delle camere è dotata del secondo accesso al terrazzo.
Il bagno finestrato è dotato di tutti i sanitari e della vasca da bagno. Completa il piano un ripostiglio.
Completa la proprietà la cantina.
La proprietà è sita in posizione strategica in quanto comoda ai collegamenti con Beinasco centro, Torino e con Orbassano. L'alloggio si trova al primo piano di un contesto di sole quattro famiglie.
L'ingresso disimpegna in modo ottimale gli ambienti e conduce all'ampio soggiorno che può ospitare una grande parete tv con divano angolare con poltrone e libreria. Questo primo ambiente è illuminato da doppia finestra e servito da balcone privato. La cucina è abitabile e può accogliere tranquillamente una cucina completa di elettrodomestici con un tavolo per 6-8 persone. Da questo ambiente si accede all'ampio terrazzo coperto ottimo per pranzi e cene estive oltre che per momenti di relax. Essendo la cucina spaziosa, si potrebbe arredare come soggiorno con cucinino per trasformare il soggiorno nella terza camera da letto.
La zona notte è composta da due camere di generose dimensioni e arredabili sia come camera da letto matrimoniale con letto a due piazze e grande armadio sia come camera in grado di ospitare due ragazzi. Una delle camere è dotata del secondo accesso al terrazzo.
Il bagno finestrato è dotato di tutti i sanitari e della vasca da bagno. Completa il piano un ripostiglio.
Completa la proprietà la cantina.
Dati principali
| Riferimento | 61152644 |
| Data annuncio | 11/12/2025 |
| Contratto | Vendita |
| Tipologia | Appartamento |
| Superficie | 147 m2 |
| Locali | 4 (4 altro), 1 bagno |
| Piano | 1 di 2 totali |
Costi
| Prezzo | 135.000 € |
| Prezzo al m2 | 918 €/m2 |
Efficienza energetica
| Anno costruzione | 1967 |
| Riscaldamento | Centralizzato |
| Tipo Alimentazione Riscaldamento | Metano |
| Classe energetica | D |
| Indice di prestazione energetica (EP GL, REN) | 87.85 kWh/m3 anno |
| Indice di prestazione energetica (EP GL, NREN) | 164.92 kWh/m3 anno |
Planimetrie
Video
Indirizzo e mappa
Str. Borgaretto, Beinasco
Calcolo mutuo
Prezzo di vendita:
Anticipo
20,00
Mutuo
80,00
Tasso: -+
Rata: 386 al mese
I risultati sono una stima indicativa basata sui dati inseriti e non costituiscono un’offerta finanziaria.
Inserzionista
Chiama
CONTATTA

