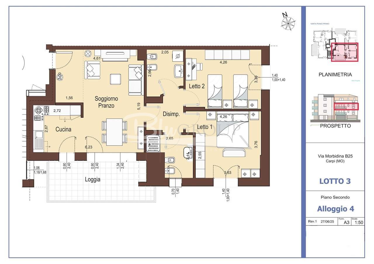
Attico Carpi
Trattativa riservata
BLU GROUP SERVIZI IMMOBILIARI presenta nel cuore del quartiere Morbidina di Carpi nuova palazzina di 8 unità abitative distribuite su tre piani. Garage e posti auto a piano terra.
Disponibili appartamenti con terrazzo da due o tre camere da letto.
Consegna fine 2027.
Principali caratteristiche:
– STRUTTURE ANTISISMICHE
struttura antisismica approvata con Decreto Ministeriale 17
gennaio 2018 – aggiornamento delle «norme tecniche per le costruzioni» – “Zona 2”
– ISOLAMENTO TERMICO
Gli isolamenti impiegati sono di ottima qualità, già in fase di progettazione vengono studiati i sistemi migliori per eliminare i ponti termici
– ISOLAMENTO ACUSTICO
materiali isolanti impiegati appositamente per attenuare considerevolmente i rumori provenienti dall’esterno, ottemperando a quanto prescritto dalle normative e permettendo un comfort acustico a livelli eccellenti. Per contribuire all’isolamento acustico tutti i serramenti sono in grado di abbattere notevolmente i rumori.
– FONTI DI ENERGIA ALTERNATIVA
tutte le unità immobiliari sono dotate di impianti fotovoltaici personali
– ECOTECH
è il metodo costruttivo utilizzato: unisce tecnologie di ultima generazione ad alto risparmio energetico con la sicurezza antisismica.
Gli APPARTAMENTI sono dotati di un impianto autonomo di riscaldamento e condizionamento, costituito da un generatore ibrido ad alta efficienza, funzionante a gas ed energia elettrica.
Il riscaldamento è realizzato a pannelli radianti a pavimento, mentre il raffrescamento avviene tramite ventilconvettori idronici. Il sistema ibrido utilizza anche l’energia elettrica solare dell’impianto fotovoltaico per la produzione di acqua calda sanitaria, riscaldamento e condizionamento. Sarà integrato dal sistema a gas metano nei periodi di mancata produzione del fotovoltaico.
Le unità presentano inoltre da capitolato impianto VMC (ventilazione meccanica controllata).
Chiamaci per fissare un appuntamento informativo, hai ancora la possibilità di personalizzare la casa dei tuoi sogni!!!
Hai un immobile da vendere o da dare in PERMUTA? Pensiamo a tutto noi, valutazione corretta di mercato e gestione della vendita!
Per ulteriori informazioni chiedere di Elena Rabitti – 059 697177 – [email protected] – www.blugroupimmobiliare.it – Ci trovi anche su Instagram, Facebook e Tik Tok; guarda le nostre RECENSIONI!
Disponibili appartamenti con terrazzo da due o tre camere da letto.
Consegna fine 2027.
Principali caratteristiche:
– STRUTTURE ANTISISMICHE
struttura antisismica approvata con Decreto Ministeriale 17
gennaio 2018 – aggiornamento delle «norme tecniche per le costruzioni» – “Zona 2”
– ISOLAMENTO TERMICO
Gli isolamenti impiegati sono di ottima qualità, già in fase di progettazione vengono studiati i sistemi migliori per eliminare i ponti termici
– ISOLAMENTO ACUSTICO
materiali isolanti impiegati appositamente per attenuare considerevolmente i rumori provenienti dall’esterno, ottemperando a quanto prescritto dalle normative e permettendo un comfort acustico a livelli eccellenti. Per contribuire all’isolamento acustico tutti i serramenti sono in grado di abbattere notevolmente i rumori.
– FONTI DI ENERGIA ALTERNATIVA
tutte le unità immobiliari sono dotate di impianti fotovoltaici personali
– ECOTECH
è il metodo costruttivo utilizzato: unisce tecnologie di ultima generazione ad alto risparmio energetico con la sicurezza antisismica.
Gli APPARTAMENTI sono dotati di un impianto autonomo di riscaldamento e condizionamento, costituito da un generatore ibrido ad alta efficienza, funzionante a gas ed energia elettrica.
Il riscaldamento è realizzato a pannelli radianti a pavimento, mentre il raffrescamento avviene tramite ventilconvettori idronici. Il sistema ibrido utilizza anche l’energia elettrica solare dell’impianto fotovoltaico per la produzione di acqua calda sanitaria, riscaldamento e condizionamento. Sarà integrato dal sistema a gas metano nei periodi di mancata produzione del fotovoltaico.
Le unità presentano inoltre da capitolato impianto VMC (ventilazione meccanica controllata).
Chiamaci per fissare un appuntamento informativo, hai ancora la possibilità di personalizzare la casa dei tuoi sogni!!!
Hai un immobile da vendere o da dare in PERMUTA? Pensiamo a tutto noi, valutazione corretta di mercato e gestione della vendita!
Per ulteriori informazioni chiedere di Elena Rabitti – 059 697177 – [email protected] – www.blugroupimmobiliare.it – Ci trovi anche su Instagram, Facebook e Tik Tok; guarda le nostre RECENSIONI!
Dati principali
| Riferimento | MORBIDINA 4 |
| Data annuncio | 11/12/2025 |
| Contratto | Vendita |
| Tipologia | Attico |
| Superficie | 117 m2 |
| Locali | 3 (2 camere da letto, 1 altro), 2 bagni |
| Piano | 2 di 3 totali |
| Numero box | 1 |
Costi
| Prezzo | Trattativa riservata |
Efficienza energetica
| Classe energetica | Immobile esente da certificazione energetica |
Indirizzo e mappa
Carpi
Inserzionista

Blu Group
Via L. Ariosto, 4/c, Carpi
Mostra Telefono
Chiama
CONTATTA

