Ufficio Via Dell' Arcoveggio, Bologna (zona Arcoveggio)
Trattativa riservataUfficio in affitto
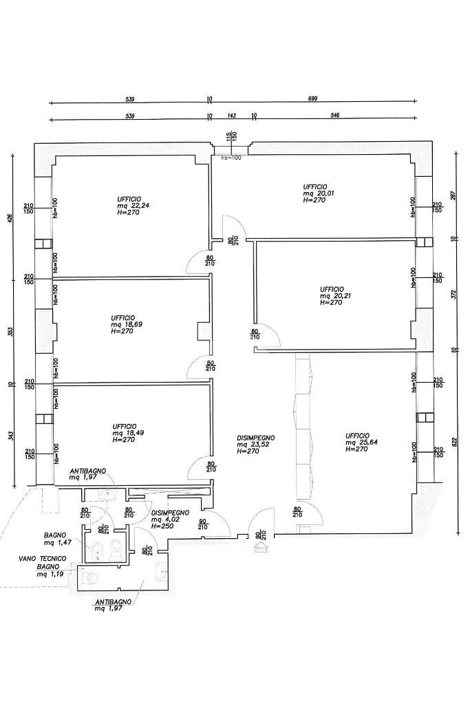
Via dell' Arcoveggio - Ampio ufficio In palazzina direzionale con ascensore, piano alto e luminoso, con ampio parcheggio. Spaziosa sala di attesa, 6 ampi vani, doppi servizi con antibagno. Immobile in ottime condizioni, climatizzato e cablato. Pavimenti in laminato e porta blindata. Comodissimo alla Tangenziale/autostrada e ai mezzi pubblici.
Dati principali
| Riferimento | 61152879 |
| Data annuncio | 11/12/2025 |
| Contratto | Affitto |
| Tipologia | Ufficio |
| Superficie | 200 m2 |
| Locali | più di 5 (6 altro), 2 bagni |
Costi
| Prezzo | Trattativa riservata |
| Spese condominiali | € 167,00/mese |
Efficienza energetica
| Anno costruzione | 2000 |
| Tipo Alimentazione Riscaldamento | Metano |
| Classe energetica | F |
| Indice di prestazione energetica (EP GL, REN) | 175 kWh/m3 anno |
| Indice di prestazione energetica (EP GL, NREN) | 175 kWh/m3 anno |
Planimetrie
Indirizzo e mappa
Via Dell' Arcoveggio, Bologna - quartiere Arcoveggio
Inserzionista
Agenzia Tecnocasa La Commerciale Srl
Via Marconi, 49/A, Bologna
Mostra Telefono
Chiama
CONTATTA

