Appartamento Corso Sebastopoli, 213, Torino (zona Santa Rita)
€ 295.000Appartamento in vendita a Torino corso Sebastopoli, 213
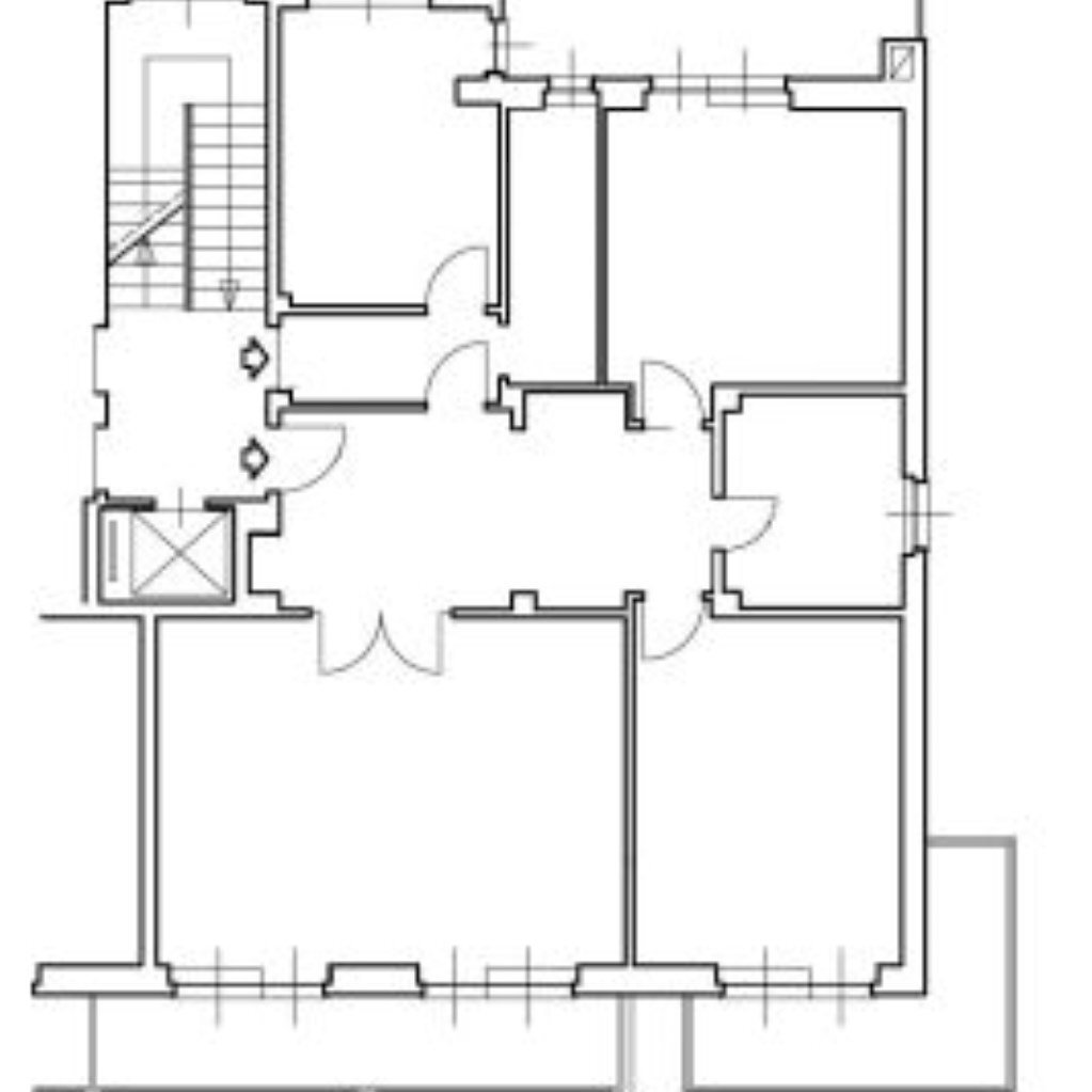
Virtual Tour: https://viewer.Realisti.Co/dny6fi/Proponiamo in vendita ampio appartamento di mq 130 con doppio ingresso, al piano 9 e ultimo con ascensore composto da:IngressoAmpia sala con doppio accesso al balcone con affaccio su corso Sebastopoli e vista panoramicaDisimpegnoDue camere da letto, entrambe con balconeCucinaDoppi servizi entrambi finestratiTre aree di esposizioneBalconi ampi e con vista panoramica sulle montagneRiscaldamento centralizzato con Termo Valvole - TeleriscaldamentoSpese condominiali consuntivo 2024/2025 € 1.269,30Spese di riscaldamento 2024/2025 € 412,21Boiler elettrico per l'acqua calda sanitariaClasse energetica fInfissi in legno vetro singoloPorta blindataPavimenti in marmo in ingresso sala, una camera da letto e bagnoParquet nell'altra cameraCeramica in cucinaCompleta la proprietà una cantinaPortineria nel condominio a fiancoSono stati approvati lavori di rifacimento facciata e balconi lato corso SebastopoliL'immobile è situato in un contesto piacevole, ben fornito da attività commerciali, supermercati, mezzi di trasporto, centri sportivi e piscine. A poco più di 1 km a parco piazza d'Armi e allo Stadio Olimpico e all'Inalpi Arena, luogo di spettacoli e concerti.A 10 minuti di macchina all'Ospedale MaurizianoComodo sia per raggiungere il centro di Torino che i principali svincoli per l'autostrada.A 2,5 km da Shopville Le Gru e Decatholn di Grugliasco e a 4 km da Le Fornaci
Dati principali
| Riferimento | VT254 |
| Data annuncio | 10/12/2025 |
| Contratto | Vendita |
| Tipologia | Appartamento |
| Superficie | 130 m2 |
| Locali | 5 (5 altro), 2 bagni |
Costi
| Prezzo | 295.000 € |
| Prezzo al m2 | 2.269 €/m2 |
Efficienza energetica
| Classe energetica | E |
| Indice di prestazione energetica (IPE) | - |
Planimetrie
Indirizzo e mappa
Corso Sebastopoli, 213, Torino - quartiere Santa Rita
Calcolo mutuo
Prezzo di vendita:
Anticipo
20,00
Mutuo
80,00
Tasso: -+
Rata: 844 al mese
I risultati sono una stima indicativa basata sui dati inseriti e non costituiscono un’offerta finanziaria.
Inserzionista

IMMOBILIARE PINELLI
CORSO G. SICCARDI 6, Torino
Mostra Telefono
Chiama
CONTATTA

