Ufficio Massarosa
€ 120.000Ufficio in vendita a Quiesa, Massarosa (LU) | Lucca case
N232K - SEI ALLA RICERCA DEL TUO UFFICIO O VUOI FARE UN INVESTIMENTO ?
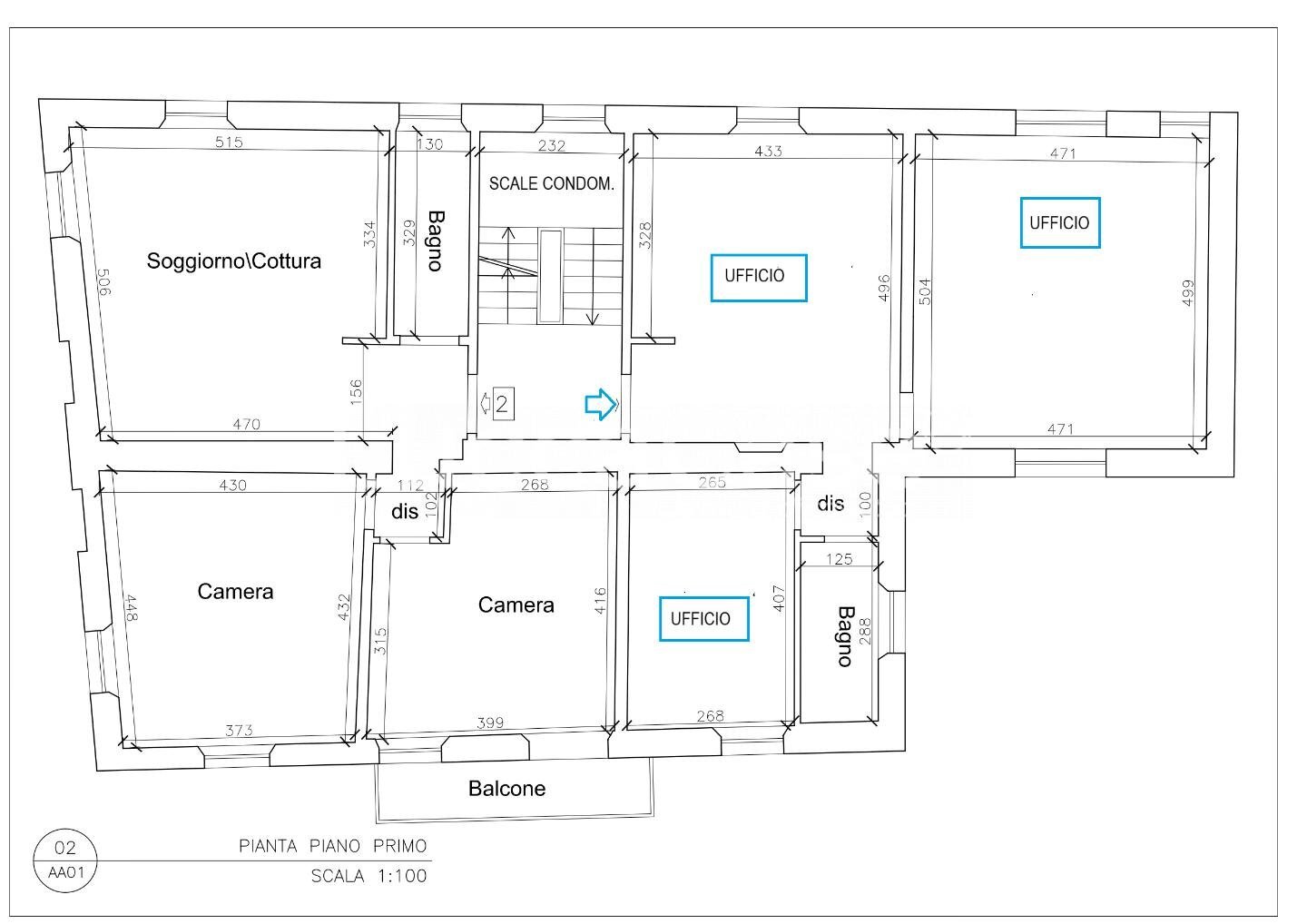
COMUNE DI MASSAROSA ( Lucca) nel cuore della frazione di Quiesa, dove a due passi hai mezzi e negozi di prima necessità Ti propongo al piano primo di palazzina anni 30 interamente ristrutturata sia interamente che esternamete e di pochissime unità immobiliari, un ufficio di 79 mq commerciali.
Ci accede allo stesso dalla doppia loggia condominiale, curatissima, è composto da tre vani, e servizio igienico con doccia finestrato.
Gli ambienti, dalla tripla esposizione ( nord/sud/est) sono luminosi –
Possibilità di posto auto esclusivo ( il cui prezzo è di Euro 8.000) collocato sul lato sud nel fabbricato al quale si acese tramite sbarra elettrica –
L’ufficio è dotato di split caldo/freddo in entrambi gli ambienti –
FINITURE : Portoncino d’ingresso blindato, infissi con doppi vetri – pavimento in gres effetto legno, persiane in alluminio.
Edificio in classe energetica B – KhW/mq annuo 34, 51
La disponibilità è immediata -
Si precsa che in prezzo indicato è relativi al solo ufficio -
Per motivi di riservatezza, la geolocalizzazione dell'immobile indica la zona in particolare, ma non l'indirizzo esatto dell'immobile.
COMUNE DI MASSAROSA ( Lucca) nel cuore della frazione di Quiesa, dove a due passi hai mezzi e negozi di prima necessità Ti propongo al piano primo di palazzina anni 30 interamente ristrutturata sia interamente che esternamete e di pochissime unità immobiliari, un ufficio di 79 mq commerciali.
Ci accede allo stesso dalla doppia loggia condominiale, curatissima, è composto da tre vani, e servizio igienico con doccia finestrato.
Gli ambienti, dalla tripla esposizione ( nord/sud/est) sono luminosi –
Possibilità di posto auto esclusivo ( il cui prezzo è di Euro 8.000) collocato sul lato sud nel fabbricato al quale si acese tramite sbarra elettrica –
L’ufficio è dotato di split caldo/freddo in entrambi gli ambienti –
FINITURE : Portoncino d’ingresso blindato, infissi con doppi vetri – pavimento in gres effetto legno, persiane in alluminio.
Edificio in classe energetica B – KhW/mq annuo 34, 51
La disponibilità è immediata -
Si precsa che in prezzo indicato è relativi al solo ufficio -
Per motivi di riservatezza, la geolocalizzazione dell'immobile indica la zona in particolare, ma non l'indirizzo esatto dell'immobile.
Dati principali
| Riferimento | N232K |
| Data annuncio | 09/12/2025 |
| Contratto | Vendita |
| Tipologia | Ufficio |
| Superficie | 79 m2 |
Costi
| Prezzo | 120.000 € |
| Prezzo al m2 | 1.519 €/m2 |
Efficienza energetica
| Classe energetica | B |
| Indice di prestazione energetica (EP GL, NREN) | 34 kWh/m3 anno |
Indirizzo e mappa
Massarosa
Calcolo mutuo
Prezzo di vendita:
Anticipo
20,00
Mutuo
80,00
Tasso: -+
Rata: 343 al mese
I risultati sono una stima indicativa basata sui dati inseriti e non costituiscono un’offerta finanziaria.
Inserzionista

LuccaCase
VIALE EUROPA 474, Lucca
Mostra Cellulare
Chiama
CONTATTA

