Ufficio Massarosa
€ 115.000Ufficio in vendita a Quiesa, Massarosa (LU) | Lucca case
N233K - SEI ALLA RICERCA DEL TUO UFFICIO O VUOI FARE UN INVESTIMENTO ?
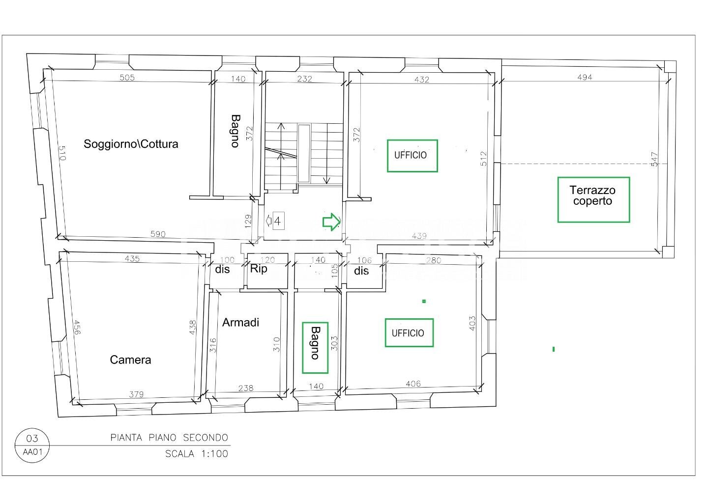
COMUNE DI MASSAROSA ( Lucca) nel cuore della frazione di Quiesa, dove a due passi hai mezzi e negozi di prima necessità Ti propongo al piano secondo ed ultimo di palazzina anni 30 interamente ed esternamente ristrutturata e di pochissime unità immobiliari un ufficio di mq commerciale 56 corredato da bellissima ed esclusiva terrazza coperta di mq .30.
Si accede allo stesso dalla doppia loggia condominiale, curatissima, è composto da due vani, e servizio igienico con doccia finestrato.
Gli ambienti, dalla tripla esposizione (nord/sud/est) sono luminosi –
Possibilità di posto auto esclusivo (il cui prezzo è di Euro 8.000) collocato sul lato sud nel fabbricato al quale si acese tramite sbarra elettrica –
L’ufficio è dotato di split caldo/freddo in entrambi gli ambienti –
FINITURE: Portoncino d’ingresso blindato, infissi con doppi vetri – pavimento in gres effetto legno, persiane in alluminio.
Edificio in classe energetica A/1 – KhW/mq annuo 20, 25.
La disponibilità è immediata –
Si precisa che il prezzo indicato NON comprende il posto auto ( da considerarsi a parte)
COMUNE DI MASSAROSA ( Lucca) nel cuore della frazione di Quiesa, dove a due passi hai mezzi e negozi di prima necessità Ti propongo al piano secondo ed ultimo di palazzina anni 30 interamente ed esternamente ristrutturata e di pochissime unità immobiliari un ufficio di mq commerciale 56 corredato da bellissima ed esclusiva terrazza coperta di mq .30.
Si accede allo stesso dalla doppia loggia condominiale, curatissima, è composto da due vani, e servizio igienico con doccia finestrato.
Gli ambienti, dalla tripla esposizione (nord/sud/est) sono luminosi –
Possibilità di posto auto esclusivo (il cui prezzo è di Euro 8.000) collocato sul lato sud nel fabbricato al quale si acese tramite sbarra elettrica –
L’ufficio è dotato di split caldo/freddo in entrambi gli ambienti –
FINITURE: Portoncino d’ingresso blindato, infissi con doppi vetri – pavimento in gres effetto legno, persiane in alluminio.
Edificio in classe energetica A/1 – KhW/mq annuo 20, 25.
La disponibilità è immediata –
Si precisa che il prezzo indicato NON comprende il posto auto ( da considerarsi a parte)
Dati principali
| Riferimento | N233K |
| Data annuncio | 09/12/2025 |
| Contratto | Vendita |
| Tipologia | Ufficio |
| Superficie | 86 m2 |
Costi
| Prezzo | 115.000 € |
| Prezzo al m2 | 1.337 €/m2 |
Efficienza energetica
| Classe energetica | A1 |
| Indice di prestazione energetica (EP GL, NREN) | 34 kWh/m3 anno |
Indirizzo e mappa
Massarosa
Calcolo mutuo
Prezzo di vendita:
Anticipo
20,00
Mutuo
80,00
Tasso: -+
Rata: 329 al mese
I risultati sono una stima indicativa basata sui dati inseriti e non costituiscono un’offerta finanziaria.
Inserzionista

LuccaCase
VIALE EUROPA 474, Lucca
Mostra Cellulare
Chiama
CONTATTA