Appartamento Kennedy 63, Diano Marina
€ 345.000
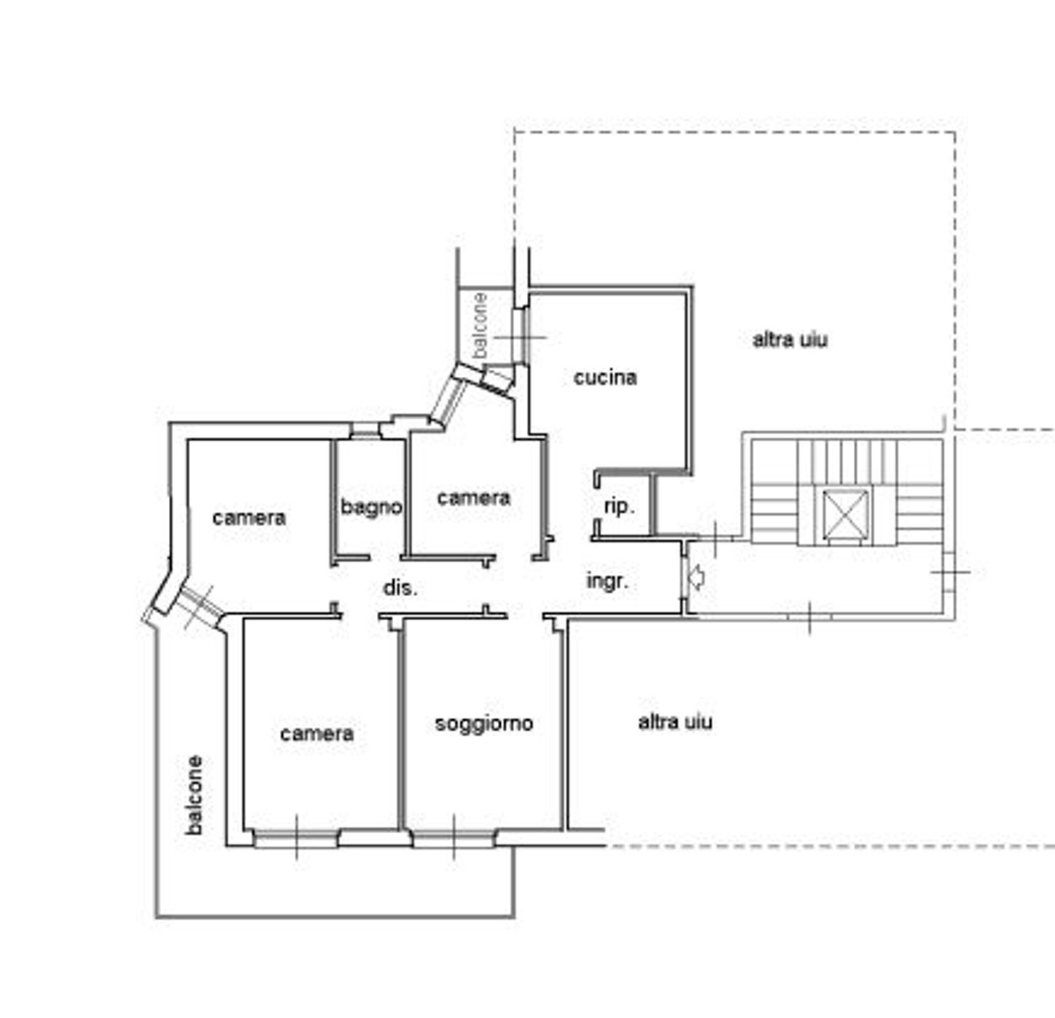
**Appartamento in Vendita a Diano Marina - Viale Kennedy** Scopri questo splendido appartamento situato nel cuore di Diano Marina, a soli 200 metri dal mare. Questo immobile, posizionato al terzo ed ultimo piano con ascensore, offre una vista libera su tre lati, garantendo luminosità e ventilazione in ogni ambiente. La composizione include un ingresso accogliente, una cucina con balcone, tre camere da letto spaziose e un ampio soggiorno che si affaccia su un grande terrazzo attrezzato con tende frangisole, perfetto per godere di momenti di relax all'aperto. Le condizioni dell'appartamento sono molto buone e viene venduto arredato, pronto per essere abitato. Il riscaldamento autonomo a metano e l'impianto di raffrescamento nelle due stanze esposte a sud assicurano comfort in ogni stagione. Situato in una zona tranquilla del centro paese, è facilmente raggiungibile a piedi da tutti i servizi e dalle spiagge grazie anche alla futura pista ciclabile che sorgerà a pochi passi dall'immobile, rendendolo ideale sia per vacanze che per una residenza stabile. Inoltre, le spese di acquisto sono relativamente contenute, poiché si tratta di un acquisto da privati. Non perdere l'opportunità di vivere in uno dei luoghi più belli della Riviera dei Fiori! È disponibile anche la possibilità di acquistare un garage nelle immediate vicinanze. Contattaci per maggiori informazioni e per organizzare una visita!
Dati principali
| Riferimento | Quadrilocale viale Kennedy |
| Data annuncio | 08/12/2025 |
| Contratto | Vendita |
| Tipologia | Appartamento |
| Superficie | 101 m2 |
| Locali | 5 (3 camere da letto, 2 altro), 1 bagno, cucina abitabile |
| Piano | 3 |
| Box auto | Assente |
Caratteristiche
Costi
| Prezzo | 345.000 € |
| Prezzo al m2 | 3.416 €/m2 |
Efficienza energetica
| Stato | Buono |
| Riscaldamento | Autonomo |
| Classe energetica | G |
| Indice di prestazione energetica (IPE) | - |
Planimetrie
Indirizzo e mappa
Kennedy
63, Diano Marina
Annuncio senza mappa,
prova a chiedere la posizione all'inserzionista
prova a chiedere la posizione all'inserzionista
Calcolo mutuo
Prezzo di vendita:
Anticipo
20,00
Mutuo
80,00
Tasso: -+
Rata: 987 al mese
I risultati sono una stima indicativa basata sui dati inseriti e non costituiscono un’offerta finanziaria.
Inserzionista
Chiama
CONTATTA

