Villa Bifamiliare Via NIno Bixio 62, Pozzallo
€ 209.000
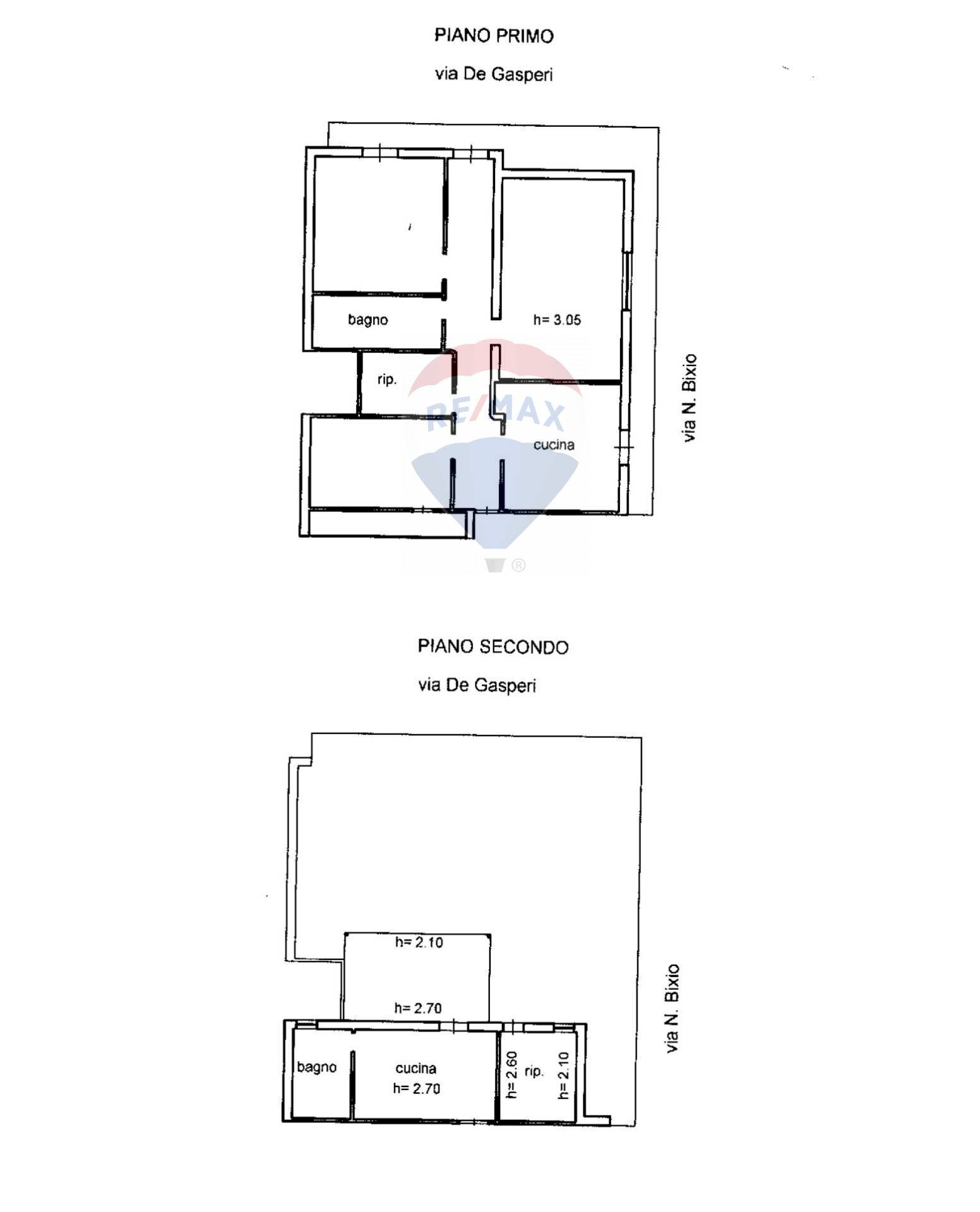
Lagenzia Immobiliare Internazionale RE/MAX presenta in vendita esclusiva un ampio appartamento duplex in Via Nino Bixio 62 a Pozzallo. Limmobile si sviluppa per un totale di 183 mq su due livelli (Primo e Secondo) di un piccolo stabile senza ascensore. É composto da ingresso su corridoio, cucina abitabile, soggiorno, due ampie camere da letto, bagno e cameretta; poi al piano superiore troviamo una comoda dependance con cucina, bagno, ripostiglio ed un terrazzo di grandi dimensioni. Impianto di riscaldamento e raffrescamento con climatizzatori. La zona è molto servita ed a pochi passi dal centro di Pozzallo, dista solamente 500 mt dal mare. Soluzione interessante per essere utilizzata come due unità di cui una in affitto o come dependance autonoma. Non lasciatevi sfuggire questa occasione! Contattateci per maggiori informazioni o per prenotare una visita.
Dati principali
| Riferimento | 40001095-235 |
| Data annuncio | 06/12/2025 |
| Contratto | Vendita |
| Tipologia | Villa Bifamiliare |
| Superficie | 183 m2 |
| Locali | più di 5 (3 camere da letto, 3 altro), 2 bagni, cucina abitabile |
| Piano | Su più livelli, 3 totali |
| Tipo di costruzione | Signorile |
| Occupato | Libero |
| Box auto | Assente |
Costi
| Prezzo | 209.000 € |
| Prezzo al m2 | 1.142 €/m2 |
Efficienza energetica
| Stato | Ottimo |
| Riscaldamento | Autonomo |
| Tipo Impianto Di Riscaldamento | ad aria |
| Tipo Alimentazione Riscaldamento | Elettrico |
| Classe energetica | G |
| Indice di prestazione energetica (IPE) | 100 kWh/m2 anno |
Planimetrie
Indirizzo e mappa
Via NIno Bixio
62, Pozzallo
Annuncio senza mappa,
prova a chiedere la posizione all'inserzionista
prova a chiedere la posizione all'inserzionista
Calcolo mutuo
Prezzo di vendita:
Anticipo
20,00
Mutuo
80,00
Tasso: -+
Rata: 598 al mese
I risultati sono una stima indicativa basata sui dati inseriti e non costituiscono un’offerta finanziaria.
Inserzionista

RE/MAX Platinum 6
Via U. La Malfa, 47/49, Ragusa
Mostra Telefono
Mostra Cellulare
Lacriola Giovanni
Mostra Telefono
Chiama
CONTATTA

