Appartamento via Sacconi 47, Porto San Giorgio
€ 546.000
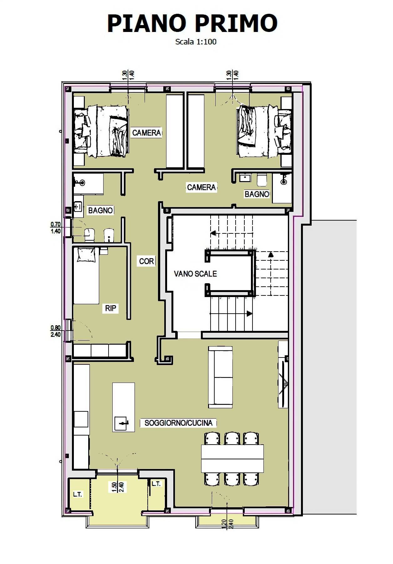
L'Immobiliare Unika propone in vendita a Porto San Giorgio (FM), appartamento di nuova realizzazione di circa 102,44 mq con balconi, posto al piano primo servito da ascensore di edificio trifamiliare. Trattasi di una soluzione abitativa in fase di realizzazione, libera su tre lati, che sviluppa una superficie commerciale di 109,23 mq, che si compone di ingresso sulla ampia zona living open space con cucina a vista e doppio affaccio diretto ai balconi, disimpegno notte che comprende una camera padronale completa di bagno interno privato con cabina doccia, seconda camera, terza stanza pluriuso e bagno principale finestrato con cabina doccia. La proprietà si completa di una cantina di circa 6,00 mq posta al piano terra. Trattasi di soluzione abitativa realizzata secondo le ultime tecnologie costruttive, con lo scopo di ottenere un'elevata qualità tecnologica e un alto livello di confort, con particolare attenzione alle materie prime selezionate e alle finiture. Possibilità di personalizzazione degli ambienti interni secondo le esigenze del cliente, tramite la consulenza diretta di professionisti qualificati in sede. Immobile ideale per chi è in cerca di un prodotto esclusivo ed innovativo, volto ad ottenere un forte risparmio energetico ed inserito in un contesto altamente elegante e riservato. Il nostro studio è a vostra disposizione per fornirvi ulteriori informazioni e dettagli. Posizione eccellente, in pieno centro città, a due passi da tutti i servizi e dal mare. Ulteriori informazioni e dettagli presso il nostro studio. Trattativa riservata. Classe energetica "A4". RIF.VV432. Immobiliare Unika 0734 300555 - 3271687900.
Dati principali
| Riferimento | VV432 |
| Data annuncio | 06/12/2025 |
| Contratto | Vendita |
| Tipologia | Appartamento |
| Superficie | 102 m2 |
| Locali | 5 (3 camere da letto, 2 altro), 2 bagni, cucina a vista |
| Piano | 1 di 3 totali |
| Tipo di costruzione | Signorile |
| Box auto | Assente |
Caratteristiche
Costi
| Prezzo | 546.000 € |
| Prezzo al m2 | 5.353 €/m2 |
Efficienza energetica
| Stato | Ottimo |
| Riscaldamento | Autonomo |
| Tipo Impianto Di Riscaldamento | a pavimento |
| Tipo Alimentazione Riscaldamento | Elettrico |
| Classe energetica | A4 |
Indirizzo e mappa
via Sacconi
47, Porto San Giorgio
Annuncio senza mappa,
prova a chiedere la posizione all'inserzionista
prova a chiedere la posizione all'inserzionista
Calcolo mutuo
Prezzo di vendita:
Anticipo
20,00
Mutuo
80,00
Tasso: -+
Rata: 1.562 al mese
I risultati sono una stima indicativa basata sui dati inseriti e non costituiscono un’offerta finanziaria.
Inserzionista

Unika Immobiliare
Via Sacconi, 47, Porto San Giorgio
Mostra Telefono
Mostra Cellulare
Chiama
CONTATTA

