Capannone Prato (zona Paperino)
Trattativa riservataCAPANNONI DI NUOVA COSTRUZIONE VARIE METRATURE - PRATO
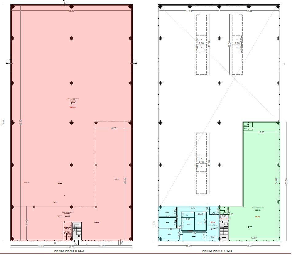
Nelle immediate vicinanze del casello autostradale, fronte strada in posizione strategica nel suo genere, disponiamo in vendita di capannoni industriali/artigianali di nuova costruzione in corso di realizzazione di varie metrature (a partire da 575 mq oltre accessori) con consegna prevista per Dicembre 2026. La realizzazione del complesso immobiliare offre più soluzioni con le seguenti caratteristiche e metrature: - soluzione n 1: unico capannone mq 2.520 piano terra + mq 680 al primo piano uffici / showroom / servizi / alloggio del custode e piazzale privato di mq 2.450. - soluzione n 2: mq 1260 piano terra + mq 340 al piano primo uffici / showroom / servizi / alloggio del custode tutti con doppi portoni carrabili e pedonali. - soluzione n 3: mq 970 piano terra + mq 210 al piano primo uffici / showroom tutti con doppi portoni carrabili e pedonali. - soluzione n 4: mq 683 piano terra + mq 210 al piano primo uffici / showroom tutti con doppi portoni carrabili e pedonali. - soluzione n 5: mq 575 piano terra + (mq 225 o mq 210 o mq 185 o mq 90) al piano primo uffici / showroom tutti con doppi portoni carrabili e pedonali. Piazzale totale mq 2.450. Altezza interna fino a 12 metri. Ottima accessibilità e possibilità di personalizzazione in base alle proprie esigenze di lavoro. Il prezzo richiesto è € 1.650 / mq. CONTATTI AGENZIA IMMOBILIARE CECCHI & SPAGNESI 055-8792369 //// 338-2060764 //// 334-3681221 Per garantire la privacy dei proprietari, l'indirizzo può non rispecchiare esattamente l'ubicazione dell'immobile ed è utile al solo fine di fornire un riferimento generico per la sua localizzazione ed un ausilio alla consultazione. Si consiglia di visionare il nostro sito internet www.spagnesiimmobili.it – www.immobiliarececchi.it per questa ed altre soluzioni immobiliari e di cliccare sulla voce presente sopra a questa descrizione “TOUR 360°” per visualizzare a “360” gradi gli spazi interni dell’immobile in oggetto. Nonostante il nostro impegno per garantire l'accuratezza delle informazioni sulle nostre soluzioni immobiliari, potrebbero essere presenti alcune imprecisioni. È importante verificare qualunque elemento che potrebbe influenzare la vostra decisione di acquisto. Le planimetrie presenti sono puramente indicative, non sono in scala e non rappresentano le effettive caratteristiche e misure dello stato reale dei luoghi. Eventuali incongruenze tra le caratteristiche presentate nella scheda descrittiva (e comunque qualunque informazione presente in pubblicità) e le effettive caratteristiche dell’immobile non sono imputabili alla volontà dell’Agenzia Immobiliare Cecchi & Spagnesi e non costituiscono in alcun modo un vincolo contrattuale per il venditore e per l’acquirente. L’Agenzia Immobiliare Cecchi & Spagnesi declina ogni responsabilità per eventuali involontarie incongruenze tra le caratteristiche effettive dell’immobile proposto e la descrizione presente nell’annuncio. In questa inserzione sono presenti foto rendering realizzate al solo scopo illustrativo e potrebbero non rispecchiare lo stato reale dell’immobile, tali foto non corrispondono necessariamente allo stato di fatto dell’immobile e descrizioni, finiture e proporzioni sono indicative e non vincolanti.
Dati principali
| Riferimento | 721A |
| Data annuncio | 03/12/2025 |
| Contratto | Vendita |
| Tipologia | Capannone |
| Superficie | 665 m2 |
| Piano | 2 totali |
| Uso immobile | Commerciale ed Industriale |
Caratteristiche
Costi
| Prezzo | Trattativa riservata |
Efficienza energetica
| Classe energetica | Immobile esente da certificazione energetica |
Planimetrie
Indirizzo e mappa
Prato - quartiere Paperino
Annuncio senza mappa,
prova a chiedere la posizione all'inserzionista
prova a chiedere la posizione all'inserzionista
Inserzionista

Immobiliare Cecchi & Spagnesi
VIA P. GOBETTI 2/B, Signa
Mostra Telefono
Chiama
CONTATTA

