Villa a Schiera Via Dogana 30, Luni
€ 300.000Semindipendente - Villa a schiera a Luni
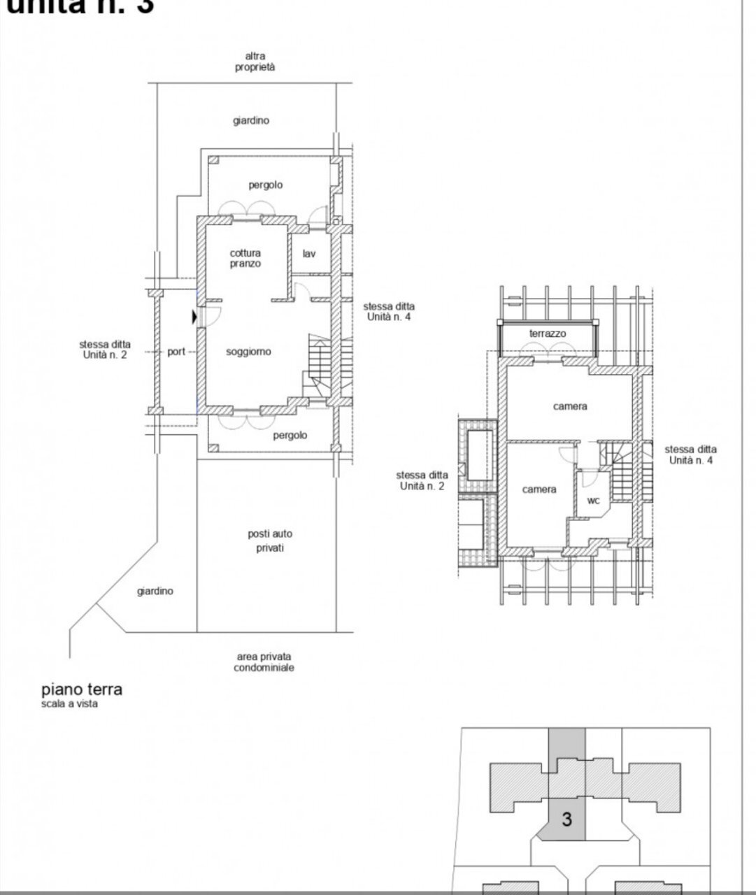
Luni – In zona tranquilla ma comoda a tutti i servizi, proponiamo in vendita una moderna soluzione semindipendente di nuova realizzazione: una casa Green in classe energetica A4, completamente priva di gas e dotata di impianto fotovoltaico da 6 kW, pensata per garantire il massimo del comfort e del risparmio energetico. L’ingresso è indipendente e servito da cancello carrabile, con la possibilità di parcheggiare fino a due auto. Al piano terra si sviluppa la luminosa zona giorno con angolo cottura, con accesso diretto al giardino sul retro, impreziosito da un elegante pergolato, perfetto per momenti di relax all’aperto. A completare il livello, un comodo bagno di servizio con colonna lavanderia. Salendo al primo piano troviamo la zona notte, composta da una camera da letto padronale con cabina armadi, una camera da letto singola di circa 10 mq e un secondo servizio con doccia. L’immobile è ultimato ma offre ancora la possibilità di personalizzare le finiture interne secondo il proprio gusto, sono presenti delle foto reali di come è stata ultimata la soluzione gemella e un render per dare una visione della casa conclusa e arredata. È inoltre presente un eco-bonus detraibile in 10 anni, un valore aggiunto per chi cerca un’abitazione moderna, efficiente e attenta all’ambiente. Una soluzione ideale per chi desidera vivere in un contesto silenzioso, sostenibile e vicino ai principali servizi. Indirizzo puramente indicativo della zona, nel rispetto e tutela della privacy.
Dati principali
| Riferimento | MC01 |
| Data annuncio | 03/11/2025 |
| Contratto | Vendita |
| Tipologia | Villa a Schiera |
| Superficie | 95 m2 |
| Locali | 4 (2 camere da letto, 2 altro), 2 bagni |
| Piano | 1 totali |
| Numero di terrazzi | 1 |
| Numero posti auto | 1 |
Costi
| Prezzo | 300.000 € |
| Prezzo al m2 | 3.158 €/m2 |
Efficienza energetica
| Anno costruzione | 2024 |
| Classe energetica | A+ |
| Indice di prestazione energetica (IPE) | - |
Planimetrie
Indirizzo e mappa
Via Dogana 30, Luni
Calcolo mutuo
Prezzo di vendita:
Anticipo
20,00
Mutuo
80,00
Tasso: -+
Rata: 858 al mese
I risultati sono una stima indicativa basata sui dati inseriti e non costituiscono un’offerta finanziaria.
Inserzionista
Interno 33 Immobiliare
Piazza Garibaldi 16, Sarzana
Mostra Telefono
Mostra Cellulare
Chiama
CONTATTA

