Quadrilocale Via Martiri della libertà 9, Ventimiglia
€ 279.000Appartamento - Quadrilocale a Ventimiglia
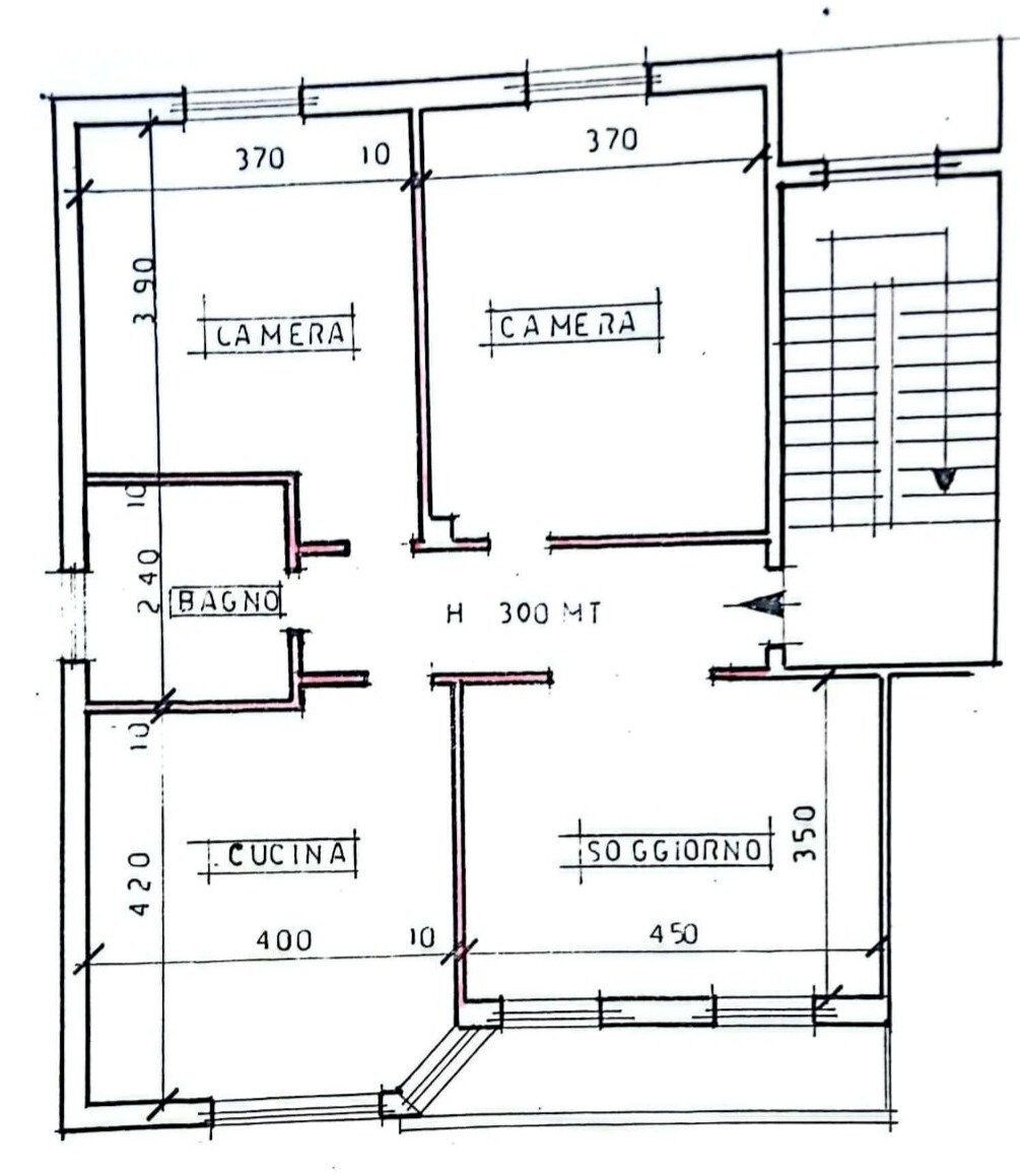
Appartamento nella centralissima Via Martiri della liberà, seppure ubicato in zona silenziosa, comodo a tutti servizi che Ventimiglia può offrire, in primis le splendide spiagge, l'immediata vicinanza al Principato di Monaco e alla Costa Azzurra e al Ponente ligure lo rendono un immobile strategico per molteplici scopi. L'appartamento è stato interamente ristrutturato nel 2004 (impianti, infissi e rivestimenti). Si compone da un ingresso su disimpegno, soggiorno, cucina abitabile, 2 camere, bagno, balcone, l'immobile è disposto su 2 arie esposte ad est-ovest (le due migliori posizioni per un immobile). La casa è dotata di termo autonomo, climatizzatore, porta blindata e impianto d'allarme. La proprietà lascia l'intero arredamento. Il condominio è dotato di ascensore. La proprietà ha in essere 2 box auto in locazione, i cui contratti potrebbero essere ceduti al nuovo acquirente. Libero subito
Dati principali
| Riferimento | 283265 |
| Data annuncio | 03/12/2025 |
| Contratto | Vendita |
| Tipologia | Appartamento |
| Superficie | 95 m2 |
| Locali | 4 (4 altro) |
| Piano | 1 totali |
| Numero di balconi | 1 |
Costi
| Prezzo | 279.000 € |
| Prezzo al m2 | 2.937 €/m2 |
| Spese condominiali | € 60,00/mese |
Efficienza energetica
| Anno costruzione | 1962 |
| Classe energetica | In fase di calcolo |
Planimetrie
Indirizzo e mappa
Via Martiri della libertà 9, Ventimiglia
Calcolo mutuo
Prezzo di vendita:
Anticipo
20,00
Mutuo
80,00
Tasso: -+
Rata: 798 al mese
I risultati sono una stima indicativa basata sui dati inseriti e non costituiscono un’offerta finanziaria.
Inserzionista
Immo Zangara
V. Principe Tommaso 52/A, Ventimiglia
Mostra Cellulare
Chiama
CONTATTA

