Capannone Via Pavia 71, Rivoli
€ 1.170.000
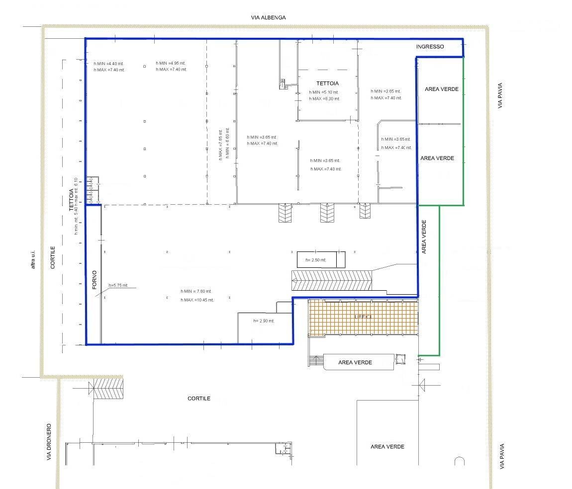
Zona industriale di Rivoli (To) frazione Cascine Vica. Stabilimento industriale a forma rettangolare con area esterna e passi carrai. Immobile composto da due zone unite con differenti metrature - la prima di circa mq. 2.800, (altezza sottotrave mt. 7,80- altezza massima mt. 10,50 circa) con tetto a shed (amianto) - la seconda di circa mq. 4.000 (altezza sottotrave variabile da mt. 3,65 a mt. 4,95- altezza massima mt. 7,40) con tetto a botte . Originariamente era una officina di realizzazione del prodotto al grezzo e ne fanno ampia testimonianza i macchinari, le cisterne, le presse, le linee di produzione, le vasche di raffreddamento presenti ancora oggi e mai smaltite. Costruzione realizzata negli anni 60. LIBERO
Dati principali
| Riferimento | 115830 |
| Data annuncio | 04/12/2025 |
| Contratto | Vendita |
| Tipologia | Capannone |
| Superficie | 6400 m2 |
| Occupato | Libero |
Costi
| Prezzo | 1.170.000 € |
| Prezzo al m2 | 183 €/m2 |
Efficienza energetica
| Stato | Da ristrutturare |
| Tipo Alimentazione Riscaldamento | Altro |
| Classe energetica | Immobile esente da certificazione energetica |
Planimetrie
Indirizzo e mappa
Via Pavia
71, Rivoli
Annuncio senza mappa,
prova a chiedere la posizione all'inserzionista
prova a chiedere la posizione all'inserzionista
Calcolo mutuo
Prezzo di vendita:
Anticipo
20,00
Mutuo
80,00
Tasso: -+
Rata: 3.346 al mese
I risultati sono una stima indicativa basata sui dati inseriti e non costituiscono un’offerta finanziaria.
Inserzionista

HASTON & ASTON S.N.C.
Via Pietro Micca, 21, Torino
Mostra Telefono
Chiama
CONTATTA

