Appartamento Giardini, Venezia
€ 395.000
In vendita a Venezia, in zona Giardini della Biennale a Castello, appartamento 2 camere al secondo piano.
I Giardini della Biennale sono una delle zone fulcro della vita artistica e culturale di Venezia, grazie alla presenza dei principali padiglioni dove prende vita ogni due anni la mostra.
L'appartamento è situato leggermente fuori dalla zona più trafficata in questi periodi, rendendolo una dimora tranquilla e appartata ma comunque vicina alla vivacità di Venezia, essendo a 10 minuti di vaporetto da Piazza San Marco. Risulta quindi perfetto anche come investimento.
Vicinissime Via Garibaldi, dove si può trovare tutto ciò che può servire come supermercati, fruttivendoli, pescherie, macellerie;
e la lussureggiante S. Elena, perfetta per godersi un'oasi di tranquillità e verde a pochi passi da casa.
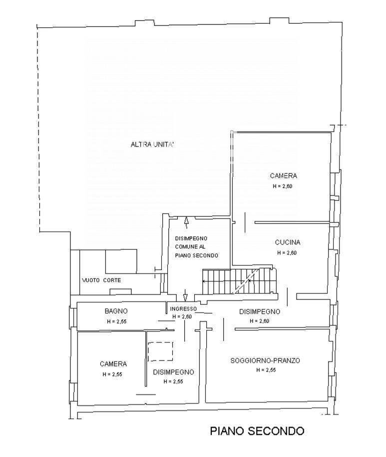
L'appartamento è composto da:
Cucina abitabile
Sala da pranzo, con possibilità di open space sul corridoio
2 camere di cui una matrimoniale e una doppia, ampliabile demolendo la parete dell'adiacente disimpegno
Bagno finestrato
Una scalinata che parte dalla cucina ci porta in un ampio sottotetto privato che copre gran parte dell'appartamento, con altri due bagnetti e un accesso al tetto con piccolo scoperto calpestabile.
È inoltre dotato di:
Riscaldamento autonomo
Esposizione Sud-Ovest, Est
Pavimenti alla veneziana
Magazzino privato al piano terra
Possibilità di frazionamento per ottenere due appartamenti, chiudendo la porta della cucina sul corridoio d'ingresso e sfruttando un accesso presente sul pianerottolo al piano.
VISITE ALL'IMMOBILE
Le visite saranno organizzate successivamente ad un appuntamento informativo in agenzia con l'agente incaricato.
CONSULENZA MUTUO
Presso le nostre filiali offriamo la consulenza gratuita di un mediatore creditizio per avere informazioni su eventuale richiesta mutuo.
Per informazioni e visione di questo appartamento due camere in zona Giardini della Biennale a Castello, chiamare lagenzia impREsa di Venezia, San Marco - 3610/B al numero 041 5463426.
Per questa e altre proposte in vendita visitate il nostro sito www.impresaimmobiliare.com
RIF.: I/FVS082
For more information, please contact impREsa Real Estate Agency, located in Venice, San Marco 3610/B telephone number +39 041 5463426, Rif. I/FVS082.
Please, visit our website: www.impresaimmobiliare.com
I Giardini della Biennale sono una delle zone fulcro della vita artistica e culturale di Venezia, grazie alla presenza dei principali padiglioni dove prende vita ogni due anni la mostra.
L'appartamento è situato leggermente fuori dalla zona più trafficata in questi periodi, rendendolo una dimora tranquilla e appartata ma comunque vicina alla vivacità di Venezia, essendo a 10 minuti di vaporetto da Piazza San Marco. Risulta quindi perfetto anche come investimento.
Vicinissime Via Garibaldi, dove si può trovare tutto ciò che può servire come supermercati, fruttivendoli, pescherie, macellerie;
e la lussureggiante S. Elena, perfetta per godersi un'oasi di tranquillità e verde a pochi passi da casa.
L'appartamento è composto da:
Cucina abitabile
Sala da pranzo, con possibilità di open space sul corridoio
2 camere di cui una matrimoniale e una doppia, ampliabile demolendo la parete dell'adiacente disimpegno
Bagno finestrato
Una scalinata che parte dalla cucina ci porta in un ampio sottotetto privato che copre gran parte dell'appartamento, con altri due bagnetti e un accesso al tetto con piccolo scoperto calpestabile.
È inoltre dotato di:
Riscaldamento autonomo
Esposizione Sud-Ovest, Est
Pavimenti alla veneziana
Magazzino privato al piano terra
Possibilità di frazionamento per ottenere due appartamenti, chiudendo la porta della cucina sul corridoio d'ingresso e sfruttando un accesso presente sul pianerottolo al piano.
VISITE ALL'IMMOBILE
Le visite saranno organizzate successivamente ad un appuntamento informativo in agenzia con l'agente incaricato.
CONSULENZA MUTUO
Presso le nostre filiali offriamo la consulenza gratuita di un mediatore creditizio per avere informazioni su eventuale richiesta mutuo.
Per informazioni e visione di questo appartamento due camere in zona Giardini della Biennale a Castello, chiamare lagenzia impREsa di Venezia, San Marco - 3610/B al numero 041 5463426.
Per questa e altre proposte in vendita visitate il nostro sito www.impresaimmobiliare.com
RIF.: I/FVS082
For more information, please contact impREsa Real Estate Agency, located in Venice, San Marco 3610/B telephone number +39 041 5463426, Rif. I/FVS082.
Please, visit our website: www.impresaimmobiliare.com
Dati principali
| Riferimento | I/FVS082 |
| Data annuncio | 04/12/2025 |
| Contratto | Vendita |
| Tipologia | Appartamento |
| Superficie | 130 m2 |
| Locali | 5 (2 camere da letto, 3 altro), 3 bagni, cucina abitabile |
| Piano | 2 di 2 totali |
| Tipo di costruzione | Media |
| Occupato | Libero |
| Box auto | Assente |
| Arredamento | Completo |
Caratteristiche
Costi
| Prezzo | 395.000 € |
| Prezzo al m2 | 3.038 €/m2 |
Efficienza energetica
| Stato | Buono |
| Riscaldamento | Autonomo |
| Tipo Alimentazione Riscaldamento | Altro |
| Classe energetica | G |
| Indice di prestazione energetica (IPE) | 306 kWh/m2 anno |
Planimetrie
Indirizzo e mappa
Giardini, Venezia
Annuncio senza mappa,
prova a chiedere la posizione all'inserzionista
prova a chiedere la posizione all'inserzionista
Calcolo mutuo
Prezzo di vendita:
Anticipo
20,00
Mutuo
80,00
Tasso: -+
Rata: 1.130 al mese
I risultati sono una stima indicativa basata sui dati inseriti e non costituiscono un’offerta finanziaria.
Inserzionista

impREsa Venezia
Calle della Madonna, 3610/B, Venezia
Mostra Telefono
Sereniski Michelle
Mostra Telefono
Chiama
CONTATTA

