Quadrilocale VIA CESARE BATTISTI 40, Istrana
€ 300.000
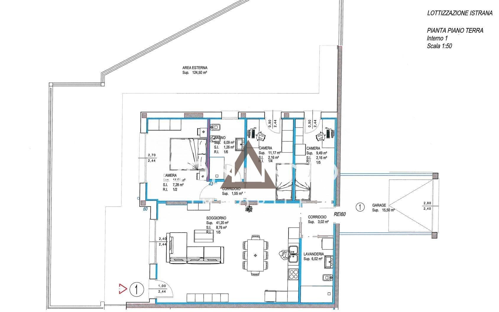
Bonanno Immobili propone in vendita ad Istrana appartamento di nuova costruzione che si trova al piano terra di una palazzina di 8 unità. (U1) L'appartamento è composto da soggiorno/cucina, tre camere (una matrimoniale e due singole), un bagno e una lavanderia. Inoltre è presente un'area esterna di 125 mq. Completa l'immobile un garage di 15 mq. L'immobile è dotato di riscaldamento a pavimento, climatizzatori già installati, VMC, pannelli fotovoltaici, serramenti in PVC triplo vetro. Nella zona notte pavimenti in legno. Consegna prevista per aprile 2026. Per maggiori info chiamare in agenzia 0423 1856238 Rif: BL024
Dati principali
| Riferimento | BL024 |
| Data annuncio | 04/12/2025 |
| Contratto | Vendita |
| Tipologia | Appartamento |
| Superficie | 110 m2 |
| Locali | 4 (3 camere da letto, 1 altro), 2 bagni |
| Piano | Terra |
| Occupato | Libero |
Caratteristiche
Costi
| Prezzo | 300.000 € |
| Prezzo al m2 | 2.727 €/m2 |
Efficienza energetica
| Riscaldamento | Autonomo |
| Tipo Impianto Di Riscaldamento | a pavimento |
| Tipo Alimentazione Riscaldamento | Fotovoltaico |
| Classe energetica | A4 |
Planimetrie
Indirizzo e mappa
VIA CESARE BATTISTI
40, Istrana
Annuncio senza mappa,
prova a chiedere la posizione all'inserzionista
prova a chiedere la posizione all'inserzionista
Calcolo mutuo
Prezzo di vendita:
Anticipo
20,00
Mutuo
80,00
Tasso: -+
Rata: 858 al mese
I risultati sono una stima indicativa basata sui dati inseriti e non costituiscono un’offerta finanziaria.
Inserzionista
Chiama
CONTATTA


