Ufficio Montebelluna
€ 105.000
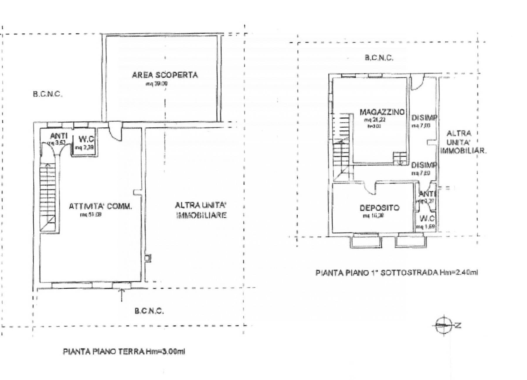
A Montebelluna in vendita ufficio di rappresentanza, completamente arredato con controsoffitti eleganti, possibilità di personalizzazione su una superficie calpestabile di mq.160, disposti su due piani, suddivisi in 3 locali con ingresso al piano terra, due locali e un bagno al piano meno uno, più un grande magazzino per lo stoccaggio di materiale e merci con ingresso indipendente. ideale per ospitare un'ampia attività professionale. La struttura si presenta in buono stato di conservazione, con finiture di qualità e un'ottima illuminazione naturale, è dotato di impianto di raffrescamento e riscaldamento a soffitto. Attualmente, è libero al rogito e pronto per essere occupato. .Grazie alla sua posizione e alle sue caratteristiche, questo ufficio è perfetto per chi desidera avviare o ampliare la propria attività professionale in una zona tranquilla fuori dal traffico del centro con ampia possibilità di parcheggi gratuiti. La richiesta è di 105.000 euro, acquisto con IVA. Per informazioni e visite, contattare lagenzia ImpREsa Filiale di Silea, al numero 0422 460300 citando il Rif. I/GA156, oppure visitate il nostro sito www.impresaimmobiliare.com
Dati principali
| Riferimento | I/GA156 |
| Data annuncio | 02/12/2025 |
| Contratto | Vendita |
| Tipologia | Ufficio |
| Superficie | 190 m2 |
| Locali | 4 (4 altro), 2 bagni, cucina non presente |
| Occupato | Libero |
| Box auto | Assente |
| Arredamento | Assente |
Costi
| Prezzo | 105.000 € |
| Prezzo al m2 | 553 €/m2 |
Efficienza energetica
| Stato | Buono |
| Riscaldamento | Assente |
| Classe energetica | D |
| Indice di prestazione energetica (IPE) | 224 kWh/m2 anno |
Indirizzo e mappa
Montebelluna
Annuncio senza mappa,
prova a chiedere la posizione all'inserzionista
prova a chiedere la posizione all'inserzionista
Calcolo mutuo
Prezzo di vendita:
Anticipo
20,00
Mutuo
80,00
Tasso: -+
Rata: 300 al mese
I risultati sono una stima indicativa basata sui dati inseriti e non costituiscono un’offerta finanziaria.
Inserzionista
Chiama
CONTATTA


