Casa semi indipendente Via Airaldi, Castelnuovo Bormida
€ 18.000Casa semindipendente in vendita
Castelnuovo Bormida.
Proponiamo in vendita casa semindipente con giardino privato.
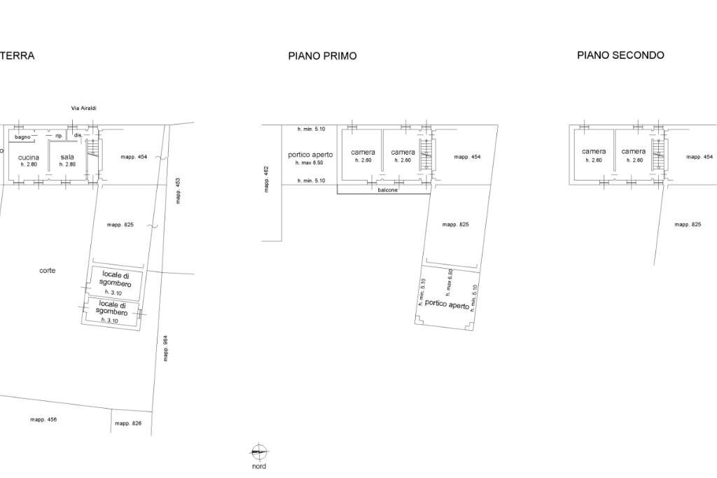
La casa è disposta su tre livelli, al piano terra troviamo cucina, salotto, bagno, ripostiglio; primo piano troviamo due camere da letto con balcone e al terzo piano altre due camere. Completa la proprietà un locale di sgombero su due livelli.
Proponiamo in vendita casa semindipente con giardino privato.
La casa è disposta su tre livelli, al piano terra troviamo cucina, salotto, bagno, ripostiglio; primo piano troviamo due camere da letto con balcone e al terzo piano altre due camere. Completa la proprietà un locale di sgombero su due livelli.
Dati principali
| Riferimento | 61148805 |
| Data annuncio | 02/12/2025 |
| Contratto | Vendita |
| Tipologia | Casa semi indipendente |
| Superficie | 130 m2 |
| Locali | più di 5 (6 altro), 1 bagno |
| Piano | 3 di 3 totali |
| Numero posti auto | 1 |
Costi
| Prezzo | 18.000 € |
| Prezzo al m2 | 138 €/m2 |
Efficienza energetica
| Anno costruzione | 1960 |
| Riscaldamento | Autonomo |
| Tipo Alimentazione Riscaldamento | Metano |
| Classe energetica | F |
| Indice di prestazione energetica (EP GL, NREN) | 375.12 kWh/m3 anno |
Planimetrie
Indirizzo e mappa
Via Airaldi, Castelnuovo Bormida
Calcolo mutuo
Prezzo di vendita:
Anticipo
20,00
Mutuo
80,00
Tasso: -+
Rata: 51 al mese
I risultati sono una stima indicativa basata sui dati inseriti e non costituiscono un’offerta finanziaria.
Inserzionista
Chiama
CONTATTA

