Trilocale Via Canto alle Gracchie, Scandicci
€ 240.000Appartamento - Trilocale a San Michele a Torri, Scandicci
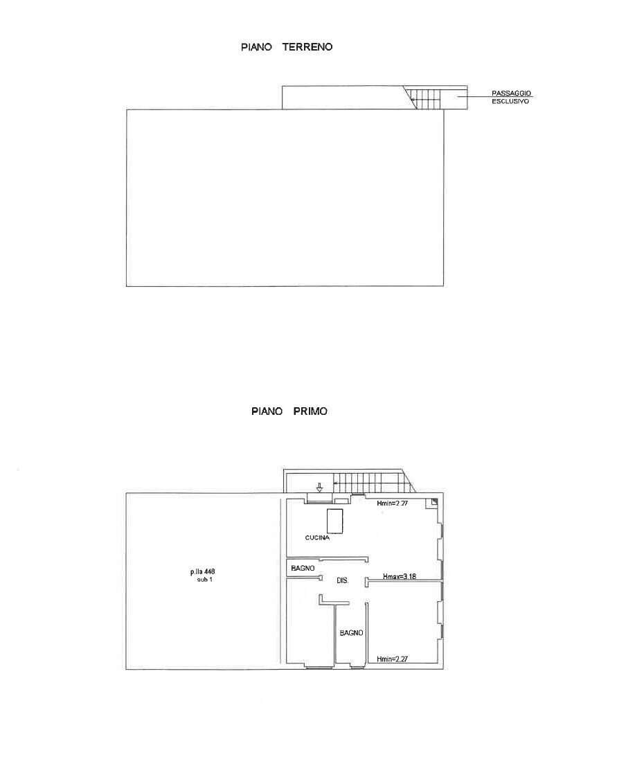
SCANDICCI – San Michele a Torri In zona collinare, immersa nel verde e a breve distanza dai servizi, proponiamo in vendita caratteristico appartamento di circa 65 mq. al primo piano con ingresso indipendente in terratetto costruito nel 2002. Salendo una rampa di scale si accede da un balconcino alla grande zona living con angolo cottura, molto luminosa, un disimpegno porta alla zona notte con due camere da letto, doppi servizi con box doccia, di cui uno finestrato. L’appartamento è in perfette condizioni, impianti a norma, aria condizionata. Costruzione antisismica del 2002. Posto auto di proprietà. Dispone inoltre di canna fumaria per caminetto o stufa a pellet Soluzione ideale per chi cerca indipendenza, comfort e contesto tranquillo e verde a pochi minuti da Scandicci.
Dati principali
| Riferimento | SANMICHELEATORRI1 |
| Data annuncio | 27/11/2025 |
| Contratto | Vendita |
| Tipologia | Appartamento |
| Superficie | 75 m2 |
| Locali | 3 (3 altro) |
| Piano | 1 totali |
Costi
| Prezzo | 240.000 € |
| Prezzo al m2 | 3.200 €/m2 |
Efficienza energetica
| Anno costruzione | 2002 |
| Classe energetica | In fase di calcolo |
Planimetrie
Indirizzo e mappa
Via Canto alle Gracchie, Scandicci
Calcolo mutuo
Prezzo di vendita:
Anticipo
20,00
Mutuo
80,00
Tasso: -+
Rata: 686 al mese
I risultati sono una stima indicativa basata sui dati inseriti e non costituiscono un’offerta finanziaria.
Inserzionista

Immobiliare Franco
Via S.Stefano in Pane, 2r/b, Firenze
Mostra Telefono
Mostra Cellulare
Chiama
CONTATTA

