Villa all'asta Località Valletta, 1a, Zoagli
€ 309.681
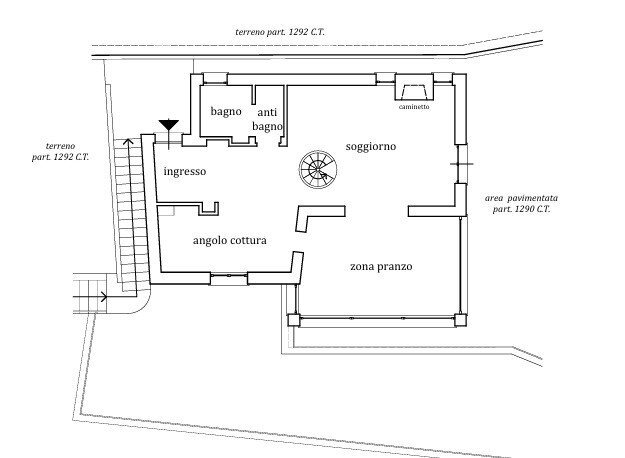
PROPONIAMO CONSULENZA TECNICA E LEGALE PER ACQUISTO IN ASTA GIUDIZIARIA PER INFO 340 8515467 Nella frazione collinare di Sant’Ambrogio, nel verde del versante del Monte Zuccarello, dal quale si gode di un’ampia veduta sul Golfo del Tigullio, a circa 6 chilometri da Zoagli e a circa 5 chilometri dal centro abitato di Rapallo, proponiamo villino facente parte di un piccolo complesso immobiliare privato, con accesso comune tramite un cancello automatizzato, al quale si giunge tramite una strada privata il cui traffico è limitato da una sbarra elettrica. Il villino si sviluppa su 2 livelli composti al piano primo, da ingresso, soggiorno con angolo cottura e zona pranzo, un anti bagno con annesso un locale bagno; tramite una scala a chiocciola si accede al piano terra dove sono ubicate due camere, due bagni, un disimpegno, una cabina armadio e un ripostiglio. Completano il villino un locale di sgombero con annessa lavanderia e il locale caldaia, situati al piano seminterrato, con accessi indipendenti dall’area pertinenziale antistante. Inoltre, vi è un’area sistemata a giardino con zona barbecue e piscina, accessibile dal primo piano del villino L’esposizione dei locali principali è orientata verso sud-est e sud-ovest, con vista sul Golfo di Rapallo e Portofino, nonché sulla vallata. L'immobile viene venduto dal Tribunale tramite asta giudiziaria ed il prezzo indicato si riferisce all’offerta minima. Acquista in asta giudiziaria affidandoti a professionisti del settore: con la massima tranquillità e trasparenza ti offriremo un servizio completo chiavi in mano. MONDO CASA E' LA STRUTTURA CON SEDE IN GENOVA CHE CON ESPERIENZA ULTRADECENNALE SI OCCUPA A 360° DI CONSULENZA TECNICA E LEGALE PER ACQUISTI DI IMMOBILI IN ASTA GIUDIZIARIA.
Dati principali
| Riferimento | Zoagli |
| Data annuncio | 27/11/2025 |
| Contratto | Vendita |
| Tipologia | Villa |
| Superficie | 146 m2 |
| Locali | 4 (2 camere da letto, 2 altro), 3 bagni, cucina abitabile |
| Piano | 2 totali |
| Tipo di costruzione | Media |
| Numero di terrazzi | 1 |
| Numero di balconi | 1 |
| Box auto | Assente |
| Numero posti auto | 4 |
| Arredamento | Assente |
Caratteristiche
Costi
| Offerta minima | € 309.681 |
| Prezzo al m2 | 2.121 €/m2 |
Efficienza energetica
| Anno costruzione | 2000 |
| Stato | Ottimo |
| Riscaldamento | Autonomo |
| Classe energetica | E |
| Indice di prestazione energetica (IPE) | 175 kWh/m2 anno |
Planimetrie
Indirizzo e mappa
Località Valletta, 1a, Zoagli
Calcolo mutuo
Prezzo di vendita:
Anticipo
20,00
Mutuo
80,00
Tasso: -+
Rata: 886 al mese
I risultati sono una stima indicativa basata sui dati inseriti e non costituiscono un’offerta finanziaria.
Inserzionista

Mondo Casa
Via Oreste De Gaspari 1/2, Genova
Mostra Cellulare
Chiama
CONTATTA

