Ufficio via chemnitz 5/3, Prato
€ 199.000
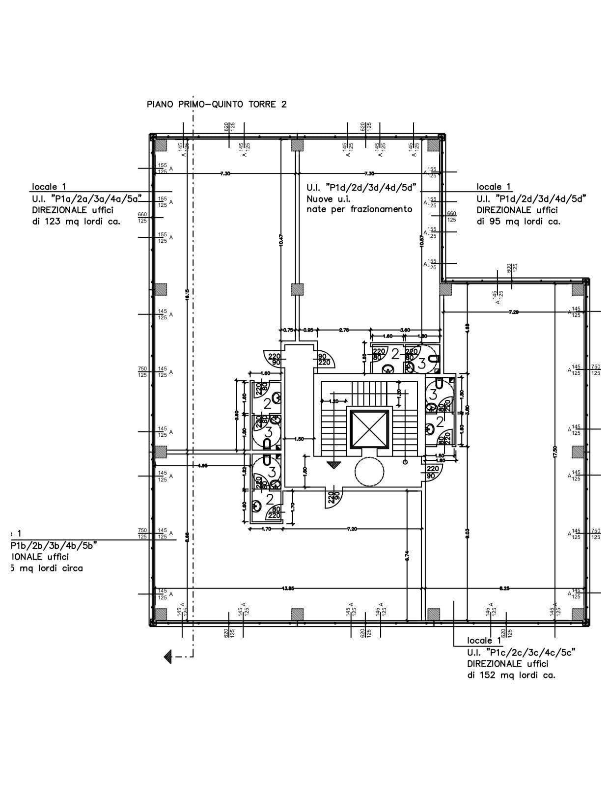
Prato, nella zona del Macrolotto, in una delle due moderne Torri di via Chemnitz, proponiamo in vendita un immobile ad uso ufficio veramente interessante. Siamo al quarto piano della bella torre servita da ascensore e dal pianerottolo condominiale accediamo a questo ufficio ad oggi composto da un'unica grande stanza di quasi 100 metri quadrati, dotato anche di servizio e di antibagno. L'immobile ha una superficie finestrata importante che corre du due lati perpendicolari tra loro, in una unica lunga finestra, apribile in più punti, che permette la visione di un bel panorama che si perde fin sulle montagne. Come detto oggi l'immobile è un grande open space, ma, viste le sue dimensioni e vista la sua ampia superficie finestrata, è facile dividerlo in più ambienti. L'immobile è dotato di climatizzazione e riscaldamento centralizzati ed anche l'utenza idrica è compresa nelle spese condominali. Gli impianti all'avanguardia garantiscono un ottimo efficientamento energetico, tanto che l'immobile è in classe "B"; Immobile pari al nuovo, sia da un punto di vista impiantistico che da un punto di vista di conservazione; dotato di dutto, come ad esempio porta blindata, tende elettriche alle finestre etc, è una soluzione pronta per il tuo business che non richiederà alcuna spesa di ristrutturazione. L'immobile, inoltre, dispone di due interessanti posti auto coperti di proprietà esclusiva in garage seminterrato. I due posti auto vengono ceduti con l'immobile ad uso ufficio e sono compresi nel prezzo. Sono disponibili, sempre sullo stesso piano, altre 3 unità immobiliari ad uso ufficio rispettivamente di 152 mq, 116 mq e 124 mq, con altri 6 posti auto nel garage seminterrato. Possibilità di acquistare l'intero piano o più porzioni dello stesso. NOTA BENE: si acquista da società e la vendita sarà soggetta ad imposizione I.V.A., per cui il prezzo indicato è da considerarsi oltre I.V.A. di legge.
Dati principali
| Riferimento | 37751001-FI91 |
| Data annuncio | 29/11/2025 |
| Contratto | Vendita |
| Tipologia | Ufficio |
| Superficie | 95 m2 |
| Locali | 1 (1 altro), 1 bagno |
| Piano | 4 |
| Occupato | Libero |
| Arredamento | Completo |
Costi
| Prezzo | 199.000 € |
| Prezzo al m2 | 2.095 €/m2 |
Efficienza energetica
| Stato | Ottimo |
| Tipo Alimentazione Riscaldamento | Altro |
| Classe energetica | B |
| Indice di prestazione energetica (IPE) | 46 kWh/m2 anno |
Planimetrie
Indirizzo e mappa
via chemnitz
5/3, Prato
Annuncio senza mappa,
prova a chiedere la posizione all'inserzionista
prova a chiedere la posizione all'inserzionista
Calcolo mutuo
Prezzo di vendita:
Anticipo
20,00
Mutuo
80,00
Tasso: -+
Rata: 569 al mese
I risultati sono una stima indicativa basata sui dati inseriti e non costituiscono un’offerta finanziaria.
Inserzionista

Medicea Immobiliare
Via Santo Spirito, 11/Palazzo dei Marchesi Dè Frescobaldi, Firenze
Mostra Telefono
Mostra Cellulare
Chiama
CONTATTA

