Rustico Via Bagnolo Salara, Ravenna (zona Castiglione di Ravenna)
€ 300.000Rustico in vendita
CASTIGLIONE DI RAVENNA - CASALE:
Nel cuore di Castiglione di Ravenna, proponiamo un affascinante casale d'epoca, che si estende su una superficie di 344 mq.
Questo casale offre ampi spazi che invitano a immaginare una casa per il futuro, con la possibilità di personalizzare ogni ambiente grazie alle sue ampie possibilità in fase di ristrutturazione
L'immobile è circondato da un parco privato che garantisce un'atmosfera intima e riservata, ideale per chi cerca un rifugio tranquillo.
La sua posizione strategica, a breve distanza dal mare, lo rende perfetto per chi desidera coniugare la vita rurale con la vicinanza alle spiagge.
L'eleganza intrinseca di questo rustico rappresenta una tela bianca per chi sogna di creare una dimora unica, mantenendo il fascino del passato e abbracciando le possibilità del domani.
La richiesta è di 300.000€
ALCUNE IMMAGINI SONO RICOSTRUZIONI CREATE MEDIANTE L'UTILIZZO DI AI, al fine di aiutare ad idealizzare l'immobile in condizioni di ristrutturazione futura.
Ogni agenzia ha il proprio titolare ed è autonoma.
Se devi vendere o affittare il tuo immobile, chiamaci o scrivici, oppure ti aspettiamo in agenzia.
Per informazioni oppure organizzare una visita, contattami:
328 221 8151
Dati principali
| Riferimento | 61147386 |
| Data annuncio | 28/11/2025 |
| Contratto | Vendita |
| Tipologia | Rustico |
| Superficie | 344 m2 |
| Locali | più di 5 (7 altro), 1 bagno |
| Piano | 2 totali |
Costi
| Prezzo | 300.000 € |
| Prezzo al m2 | 872 €/m2 |
Efficienza energetica
| Anno costruzione | 1950 |
| Riscaldamento | Assente |
| Classe energetica | Immobile esente da certificazione energetica |
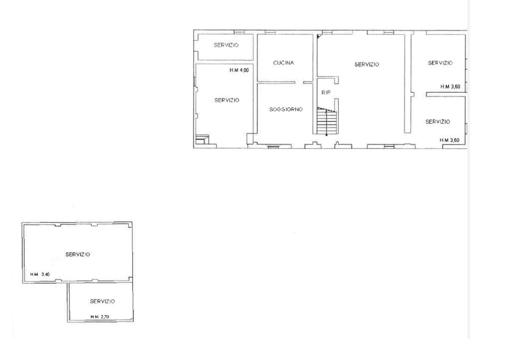
Planimetrie
Indirizzo e mappa
Via Bagnolo Salara, Ravenna - quartiere Castiglione di Ravenna
Calcolo mutuo
Prezzo di vendita:
Anticipo
20,00
Mutuo
80,00
Tasso: -+
Rata: 858 al mese
I risultati sono una stima indicativa basata sui dati inseriti e non costituiscono un’offerta finanziaria.
Inserzionista
Agenzia Tecnorete Studio Liberty Srl
Via Ravenna, 5, Cervia
Mostra Telefono
Chiama
CONTATTA

