Trilocale Via Carle Costanzo, Barge
€ 99.000Trilocale in vendita
BARGE, Via Carle Costanzo, in posizione tranquilla e comoda ai principali servizi, proponiamo in vendita un ampio trilocale situato al primo piano di una palazzina recentemente rinnovata.
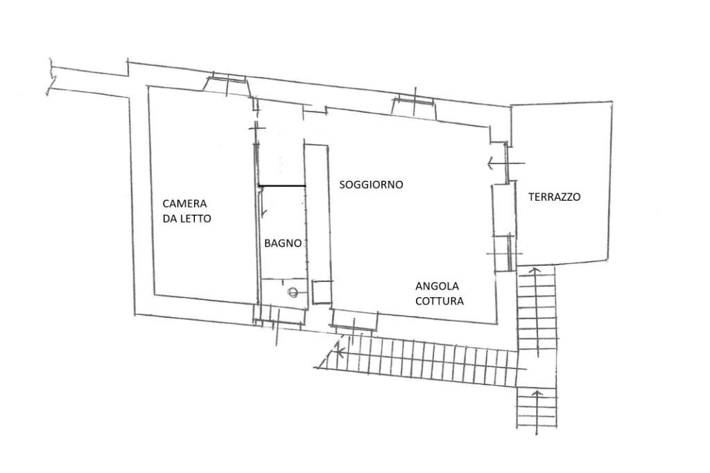
L’ingresso conduce direttamente alla zona giorno, caratterizzato da un soggiorno con cucina. La buona esposizione garantisce luce naturale durante tutto l’arco della giornata.
La zona notte si compone di due camere da letto di comode dimensioni: la matrimoniale, spaziosa e la seconda stanza, ideale come cameretta, studio o locale multifunzione.
Il bagno, curato nei dettagli, presenta finiture moderne e pratiche.
A completare l’appartamento troviamo un terrazzo, perfetto per godersi uno spazio esterno affacciato sul contesto tranquillo della via.
L’ingresso conduce direttamente alla zona giorno, caratterizzato da un soggiorno con cucina. La buona esposizione garantisce luce naturale durante tutto l’arco della giornata.
La zona notte si compone di due camere da letto di comode dimensioni: la matrimoniale, spaziosa e la seconda stanza, ideale come cameretta, studio o locale multifunzione.
Il bagno, curato nei dettagli, presenta finiture moderne e pratiche.
A completare l’appartamento troviamo un terrazzo, perfetto per godersi uno spazio esterno affacciato sul contesto tranquillo della via.
Dati principali
| Riferimento | 61147439 |
| Data annuncio | 28/11/2025 |
| Contratto | Vendita |
| Tipologia | Appartamento |
| Superficie | 60 m2 |
| Locali | 3 (3 altro), 1 bagno |
| Piano | 1 di 2 totali |
Costi
| Prezzo | 99.000 € |
| Prezzo al m2 | 1.650 €/m2 |
Efficienza energetica
| Anno costruzione | 1900 |
| Riscaldamento | Autonomo |
| Tipo Alimentazione Riscaldamento | Metano |
| Classe energetica | D |
| Indice di prestazione energetica (IPE) | - |
Planimetrie
Video
Indirizzo e mappa
Via Carle Costanzo, Barge
Calcolo mutuo
Prezzo di vendita:
Anticipo
20,00
Mutuo
80,00
Tasso: -+
Rata: 283 al mese
I risultati sono una stima indicativa basata sui dati inseriti e non costituiscono un’offerta finanziaria.
Inserzionista
Chiama
CONTATTA

