Villa Via G. Marconi, Cadelbosco di Sopra
€ 450.000Villa singola in vendita
CADELBOSCO SOTTO - proponiamo in vendita una villa singola completamente ristrutturata nel 2016/2017, con un tocco di stile moderno e finiture di alta qualità, perfetta per chi cerca una casa che coniughi comfort e innovazione.
Al piano terra, la villa offre una serie di locali di servizio, tra cui una cantina, un bagno, una lavanderia, un locale stenditoio e una legnaia. Questi spazi possono facilmente essere trasformati in una comoda taverna, ideale per momenti di relax e convivialità.
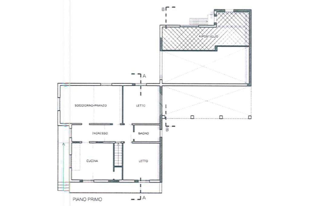
Al primo piano, si apre un ampio soggiorno, perfetto per accogliere ospiti e trascorrere serate in famiglia. La cucina abitabile è spaziosa e funzionale, mentre le due camere da letto matrimoniali offrono un rifugio di tranquillità. Completa il piano un bagno moderno e ben curato.
Il secondo piano dell'abitazione è adibito alla soffitta.
L'immobile vanta una serie di impianti all'avanguardia:
- Impianto fognario rinnovato, completo di fossa settica e degrassatore;
- Adeguamento sismico per una maggiore sicurezza.
- Isolamento termico per un'efficienza energetica ottimale.
- Riscaldamento con sistema ibrido di caldaia e pompa di calore.
- Videosorveglianza con 6 telecamere e DVR.
- Allarme interno ed esterno perimetrale.
- Impianto fotovoltaico da 7 kW per energia sostenibile.
- Condizionamento per il massimo comfort in ogni stagione.
All'esterno, il giardino privato è un'oasi di verde, arricchita da due pozzi e un impianto di irrigazione. I cancelli carrai sono automatizzati, garantendo un accesso comodo e sicuro. L'illuminazione esterna valorizza ogni angolo del giardino, creando un'atmosfera accogliente e raffinata.
La villa è inoltre dotata di due autorimesse, offrendo ampio spazio per il parcheggio e lo stoccaggio.
Questa villa è più di una semplice casa: è un luogo dove vivere esperienze indimenticabili, immersi nel comfort e nella sicurezza. Se siete alla ricerca di una residenza che rappresenti un perfetto equilibrio tra modernità e funzionalità, questa villa a Cadelbosco Sotto è la scelta ideale.
Contattaci per ulteriori informazioni o per fissare un appuntamento al 3357014646 o al 3295414446, oppure mandaci una mail e verrai ricontattato al più presto: rehna@tecnocasa .it
Al piano terra, la villa offre una serie di locali di servizio, tra cui una cantina, un bagno, una lavanderia, un locale stenditoio e una legnaia. Questi spazi possono facilmente essere trasformati in una comoda taverna, ideale per momenti di relax e convivialità.
Al primo piano, si apre un ampio soggiorno, perfetto per accogliere ospiti e trascorrere serate in famiglia. La cucina abitabile è spaziosa e funzionale, mentre le due camere da letto matrimoniali offrono un rifugio di tranquillità. Completa il piano un bagno moderno e ben curato.
Il secondo piano dell'abitazione è adibito alla soffitta.
L'immobile vanta una serie di impianti all'avanguardia:
- Impianto fognario rinnovato, completo di fossa settica e degrassatore;
- Adeguamento sismico per una maggiore sicurezza.
- Isolamento termico per un'efficienza energetica ottimale.
- Riscaldamento con sistema ibrido di caldaia e pompa di calore.
- Videosorveglianza con 6 telecamere e DVR.
- Allarme interno ed esterno perimetrale.
- Impianto fotovoltaico da 7 kW per energia sostenibile.
- Condizionamento per il massimo comfort in ogni stagione.
All'esterno, il giardino privato è un'oasi di verde, arricchita da due pozzi e un impianto di irrigazione. I cancelli carrai sono automatizzati, garantendo un accesso comodo e sicuro. L'illuminazione esterna valorizza ogni angolo del giardino, creando un'atmosfera accogliente e raffinata.
La villa è inoltre dotata di due autorimesse, offrendo ampio spazio per il parcheggio e lo stoccaggio.
Questa villa è più di una semplice casa: è un luogo dove vivere esperienze indimenticabili, immersi nel comfort e nella sicurezza. Se siete alla ricerca di una residenza che rappresenti un perfetto equilibrio tra modernità e funzionalità, questa villa a Cadelbosco Sotto è la scelta ideale.
Contattaci per ulteriori informazioni o per fissare un appuntamento al 3357014646 o al 3295414446, oppure mandaci una mail e verrai ricontattato al più presto: rehna@tecnocasa .it
Dati principali
| Riferimento | 61146957 |
| Data annuncio | 28/11/2025 |
| Contratto | Vendita |
| Tipologia | Villa |
| Superficie | 252 m2 |
| Locali | 5 (5 altro), 2 bagni |
| Piano | 1 di 2 totali |
Costi
| Prezzo | 450.000 € |
| Prezzo al m2 | 1.786 €/m2 |
Efficienza energetica
| Anno costruzione | 1962 |
| Riscaldamento | Autonomo |
| Tipo Alimentazione Riscaldamento | Metano |
| Classe energetica | A2 |
Planimetrie
Video
Indirizzo e mappa
Via G. Marconi, Cadelbosco di Sopra
Calcolo mutuo
Prezzo di vendita:
Anticipo
20,00
Mutuo
80,00
Tasso: -+
Rata: 1.287 al mese
I risultati sono una stima indicativa basata sui dati inseriti e non costituiscono un’offerta finanziaria.
Inserzionista
Chiama
CONTATTA

