Terreno agricolo località Beila, Mondovì
€ 163.000
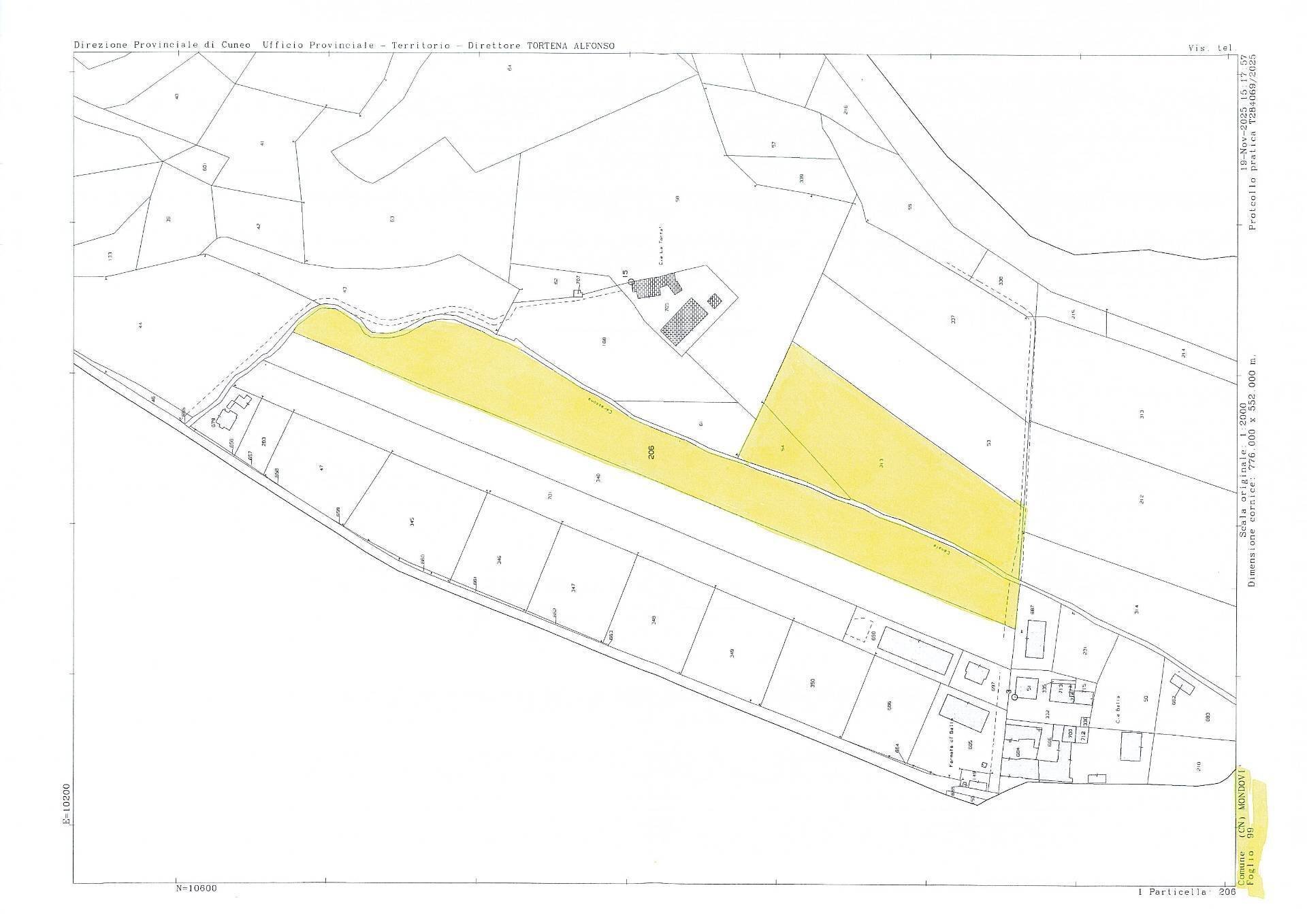
Terreno agricolo pianeggiante in vendita Mondovì, con accesso da via Rosa Bianca Beila - 7,62 giornate piemontesi La caratteristica principale di questo terreno costituito da tre mappali adiacenti formanti un unico corpo attraversati da bialera irrigua del consorzio irriguo carassona è la sua pianeggiatura, che lo rende ideale per la coltivazione di diverse tipologie di colture. La posizione strategica facilmente accessibile garantisce un accesso comodo e facilitato, con qualsiasi mezzo agricolo favorendo il trasporto dei prodotti e la gestione quotidiana delle attività rurali. Con una superficie totale di 29.015 m², completamente sfruttabile, il terreno si distingue per la fertilità del suolo e la presenza di acqua per lirrigazione, elementi che lo rendono particolarmente adatto alla coltivazione di cereali, ortaggi, frutteto e altre colture. Lappezzamento è inoltre dotato di un sistema di drenaggio efficiente, fondamentale per la corretta gestione delle acque piovane e per garantire un'irrigazione omogenea, assicurando così produzioni agricole di qualità. La zona Beila Ferrone, in cui è situato il terreno, è rinomata per il suo contesto naturale suggestivo e per la tranquillità dellambiente. Il clima mite e le caratteristiche del suolo favoriscono unattività agricola redditizia e sostenibile. Questo terreno rappresenta una grande opportunità di investimento per chi desidera ampliare unattività agricola, sfruttando al massimo le potenzialità di una delle aree più apprezzate del territorio monregalese. Non perdere loccasione di diventare proprietario di un terreno fertile e ricco di potenzialità, ora libero da affittavoli e inquilini
Dati principali
| Riferimento | 1087 |
| Data annuncio | 28/11/2025 |
| Contratto | Vendita |
| Tipologia | Terreno agricolo |
| Superficie | 29015 m2 |
| Occupato | Libero |
Costi
| Prezzo | 163.000 € |
| Prezzo al m2 | 6 €/m2 |
Efficienza energetica
| Tipo Alimentazione Riscaldamento | Altro |
| Classe energetica | Immobile esente da certificazione energetica |
Planimetrie
Indirizzo e mappa
località Beila, Mondovì
Annuncio senza mappa,
prova a chiedere la posizione all'inserzionista
prova a chiedere la posizione all'inserzionista
Calcolo mutuo
Prezzo di vendita:
Anticipo
20,00
Mutuo
80,00
Tasso: -+
Rata: 466 al mese
I risultati sono una stima indicativa basata sui dati inseriti e non costituiscono un’offerta finanziaria.
Inserzionista

CAMPERI IMMOBILIARE
Via Alessandria, 9, Mondovì
Mostra Telefono
Mostra Cellulare
Chiama
CONTATTA

