Trilocale via Piero Maroncelli, Moncalieri
€ 78.000TRILOCALE LUMINOSO DI 84 MQ.
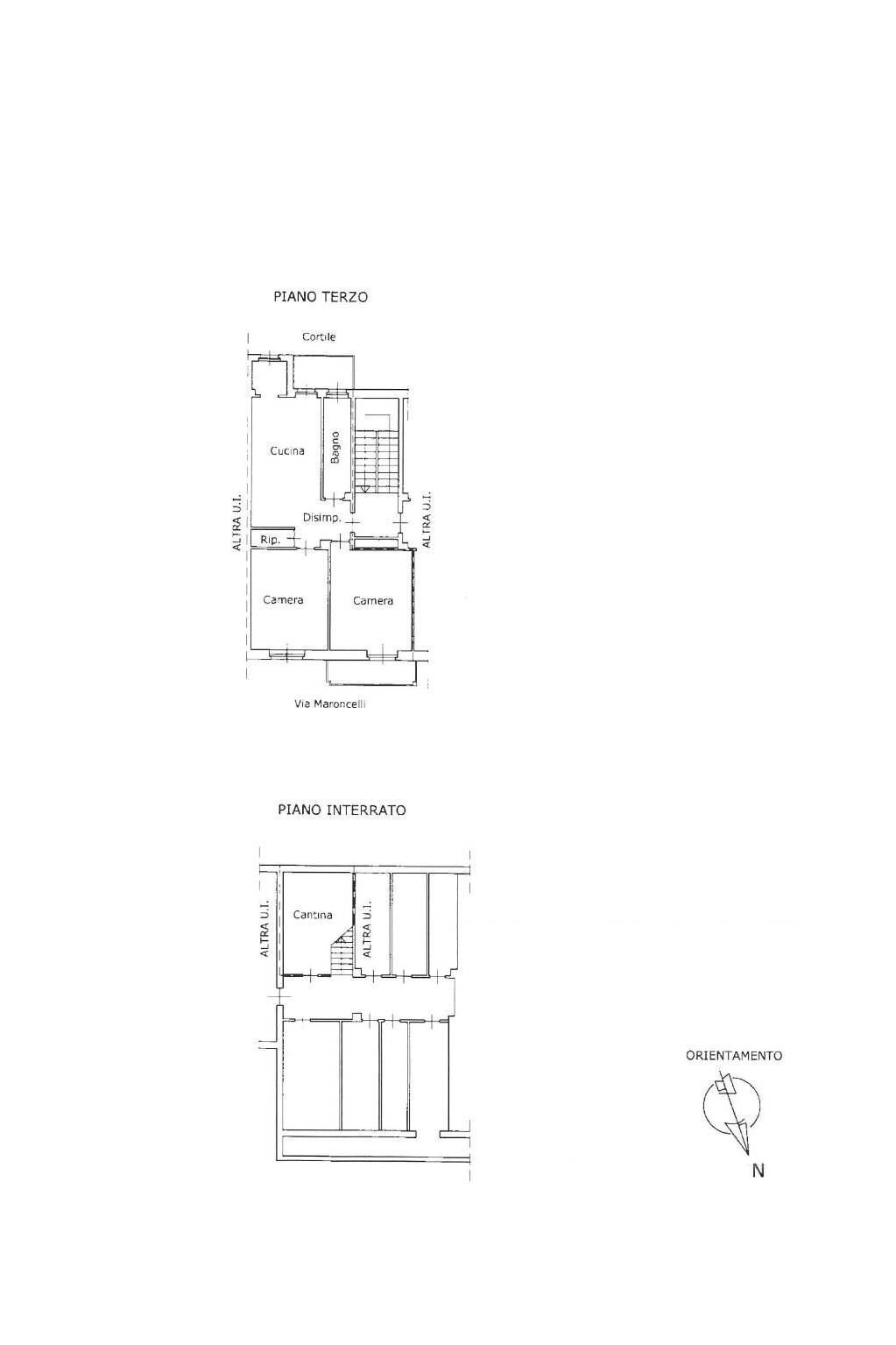
La Gilormo immobiliare propone in vendita un appartamento di 84 mq. situato al terzo piano di una palazzina ordinata senza ascensore. L’immobile si presenta in buono stato interno, ideale per chi cerca una soluzione pronta da abitare o da personalizzare con piccoli interventi. La doppia esposizione garantisce un’ottima luminosità durante tutto il giorno ed una piacevole vista panoramica, che regala respiro e tranquillità pur trovandosi in una zona comoda e ben servita. Caratteristiche principali: Superficie: 84 mq. Piano 3° senza ascensore Buono stato interno Doppia esposizione Vista panoramica aperta Ambienti luminosi e ben distribuiti Zona comoda ai servizi, negozi, scuole e mezzi di trasporto La disposizione razionale degli spazi rende l’appartamento adatto a coppie, giovani famiglie o come investimento. Una soluzione che unisce comodità e luminosità. VALUTAZIONI GRATUITE ACQUISTIAMO IL VOSTRO IMMOBILE • Eseguiamo consulenze, perizie e valutazioni gratuite, senza alcun impegno, presso le vostre abitazioni. • Ristrutturiamo e realizziamo nuove abitazioni sia per la nostra società sia per terzi. • Acquistiamo aree edificabili e stabili da riattare permutando direttamente o per conto di terzi i vostri immobili.
Dati principali
| Riferimento | ID2919848 |
| Data annuncio | 25/11/2025 |
| Contratto | Vendita |
| Tipologia | Appartamento |
| Superficie | 84 m2 |
| Locali | 3 (2 camere da letto, 1 altro), 1 bagno, cucina cucinino |
| Piano | 3 di 3 totali |
| Tipo di costruzione | Media |
| Numero di balconi | 1 |
| Box auto | Assente |
| Arredamento | Assente |
Caratteristiche
Costi
| Prezzo | 78.000 € |
| Prezzo al m2 | 929 €/m2 |
| Spese condominiali | € 133,00/mese |
Efficienza energetica
| Anno costruzione | 1960 |
| Stato | Buono |
| Riscaldamento | Centralizzato |
| Classe energetica | G |
| Indice di prestazione energetica (IPE) | 290.96 kWh/m2 anno |
Planimetrie
Indirizzo e mappa
via Piero Maroncelli, Moncalieri
Calcolo mutuo
Prezzo di vendita:
Anticipo
20,00
Mutuo
80,00
Tasso: -+
Rata: 223 al mese
I risultati sono una stima indicativa basata sui dati inseriti e non costituiscono un’offerta finanziaria.
Inserzionista

Gilormo Immobiliare
Via Tenivelli 29, Moncalieri
Mostra Telefono
Chiama
CONTATTA

