Trilocale Alessandria
€ 69.000
ALESSANDRIA PIAZZA GENOVA: In una delle zone più ricercate di Alessandria, Piazza Genova, a due passi dal centro e dalle principali piazze della città, vi si propone appartamento CON AMPIO TERRAZZO PRIVATO, sito al 6 ed ultimo piano con ascensore di una bellissima palazzina signorile appena riqualificata.
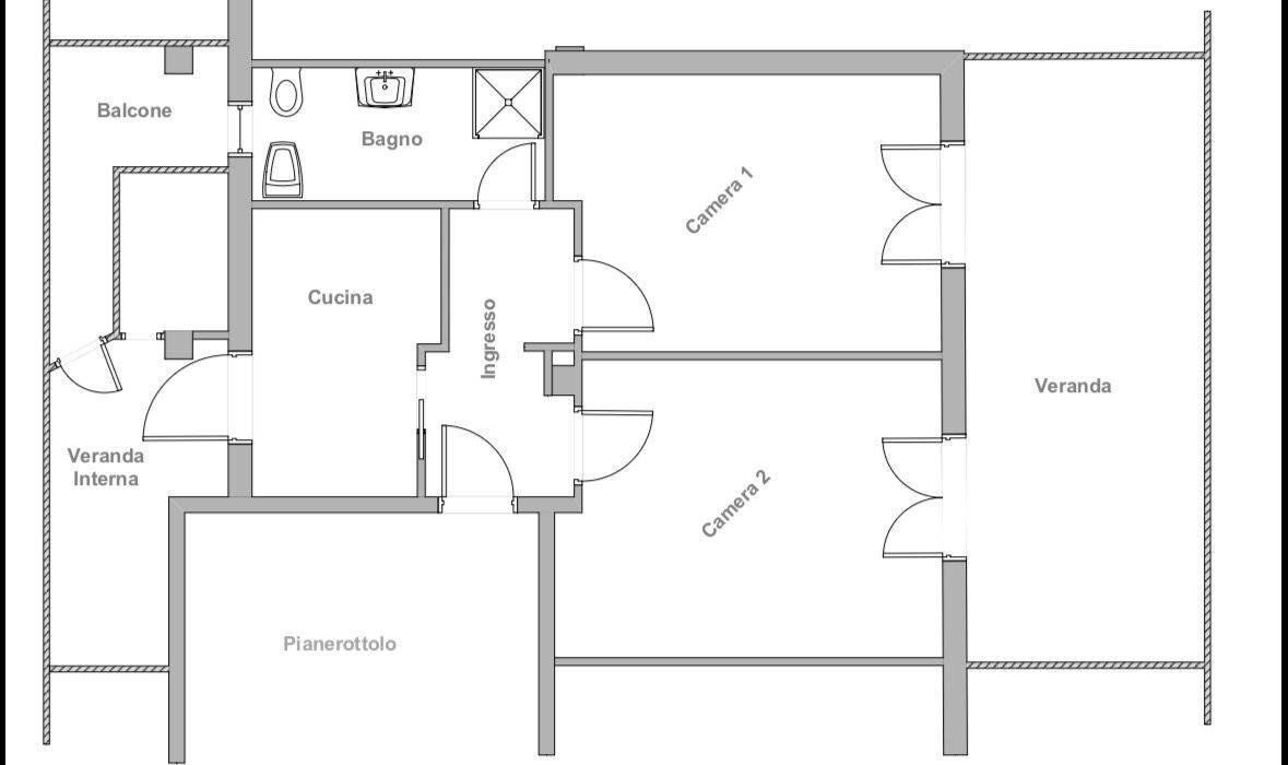
Alloggio composto da: Ingresso su ampio disimpegno, cucina funzionale, salone ampio con uscita diretta su AMPIO TERRAZZO perfetto per pranzi e cene estive, 1 camera da letto matrimoniale anch'essa con uscita diretta sul terrazzo, bagno finestrato con box doccia, Balcone ampio che affaccia su interno cortile, zona lavanderia dedicata.
A completare la proprietà cantina di pertinenza.
Perfetto per chi cerca un ampio spazio esterno, situato in una zona centralissima e super richiesta!
! LE IMMAGINI CON ARREDAMENTO SONO STATE CREATE CON INTELIGENZA ARTIFICIALE ! per immaginare la distribuzione degli spazi interni, qualora si ipotizzasse una zona living con soggiorno e cucina a vista, si ricaverebbe seconda camera da letto o studio.
LIBERO DA SUBITO!
QUOTA FISSA DI RISCALDAMENTO .364 ANNUI - BASSE SPESE DI CONDOMINIO
. 69 mila RIF. C36
CLASSE F 186,43 kWh/m² anno #
PER INFO E VISITE CONTATTARE GIERRE IMMOBILIARE 0131218521
Alloggio composto da: Ingresso su ampio disimpegno, cucina funzionale, salone ampio con uscita diretta su AMPIO TERRAZZO perfetto per pranzi e cene estive, 1 camera da letto matrimoniale anch'essa con uscita diretta sul terrazzo, bagno finestrato con box doccia, Balcone ampio che affaccia su interno cortile, zona lavanderia dedicata.
A completare la proprietà cantina di pertinenza.
Perfetto per chi cerca un ampio spazio esterno, situato in una zona centralissima e super richiesta!
! LE IMMAGINI CON ARREDAMENTO SONO STATE CREATE CON INTELIGENZA ARTIFICIALE ! per immaginare la distribuzione degli spazi interni, qualora si ipotizzasse una zona living con soggiorno e cucina a vista, si ricaverebbe seconda camera da letto o studio.
LIBERO DA SUBITO!
QUOTA FISSA DI RISCALDAMENTO .364 ANNUI - BASSE SPESE DI CONDOMINIO
. 69 mila RIF. C36
CLASSE F 186,43 kWh/m² anno #
PER INFO E VISITE CONTATTARE GIERRE IMMOBILIARE 0131218521
Dati principali
| Riferimento | C36 |
| Data annuncio | 25/11/2025 |
| Contratto | Vendita |
| Tipologia | Appartamento |
| Superficie | 70 m2 |
| Locali | 3 (2 camere da letto, 1 altro), 1 bagno, cucina abitabile |
| Piano | 6 di 6 totali |
| Tipo di costruzione | Media |
| Occupato | Libero |
Caratteristiche
Costi
| Prezzo | 69.000 € |
| Prezzo al m2 | 986 €/m2 |
Efficienza energetica
| Stato | Buono |
| Riscaldamento | Centralizzato |
| Classe energetica | F |
| Indice di prestazione energetica (IPE) | 186 kWh/m2 anno |
Planimetrie
Indirizzo e mappa
Alessandria
Annuncio senza mappa,
prova a chiedere la posizione all'inserzionista
prova a chiedere la posizione all'inserzionista
Calcolo mutuo
Prezzo di vendita:
Anticipo
20,00
Mutuo
80,00
Tasso: -+
Rata: 197 al mese
I risultati sono una stima indicativa basata sui dati inseriti e non costituiscono un’offerta finanziaria.
Inserzionista

Eurocasa Gierre Immobiliare
Corso Acqui 83, Alessandria
Mostra Telefono
Mostra Cellulare
Chiama
CONTATTA

