Quadrilocale Via Roma 663, San Felice Circeo
€ 248.000Appartamento - 2 piano a San Felice Circeo
In posizione tranquilla a mezza costa, comoda sia per raggiungere il centro storico che per il mare, proponiamo appartamento completamente ristrutturato negli impianti, negli infissi e nella pavimentazione. L’abitazione offre un’ottima distribuzione degli spazi: soggiorno ampio e luminoso con camino e accesso diretto al balcone, da cui si godono piacevoli scorci di mare che si abbinano alle rifiniture blu del pavimento, cucina grande e abitabile, anch’essa dotata di camino a legna, perfetta per chi ama gli ambienti conviviali, inoltre due camere da letto, di cui una con bagno privato en suite, e un ulteriore bagno di servizio. Una soluzione ideale per chi cerca un appartamento completo di comfort, in una posizione privilegiata, vicina al mare e al cuore dell'antico borgo ma immersa nella quiete della mezza costa.
Dati principali
| Riferimento | V020 |
| Data annuncio | 22/11/2025 |
| Contratto | Vendita |
| Tipologia | Appartamento |
| Superficie | 90 m2 |
| Locali | 4 (2 camere da letto, 2 altro), 2 bagni |
| Piano | 1 totali |
| Numero di balconi | 1 |
Costi
| Prezzo | 248.000 € |
| Prezzo al m2 | 2.756 €/m2 |
Efficienza energetica
| Anno costruzione | 1964 |
| Classe energetica | G |
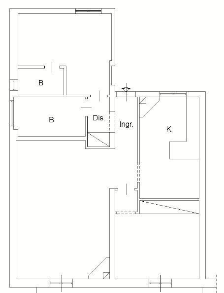
Planimetrie
Indirizzo e mappa
Via Roma 663, San Felice Circeo
Calcolo mutuo
Prezzo di vendita:
Anticipo
20,00
Mutuo
80,00
Tasso: -+
Rata: 709 al mese
I risultati sono una stima indicativa basata sui dati inseriti e non costituiscono un’offerta finanziaria.
Inserzionista
Immobiliare Casamare srl
Viale Tommasso Tittoni 139b, San Felice Circeo
Mostra Telefono
Mostra Cellulare
Chiama
CONTATTA

