Trilocale Strada Torre Mozza 19, Nardò
€ 170.000
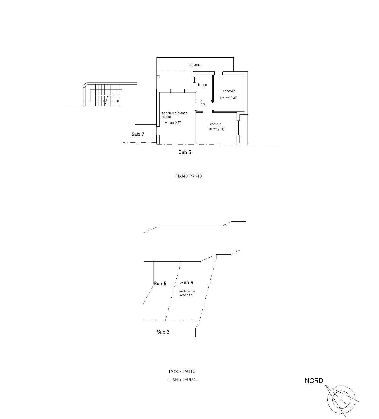
Puglia - Salento - Santa Maria Al Bagno (Nardò) - Strada Torre Mozza ULTIME TRE UNITA' DISPONIBILI Nel cuore del Salento, a Santa Maria al Bagno, proponiamo in vendita un appartamento che coniuga eleganza e sostenibilità. Inserito al primo piano di un residence di recente costruzione, composto da sole sei unità abitative, limmobile si distingue per lalta efficienza energetica certificata in classe A4 NZEB, garanzia di comfort contemporaneo e consumi ridotti. Lingresso si apre su una luminosa zona living con cucina su misura, da cui si accede direttamente alla veranda coperta, con affaccio lato est, ideale per godere della luce del mattino e della brezza mediterranea in ogni stagione. La zona notte ospita due camere e un bagno moderno, rifinito con materiali di qualità. A completare la proprietà, un posto auto privato al piano terra del residence, un dettaglio che aggiunge comodità e valore. Il vero cuore del residence è la splendida terrazza VISTA MARE, dove una piscina riscaldata si fonde con il panorama del Mar Ionio. Attorno, un solarium attrezzato e una raffinata lounge panoramica, protetta da una tettoia rivestita da impianto fotovoltaico, creano un ambiente esclusivo e sostenibile in cui benessere e design si incontrano. Il residence si caratterizza per soluzioni di design e tecnologia che assicurano un comfort superiore nel pieno rispetto della sostenibilità Piscina panoramica riscaldata con vista sul Mar Ionio Solarium attrezzato Area relax coperta dal fotovoltaico Impianto fotovoltaico da 15 kWp con batterie di accumulo (25KwP) Impianto solare termico per lacqua calda sanitaria Classe energetica A4 NZEB Sistemi di riscaldamento e raffrescamento di ultima generazione Elevata coibentazione termo-acustica Parquet ovunque Infissi in PVC di qualità superiore Grazie alla posizione strategica, a soli un chilometro dal mare, e alla crescente domanda immobiliare della zona, questa proprietà rappresenta una soluzione ideale sia come residenza personale sia come investimento, con ottime prospettive nel mercato delle locazioni turistiche e residenziali. Contattaci per ricevere maggiori informazioni o per fissare un appuntamento.
Dati principali
| Riferimento | CBI159-2976-63806 |
| Data annuncio | 23/11/2025 |
| Contratto | Vendita |
| Tipologia | Appartamento |
| Superficie | 70 m2 |
| Locali | 3 (2 camere da letto, 1 altro), 1 bagno, cucina a vista |
| Piano | 1 di 2 totali |
| Tipo di costruzione | Signorile |
| Occupato | Libero |
| Numero posti auto | 1 |
Caratteristiche
Costi
| Prezzo | 170.000 € |
| Prezzo al m2 | 2.429 €/m2 |
Efficienza energetica
| Stato | Ottimo |
| Riscaldamento | Autonomo |
| Tipo Impianto Di Riscaldamento | ad aria |
| Tipo Alimentazione Riscaldamento | Elettrico |
| Classe energetica | A4 |
Planimetrie
Indirizzo e mappa
Strada Torre Mozza
19, Nardò
Annuncio senza mappa,
prova a chiedere la posizione all'inserzionista
prova a chiedere la posizione all'inserzionista
Calcolo mutuo
Prezzo di vendita:
Anticipo
20,00
Mutuo
80,00
Tasso: -+
Rata: 486 al mese
I risultati sono una stima indicativa basata sui dati inseriti e non costituiscono un’offerta finanziaria.
Inserzionista
Chiama
CONTATTA


