Attico Viale Manfredo Fanti 179, Firenze
€ 690.000
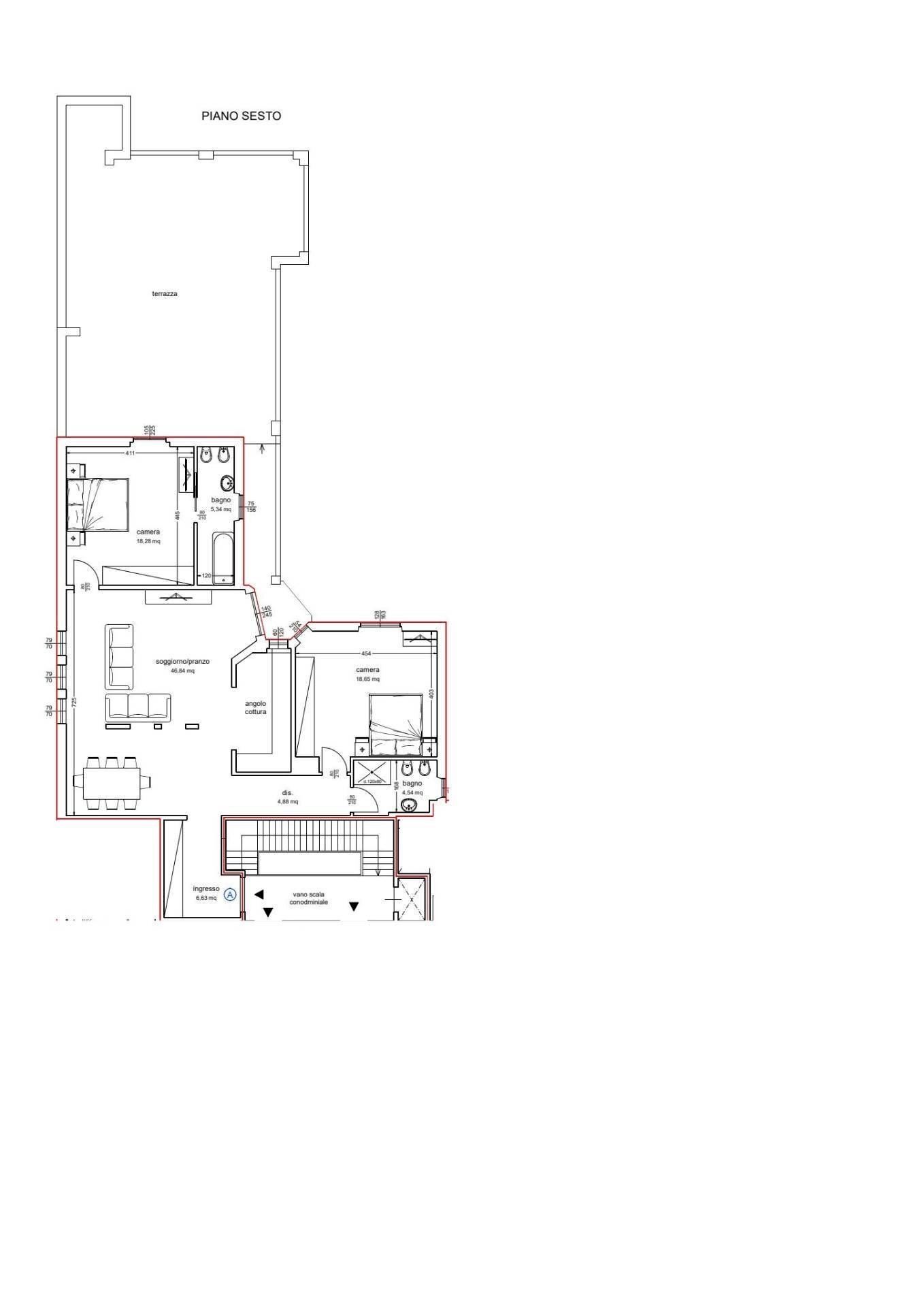
CAMPO DI MARTE, In una delle zone più richieste di Firenze, a due passi dai principali servizi, proponiamo in vendita un elegante appartamento posto al sesto ed ultimo piano di una palazzina dotata di ascensore. L'appartamento si compone di: - Luminoso ed ampio soggiorno di 50 mq circa con angolo cottura; - Camera matrimoniale con bagno en-suite; - seconda camera matrimoniale; - secondo bagno finestrato - Ampia terrazza abitabile di circa 60 mq con vista mozzafiato sul Duomo di Firenze e sulle colline di Fiesole e Settignano Lappartamento è attualmente in fase di completa ristrutturazione e sarà realizzato con materiali di pregio e soluzioni moderne per il massimo comfort abitativo. Sarà dotato di riscaldamento centralizzato a pavimento e impianto di aria condizionata. Una soluzione ideale per chi cerca una casa moderna, panoramica e in posizione strategica, perfetta sia come abitazione principale che come investimento. Possibilità di acquistare a parte un box auto. Richiesta 690.000 - Consegna prevista entro maggio 2026. RITMO MAISON REAL ESTATE Via Guglielmo Marconi, 13r Firenze Telefono/Whatsapp: (+39) 3519573199 Email: [email protected] Per garantire la privacy dei proprietari, la mappa e l'indirizzo possono non rispecchiare esattamente l'ubicazione precisa dell'immobile. Le spese condominiali esatte verranno calcolate al termine dei lavori dall'amministratore. Ape in fase di certificazione. Alcune immagini sono render indicativi, non rappresentano le potenzialità dell'immobile e non hanno alcun valore contrattuale; la presente scheda non costituisce pertanto forma di contratto, le informazioni qui contenute sono da ritenersi del tutto indicative e non potranno essere utilizzate come parte integrante in un eventuale contratto di vendita o locazione della proprietà.
Dati principali
| Riferimento | 010 - Panorama fiorentino |
| Data annuncio | 20/11/2025 |
| Contratto | Vendita |
| Tipologia | Attico |
| Superficie | 138 m2 |
| Locali | 3 (2 camere da letto, 1 altro), 2 bagni, cucina angolo cottura |
| Piano | Attico, 6 totali |
| Tipo di costruzione | Signorile |
| Occupato | Libero |
| Box auto | Doppio |
| Arredamento | Assente |
Caratteristiche
Costi
| Prezzo | 690.000 € |
| Prezzo al m2 | 5.000 €/m2 |
Efficienza energetica
| Stato | Parzialmente ristrutturato |
| Riscaldamento | Centralizzato |
| Tipo Impianto Di Riscaldamento | a pavimento |
| Classe energetica | Immobile esente da certificazione energetica |
Planimetrie
Indirizzo e mappa
Viale Manfredo Fanti
179, Firenze
Annuncio senza mappa,
prova a chiedere la posizione all'inserzionista
prova a chiedere la posizione all'inserzionista
Calcolo mutuo
Prezzo di vendita:
Anticipo
20,00
Mutuo
80,00
Tasso: -+
Rata: 1.973 al mese
I risultati sono una stima indicativa basata sui dati inseriti e non costituiscono un’offerta finanziaria.
Inserzionista

Ritmo Maison
Via G. Marconi, 13Rosso, Firenze
Mostra Cellulare
Chiama
CONTATTA

