Stabile - Palazzo via Giosuè Carducci, Lissone
€ 2.000.000Lissone, Via Carducci immobile commerciale cielo-terra
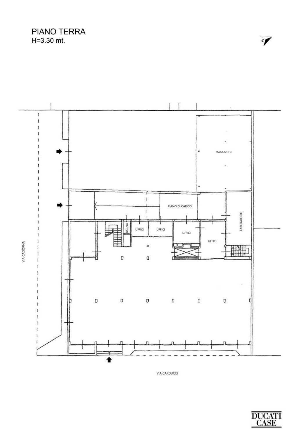
Lissone, in via Carducci, proponiamo in vendita immobile commerciale - D8 - cielo-terra con ottima visibilità grazie alla posizione strategica, sullo svincolo della Strada Statale 36 del Lago di Como e dello Spluga. L’immobile si sviluppa su quattro piani fuori terra, un magazzino e dei locali tecnici al piano interrato. Completa la proprietà un ampio cortile, parzialmente destinato alla movimentazione delle merci, agevolata dalla ribalta, oltre ad un’area destinata a parcheggio. Superfici e metrature Totale: 2.850 mq. ca. Immobile fuori terra: 2.600 mq. ca. (circa 600 mq. per piano) Magazzino: 170 mq. ca. Interrato: 90 mq. ca. Cortile ed aree esterne: circa 600 mq. ca. Gli spazi interni offrono elevata flessibilità distributiva, ideali per attività commerciali che necessitano di ampie superfici espositive o showroom. Il piano terra è valorizzato da nove grandi vetrine ad angolo, che assicurano massima visibilità e un’esposizione ottimale grazie all’affaccio su una strada di forte passaggio. La distribuzione verticale è stata progettata per offrire la massima funzionalità: due scale interne, una dedicata alla clientela e una di servizio, assicurano una buona gestione degli accessi. Inoltre, la presenza di un ascensore e di un montacarichi completano la struttura, garantendo un’ottimizzazione complessiva e la massima praticità nella movimentazione delle merci da un piano all’altro. L’immobile si presenta come una soluzione di grande rappresentanza, in posizione strategica e con caratteristiche ideali per attività che richiedono visibilità, spazi ampi e accessibilità. La proprietà immobiliare gode di una collocazione privilegiata situato sulla rotonda d’ingresso della città di Lissone. Nei dintorni sono presenti diverse importanti attività tra cui: Sport Specialist, Decathlon, Unieuro, Leroy Merlin, Esselunga, Bep’s e Mondo Convenienza. Inoltre, a breve distanza si trova la fermata del passante ferroviario (linee S9 e S11) raggiungibile in soli nove minuti a piedi, consentendo di arrivare a Milano in circa 20–30 minuti. Tutti i dati e le informazioni contenuti nel presente documento sono stati forniti dal venditore/proprietario e devono considerarsi come puramente indicativi senza potere essere considerati quale presupposto contrattuale.
Dati principali
| Riferimento | Cielo-Terra Lissone |
| Data annuncio | 17/11/2025 |
| Contratto | Vendita |
| Tipologia | Stabile - Palazzo |
| Superficie | 2850 m2 |
| Locali | 4 bagni |
| Piano | 1 totali |
| Tipo di costruzione | Signorile |
| Numero posti auto | 5 |
Costi
| Prezzo | 2.000.000 € |
| Prezzo al m2 | 702 €/m2 |
Efficienza energetica
| Anno costruzione | 1960 |
| Stato | Da ristrutturare |
| Riscaldamento | Autonomo |
| Classe energetica | G |
| Indice di prestazione energetica (IPE) | 47.78 kWh/m2 anno |
Planimetrie
Indirizzo e mappa
via Giosuè Carducci, Lissone
Calcolo mutuo
Prezzo di vendita:
Anticipo
20,00
Mutuo
80,00
Tasso: -+
Rata: 5.720 al mese
I risultati sono una stima indicativa basata sui dati inseriti e non costituiscono un’offerta finanziaria.
Inserzionista

Ducati Case srl
Viale Vittorio Veneto 24, Milano
Mostra Telefono
Chiama
CONTATTA

