Appartamento viale Mencacci, 2, Anzio
€ 345.000ANZIO STAZIONE CENTRALE
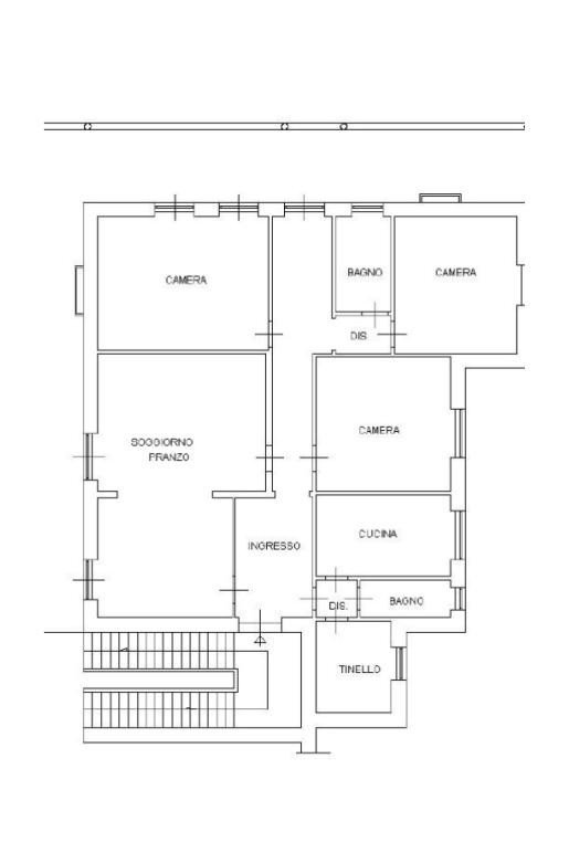
ANZIO Stazione centrale, in Piazza Raffaele Palomba, a 300 m dal centro del paese, dal porto e dagli imbarchi per le isole Pontine, proponiamo per la vendita un appartamento di ampia metratura posto al piano secondo in palazzina d'epoca; la casa, che mantiene la fattezza dello stile degli anni '30, ci accoglie con un ampio ingresso che caratterizza gli ambienti successivi: il salone doppio, le tre camere patronali, il bagno e la zona di servizio composta da la grande cucina, cameretta e altro bagno. Un ampio corridoio da accesso al terrazzo di grande vivibilità, che circonda completamente la casa, accessibile anche dal salone e le camere. L'immobile è dotato di riscaldamento termoautonomo, aria condizionata, grate antintrusione e portone blindato. Per maggiori informazioni chiedere del Rif. 1320/A presso l'agenzia di Anzio al numero telefonico 06.9830809. www.agenziatirrenoimmobiliare.it La Tirreno Immobiliare, da oltre 30 anni nel settore, sempre al passo con i tempi, affronta con disinvoltura i mercati nazionali e internazionali stravolgendo i sistemi di comunicazione tradizionale proponendo gli immobili attraverso eventi straordinari, serate di gala, incontri sportivi, vernissage per avvenimenti pubblici, diventando protagonista del mercato, fino a realizzare un vero “Salotto Immobiliare”. Accoglienza, Determinazione, Innovazione sono le caratteristiche dominanti dell’azienda, un gruppo di professionisti pronti a risolvere qualsiasi problematica tecnica-legale. A. Il connubio tra l’accoglienza degli esperti e la sobrietà delle sedi operative, crea la giusta atmosfera della trattativa per il conseguimento del buon affare. D. la determinazione del Gruppo è la capacità di individuare la strategia vincente, non arrendersi ai segnali di difficoltà, essere irremovibili sull’obiettivo finale, ma flessibili nella scelta della strada giusta per raggiungerlo. I. L’attenzione continua ai mutamenti del mercato, all’esigenze dei clienti e dell’ambiente fa della TIRRENO IMMOBILIARE un’azienda innovativa ad alta tecnologia. Da casa potrai visitare immobili attraverso Tour Virtuali, fotografie HD, riprese con droni e sottoscrivere, attraverso il tuo telefonino, contratti con firma elettronica qualificata con effetto giuridico equivalente a quello di firma autografa. A.D.I. ti aspetta presso i nostri uffici informazioni
Dati principali
| Riferimento | 1320/A |
| Data annuncio | 16/07/2025 |
| Contratto | Vendita |
| Tipologia | Appartamento |
| Superficie | 170 m2 |
| Locali | più di 5 (4 camere da letto, 2 altro), 2 bagni, cucina abitabile |
| Piano | 2 di 3 totali |
| Tipo di costruzione | Media |
| Numero di terrazzi | 1 |
| Numero di balconi | 1 |
| Box auto | Assente |
| Arredamento | Assente |
Costi
| Prezzo | 345.000 € |
| Prezzo al m2 | 2.029 €/m2 |
| Spese condominiali | € 50,00/mese |
Efficienza energetica
| Anno costruzione | 1931 |
| Stato | Da ristrutturare |
| Riscaldamento | Autonomo |
| Classe energetica | G |
| Indice di prestazione energetica (IPE) | 175 kWh/m2 anno |
Planimetrie
Indirizzo e mappa
viale Mencacci, 2, Anzio
Calcolo mutuo
Prezzo di vendita:
Anticipo
20,00
Mutuo
80,00
Tasso: -+
Rata: 987 al mese
I risultati sono una stima indicativa basata sui dati inseriti e non costituiscono un’offerta finanziaria.
Inserzionista

Tirreno Immobiliare
Piazza Pia 24, Anzio
Mostra Telefono
Chiama
CONTATTA

