Villa via dei Garofani, 4, Anzio
€ 330.000ANZIO LAVINIO
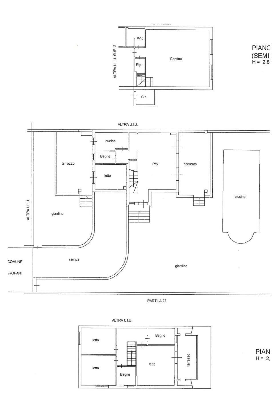
Anzio, Lavinio Mare, in via dei Garofani, proponiamo per la vendita una porzione di villa bifamiliare, di ampia metratura, immersa nel verde della macchia mediterranea. La casa si dispone su tre livelli, al piano terreno il living si compone di salone, ampia veranda con affaccio suggestivo sulla piscina, stanza/studio, cucina con terrazza e bagno; la zona notte, al piano primo, si compone di tre ampie camere, due bagni e un balcone; al piano seminterrato c'è una accogliente sala hobby con camino, bagno, piccola lavanderia e box auto con doppio accesso, sia interno alla casa che carrabile. Completano la proprietà il giardino ad angolo con piante ad alto fusto e una bellissima piscina. Per maggiori informazioni chiedere in agenzia del Rif. 392/P - Tel. 06.9830809 - www.agenziatirrenoimmobiliare.it La Tirreno Immobiliare, da oltre 30 anni nel settore, sempre al passo con i tempi, affronta con disinvoltura i mercati nazionali e internazionali stravolgendo i sistemi di comunicazione tradizionale proponendo gli immobili attraverso eventi straordinari, serate di gala, incontri sportivi, vernissage per avvenimenti pubblici, diventando protagonista del mercato, fino a realizzare un vero “Salotto Immobiliare”. Accoglienza, Determinazione, Innovazione sono le caratteristiche dominanti dell’azienda, un gruppo di professionisti pronti a risolvere qualsiasi problematica tecnica-legale. A. Il connubio tra l’accoglienza degli esperti e la sobrietà delle sedi operative, crea la giusta atmosfera della trattativa per il conseguimento del buon affare. D. la determinazione del Gruppo è la capacità di individuare la strategia vincente, non arrendersi ai segnali di difficoltà, essere irremovibili sull’obiettivo finale, ma flessibili nella scelta della strada giusta per raggiungerlo. I. L’attenzione continua ai mutamenti del mercato, all’esigenze dei clienti e dell’ambiente fa della TIRRENO IMMOBILIARE un’azienda innovativa ad alta tecnologia. Da casa potrai visitare immobili attraverso Tour Virtuali, fotografie HD, riprese con droni e sottoscrivere, attraverso il tuo telefonino, contratti con firma elettronica qualificata con effetto giuridico equivalente a quello di firma autografa. A.D.I. ti aspetta presso i nostri uffici informazioni
Dati principali
| Riferimento | 392/P |
| Data annuncio | 14/07/2025 |
| Contratto | Vendita |
| Tipologia | Villa |
| Superficie | 142 m2 |
| Locali | 5 (4 camere da letto, 1 altro), 4 bagni, cucina abitabile |
| Piano | 2 totali |
| Tipo di costruzione | Signorile |
| Numero di terrazzi | 1 |
| Numero di balconi | 1 |
| Box auto | Doppio |
| Numero posti auto | 2 |
| Arredamento | Assente |
Caratteristiche
Costi
| Prezzo | 330.000 € |
| Prezzo al m2 | 2.324 €/m2 |
Efficienza energetica
| Anno costruzione | 1975 |
| Stato | Buono |
| Riscaldamento | Autonomo |
| Classe energetica | G |
| Indice di prestazione energetica (IPE) | 175 kWh/m2 anno |
Planimetrie
Indirizzo e mappa
via dei Garofani, 4, Anzio
Calcolo mutuo
Prezzo di vendita:
Anticipo
20,00
Mutuo
80,00
Tasso: -+
Rata: 944 al mese
I risultati sono una stima indicativa basata sui dati inseriti e non costituiscono un’offerta finanziaria.
Inserzionista

Tirreno Immobiliare
Piazza Pia 24, Anzio
Mostra Telefono
Chiama
CONTATTA

