Casa semi indipendente Frazione Piletta, Magnano
€ 32.000Casa semindipendente in vendita
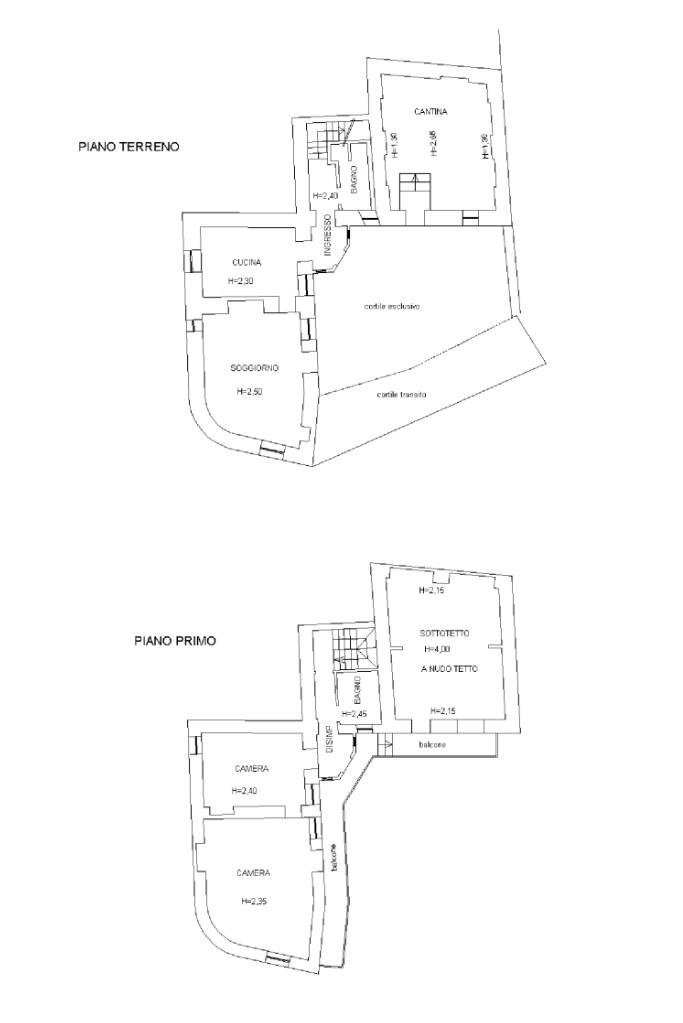
In frazione Piletta, casa semindipendente disposta su due livelli. Il piano terra ospita la zona giorno composta da spazioso soggiorno con elegante camino, separato dal locale cucina. Completa il piano un bagno con doccia e finestra. Invece, il piano primo accessibile mediante una comoda scala interna, conduce alla zona notte. Quest’ultima conta di due camere da letto ed un bagno con vasca e finestra. Inoltre, è presente un locale sottotetto accessibile esternamente che offre la possibilità grazie alla sua altezza di ricavare un'altra camera. Il riscaldamento attualmente è dato dalla canna fumaria, ma sono comunque presenti i termosifoni per eventuale impianto. A corredo della proprietà vi sono un’elegante cantina/tavernetta al piano terra impreziosita da volte in mattoni ed un cortile privato.
Dati principali
| Riferimento | 61142116 |
| Data annuncio | 16/11/2025 |
| Contratto | Vendita |
| Tipologia | Casa semi indipendente |
| Superficie | 164 m2 |
| Locali | più di 5 (6 altro), 2 bagni |
| Piano | 2 di 2 totali |
Costi
| Prezzo | 32.000 € |
| Prezzo al m2 | 195 €/m2 |
Efficienza energetica
| Anno costruzione | 1900 |
| Riscaldamento | Autonomo |
| Classe energetica | F |
| Indice di prestazione energetica (EP GL, REN) | 689.28 kWh/m3 anno |
| Indice di prestazione energetica (EP GL, NREN) | 221.07 kWh/m3 anno |
Planimetrie
Video
Indirizzo e mappa
Frazione Piletta, Magnano
Calcolo mutuo
Prezzo di vendita:
Anticipo
20,00
Mutuo
80,00
Tasso: -+
Rata: 92 al mese
I risultati sono una stima indicativa basata sui dati inseriti e non costituiscono un’offerta finanziaria.
Inserzionista
Chiama
CONTATTA

