Capannone via Alberto da Giussano, Arluno
€ 15.833 al meseCAPANNONE DI 3750 MQ PIU' UFFICI DI 680 MQ
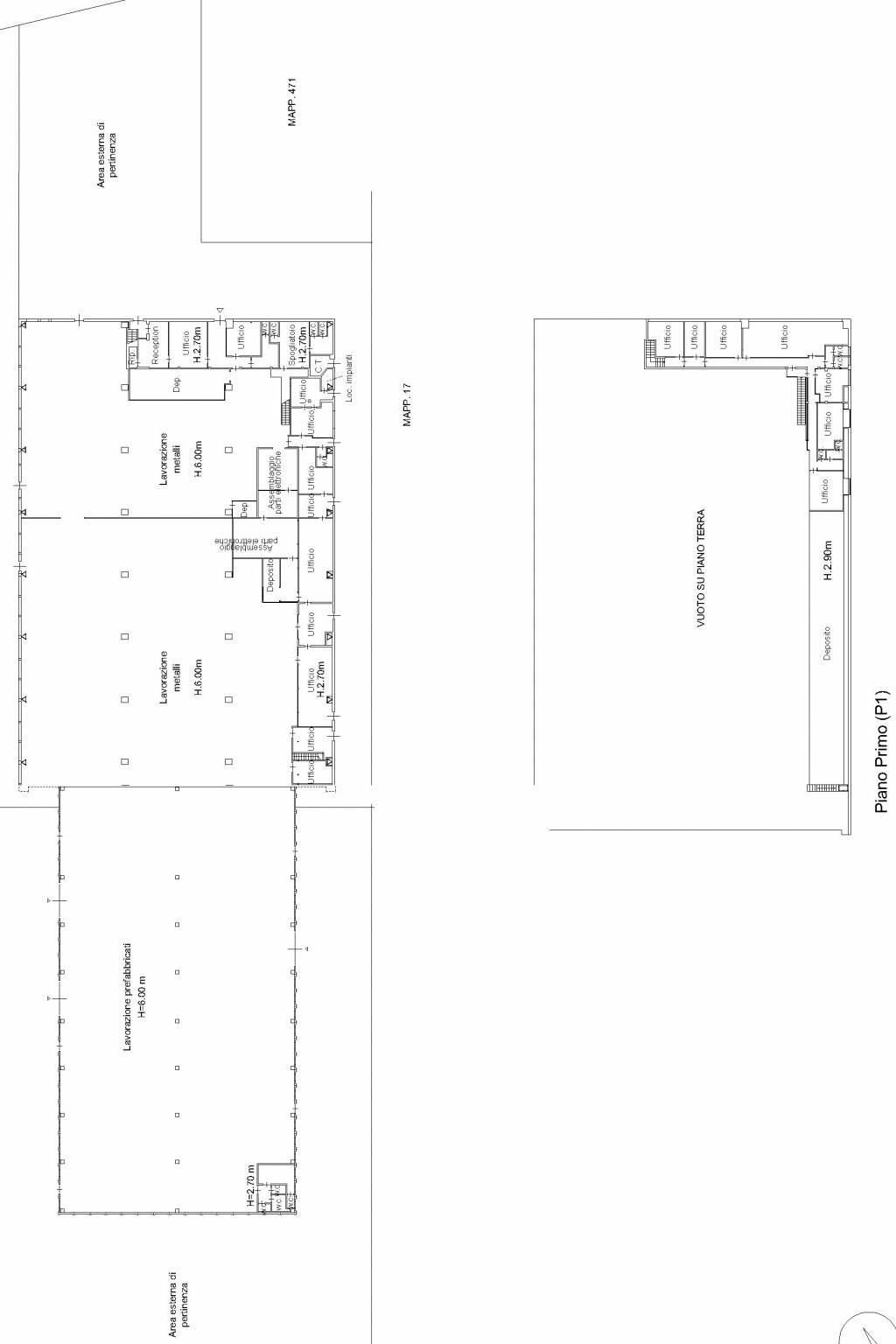
(CAPANNONE DI 3750 MQ PIU' UFFICI DI 680 MQ - CARRIPONTE e AMPIO CORTILE PRIVATO) Il capannone si trova nella zona industriale di Arluno (MI), a pochi minuti dallo svincolo autostradale della MI - TO e in posizione visibile dall'autostrada. La superficie totale è di circa 4430 mq, suddivisa tra zona produttiva/stoccaggio e zona uffici. La zona produttiva è di circa 3750 mq, con altezza utile sotto trave di 6,00 mt, suddivisa in n° 5 campate di cui 2 provviste di carriponte, rispettivamente di 3,00 ton e 3,20 ton. E' già provvista di impianto elettrico, impianto di illuminazione, impianto antincendio e di riscaldamento con tubi radianti. La zona uffici ha ingresso indipendente e si sviluppa su 2 livelli per totali 680 mq. Completa la proprietà l'ampio cortile privato e recintato che consente la movimentazione di mezzi pesanti. SCOPRI ALTRE SOLUZIONI IMMOBILIARI SUL NOSTRO SITO WWW.CASAEINDUSTRIA.IT I nostri servizi: - Intermediazione immobiliare; - valutazioni per la locazione e la vendita di immobili; - stesura e registrazione contratti; - certificazioni energetiche; - finanziamenti su misura; - progettazione di edifici civili ed industriali; - calcoli strutture in cemento armato, legno e acciaio; - perizie, collaudi, asseverazioni statiche; - direzione lavori; - supervisione in cantiere nella fase di realizzazione; - assistenza alle imprese (tracciamenti planimetrici ed altimetrici, contabilità di cantiere); - computi metrici; - verifica dispersioni termiche degli edifici (L 10/91); - progetto impianti; - operazioni topografiche di rilevamento completo; - operazioni catastali (tipi di frazionamento, tipi mappali, denunce di nuova costruzione e variazione con acquisizione della rendita catastale, volture).
Dati principali
| Riferimento | ID2910675 |
| Data annuncio | 14/11/2025 |
| Contratto | Affitto |
| Tipologia | Capannone |
| Superficie | 4430 m2 |
| Piano | 2 totali |
| Uso immobile | Commerciale ed Industriale |
Costi
| Prezzo | 15.833 € al mese |
Efficienza energetica
| Riscaldamento | Autonomo |
| Classe energetica | G |
| Indice di prestazione energetica (IPE) | 65 kWh/m2 anno |
Planimetrie
Indirizzo e mappa
via Alberto da Giussano, Arluno
Inserzionista

Casa & Industria - Immobili Per L'Impresa
VIA COMO 3, Lainate
Mostra Telefono
Chiama
CONTATTA

