Appartamento via Torino, 40, Candiolo
€ 212.000ABITAZIONE AMPIA METRATURA CON MAGAZZINO E AREA ESTERNA
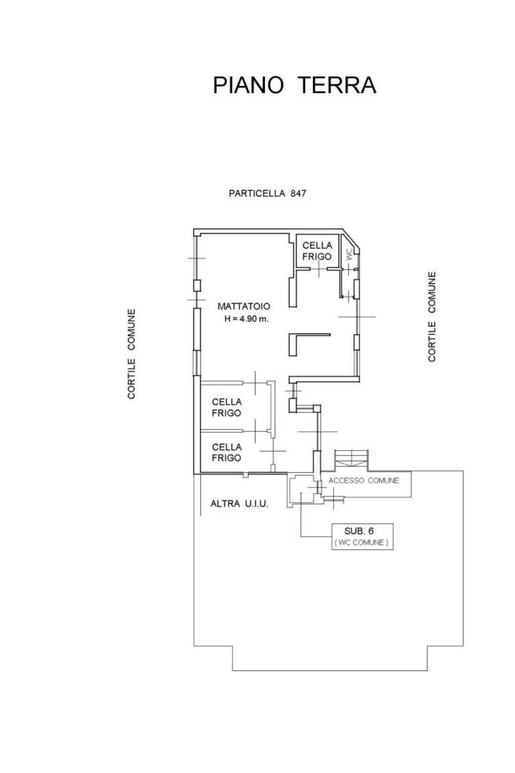
CANDIOLO - CENTRO - 5 LOCALI - In centro paese P&T Immobiliare propone al primo piano di una palazzina appartamento di 140 mq libero su 4 lati. L'immobile è composto da ingresso su ampio salone con balcone, cucina abitabile, disimpegno, 3 camere da letto e un bagno. Dalla cucina e da una delle camere si accede al terrazzo solarium di 100 mq. Al piano interrato troviamo un ampia area adibita a cantine, locali sgombero e locale caldaia che si prestano a molteplici usi. Tramite una scala si accede al locale sottotetto ispezionabile. Esternamente la casa dispone di un cortile in parte asfaltato e in parte verde di 780 mq con due accessi carrai. Completa la proprietà un magazzino, al piano cortile, sottostante il terrazzo di 100 mq, con un altezza di 4,90mt che può essere usato per diverse attività a seconda delle esigenze. Il prezzo di vendita della proprietà è di € 270.000. Possibilità di acquistare separatamente l'abitazione ad € 212.000 e il magazzino al prezzo di € 58.000. Per maggiori info e chiarimenti e visione documentazione chiamare in ufficio per fissare un appuntamento. **Le presenti informazioni, riportate nell' annuncio, non costituiscono elemento contrattuale** P&T Immobiliare Via Villa di Montpascal, 6 Candiolo (TO) www.immobiliarept.it 011/9625283
Dati principali
| Riferimento | ca_vt |
| Data annuncio | 11/10/2024 |
| Contratto | Vendita |
| Tipologia | Appartamento |
| Superficie | 197 m2 |
| Locali | 5 (3 camere da letto, 2 altro), 1 bagno, cucina abitabile |
| Piano | 1 di 2 totali |
| Tipo di costruzione | Media |
| Numero di terrazzi | 1 |
| Numero di balconi | 1 |
| Arredamento | Assente |
Caratteristiche
Costi
| Prezzo | 212.000 € |
| Prezzo al m2 | 1.076 €/m2 |
Efficienza energetica
| Anno costruzione | 1970 |
| Stato | Buono |
| Riscaldamento | Autonomo |
| Classe energetica | G |
| Indice di prestazione energetica (IPE) | 288.71 kWh/m2 anno |
Planimetrie
Indirizzo e mappa
via Torino, 40, Candiolo
Calcolo mutuo
Prezzo di vendita:
Anticipo
20,00
Mutuo
80,00
Tasso: -+
Rata: 606 al mese
I risultati sono una stima indicativa basata sui dati inseriti e non costituiscono un’offerta finanziaria.
Inserzionista

P&T immobiliare
Via Villa di Montpascal 6, Candiolo
Mostra Telefono
Chiama
CONTATTA

