Villa Issogne
€ 178.000€ 178.000 Villa
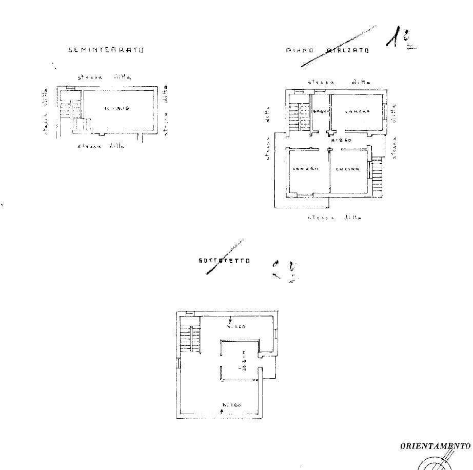
Descrizione Si propone in vendita ad Issogne una casa indipendente con giardino privato. L'immobile di circa 160 mq commerciale, è composto da un appartamento situato al primo piano, che include ingresso, cucina abitabile, due camere, bagno con finestra e due balconi. Tramite una scala interna si accede al piano superiore, dove si trova una soffitta allo stato grezzo con balcone. Sempre attraverso la medesima scala interna si raggiungono il garage e la cantina. All'esterno è presente un giardinetto di proprietà esclusiva. Il riscaldamento è alimentato a metano, con la possibilità di installare una stufa a legna o a pellet.
Dati principali
| Riferimento | 10549RA50470 |
| Data annuncio | 13/11/2025 |
| Contratto | Vendita |
| Tipologia | Villa |
| Superficie | 72 m2 |
| Locali | 3 (1 camera da letto, 2 altro), 1 bagno |
Costi
| Prezzo | 178.000 € |
| Prezzo al m2 | 2.472 €/m2 |
Efficienza energetica
| Classe energetica | Immobile esente da certificazione energetica |
Planimetrie
Indirizzo e mappa
Issogne
Calcolo mutuo
Prezzo di vendita:
Anticipo
20,00
Mutuo
80,00
Tasso: -+
Rata: 509 al mese
I risultati sono una stima indicativa basata sui dati inseriti e non costituiscono un’offerta finanziaria.
Inserzionista

Immobiliare Neige di Silvana Briscese
Via Mario Colliard 34, Hone
Mostra Telefono
Mostra Cellulare
Chiama
CONTATTA

