Villa Piazza Renato Bolognese, Trevenzuolo
€ 695.000
Villa storica in vendita a Trevenzuolo (VR)
Nel cuore di Trevenzuolo, affacciata sulla piazza principale, elegante villa storica interamente ristrutturata nel 1994, di circa 480 mq commerciali disposta su due livelli.
La ristrutturazione è stata eseguita con grande attenzione ai dettagli, dallimpianto di riscaldamento a pavimento alla scelta dei materiali per pavimenti e finiture.
Gli ambienti interni, perfettamente distribuiti, includono anche una panic room, rendendo la proprietà una residenza di assoluto pregio e al tempo stesso adatta a un uso ricettivo, grazie ai numerosi locali e bagni presenti.
La villa dispone di tre ingressi: due pedonali dal portico affacciato sulla piazza e un ingresso carrabile da una via laterale che costeggia la proprietà.
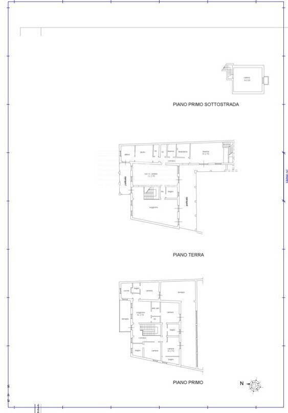
Il piano terra ospita due ampi saloni con vista sia sulla piazza che sul giardino interno, una spaziosa cucina con zona pranzo e soggiorno, due bagni, lavanderia, due ripostigli, due locali adibiti a sala dattesa e studio (con ingresso indipendente), una panic room blindata, un doppio box auto e unampia cantina.
È inoltre presente un grande forno a legna (attualmente chiuso ma facilmente ripristinabile), predisposizione per camino nel salone principale e un ampio giardino privato dove è possibile realizzare una piscina.
Il piano superiore, pavimentato in pregiato parquet, ospita la zona notte: due camere con bagno privato, una camera padronale con cabina armadio e bagno con vasca idromassaggio angolare, oltre a un grande portico coperto. Sul lato opposto del piano si trovano un soggiorno con accesso a un secondo terrazzo, una camera con bagno privato, una cucina e un ripostiglio con accesso al sottotetto.
La proprietà è dotata di impianto fotovoltaico, impianto di aspirazione centralizzata, sistema di allarme interno ed esterno, rilevatore di gas e climatizzazione su entrambi i livelli.
Situata nel centro di Trevenzuolo, in un contesto tranquillo ma servito, la villa si trova a soli 15 km (circa 20 minuti) da Verona e Mantova, e a 30 km (30 minuti) da Peschiera del Garda.
Un perfetto equilibrio tra la quiete del borgo e la vivacità urbana.
Nel cuore di Trevenzuolo, affacciata sulla piazza principale, elegante villa storica interamente ristrutturata nel 1994, di circa 480 mq commerciali disposta su due livelli.
La ristrutturazione è stata eseguita con grande attenzione ai dettagli, dallimpianto di riscaldamento a pavimento alla scelta dei materiali per pavimenti e finiture.
Gli ambienti interni, perfettamente distribuiti, includono anche una panic room, rendendo la proprietà una residenza di assoluto pregio e al tempo stesso adatta a un uso ricettivo, grazie ai numerosi locali e bagni presenti.
La villa dispone di tre ingressi: due pedonali dal portico affacciato sulla piazza e un ingresso carrabile da una via laterale che costeggia la proprietà.
Il piano terra ospita due ampi saloni con vista sia sulla piazza che sul giardino interno, una spaziosa cucina con zona pranzo e soggiorno, due bagni, lavanderia, due ripostigli, due locali adibiti a sala dattesa e studio (con ingresso indipendente), una panic room blindata, un doppio box auto e unampia cantina.
È inoltre presente un grande forno a legna (attualmente chiuso ma facilmente ripristinabile), predisposizione per camino nel salone principale e un ampio giardino privato dove è possibile realizzare una piscina.
Il piano superiore, pavimentato in pregiato parquet, ospita la zona notte: due camere con bagno privato, una camera padronale con cabina armadio e bagno con vasca idromassaggio angolare, oltre a un grande portico coperto. Sul lato opposto del piano si trovano un soggiorno con accesso a un secondo terrazzo, una camera con bagno privato, una cucina e un ripostiglio con accesso al sottotetto.
La proprietà è dotata di impianto fotovoltaico, impianto di aspirazione centralizzata, sistema di allarme interno ed esterno, rilevatore di gas e climatizzazione su entrambi i livelli.
Situata nel centro di Trevenzuolo, in un contesto tranquillo ma servito, la villa si trova a soli 15 km (circa 20 minuti) da Verona e Mantova, e a 30 km (30 minuti) da Peschiera del Garda.
Un perfetto equilibrio tra la quiete del borgo e la vivacità urbana.
Dati principali
| Riferimento | CBI038-2915-301653 |
| Data annuncio | 13/11/2025 |
| Contratto | Vendita |
| Tipologia | Villa |
| Superficie | 480 m2 |
| Locali | più di 5 (4 camere da letto, 18 altro), 6 bagni, cucina abitabile |
| Piano | 1 di 2 totali |
| Occupato | Libero |
| Box auto | Doppio |
| Numero posti auto | 4 |
| Arredamento | Completo |
Caratteristiche
Costi
| Prezzo | 695.000 € |
| Prezzo al m2 | 1.448 €/m2 |
| Spese Riscaldamento | € 100,00/anno |
Efficienza energetica
| Stato | Ottimo |
| Riscaldamento | Autonomo |
| Tipo Impianto Di Riscaldamento | a pavimento |
| Classe energetica | G |
| Indice di prestazione energetica (IPE) | 175 kWh/m2 anno |
Planimetrie
Indirizzo e mappa
Piazza Renato Bolognese, Trevenzuolo
Annuncio senza mappa,
prova a chiedere la posizione all'inserzionista
prova a chiedere la posizione all'inserzionista
Calcolo mutuo
Prezzo di vendita:
Anticipo
20,00
Mutuo
80,00
Tasso: -+
Rata: 1.988 al mese
I risultati sono una stima indicativa basata sui dati inseriti e non costituiscono un’offerta finanziaria.
Inserzionista

Coldwell Banker Gruppo Bodini
Via Orazio, 23, Roma
Mostra Telefono
Chiama
CONTATTA

